首页
Home
WAQI做些什么
Services
WAQI的作品
Projects
WAQI是谁
About us
WAQI学院
College
联系WAQI
Contact us
logo
藏身葡萄酒庄的岩石酒店|度假酒店设计
发布于:2020-08-14 18:18 浏览:
这个取名为8号住宅的项目是Bruma计划中的一部分。Bruma计划坐落于下加利福尼亚瓜达卢佩山谷的产酒区,其中包括酒庄,酒店和别墅。
这个项目脱胎于景观设计。设计师运用绿植,花草和山石来创造了一个被树木和葡萄藤围绕的私密环境,以期客人能获得一种在花园中入梦的感觉。同时,大落地窗和推拉门把室内空间与室外融为了一体。
项目信息
设计公司:TAC Taller de Arquitectura Contextual
项目类型:
精品酒店设计
、度假酒店设计、景观规划设计
位置:墨西哥
▽ 建筑外观
8号住宅是一个配备有起居室,厨房,酒吧和餐室的独特B&B(住宿加早餐)项目。它的5间私人客房由一个庭院连接在一起。同时,它还有一个接待区,客人也可以在那里相约见面。
▽ 室内设计
▽ 景观设计
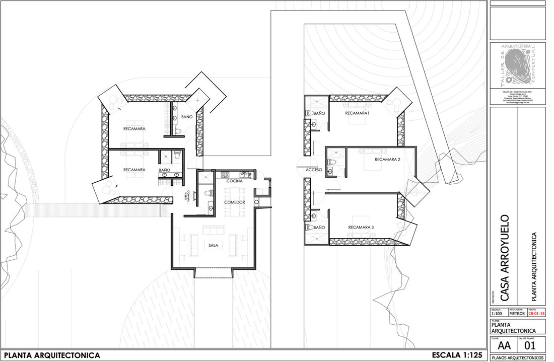
▽ 平面图
▽ 立面图
编后语:设计师将酒店藏身于葡萄酒庄的岩石与植物当中,将岩石与植物变成酒店建筑的一部分,让整个酒店都藏身在岩石里面,让客人们有一种室内外都联合在一起的感觉。更多关于度假酒店设计、精品酒店设计、景观规划设计的案例,请点击下面的拓展阅读进行跳转阅读。
来源网站:www.archdaily.com
翻译整理:WAQI
拓展阅读
故事未了的江湖客栈|绿境景色花园客栈设计
青旅社区---阳朔东院弥香客栈
三亚洲际度假酒店[酒店设计]
景逸庭院式精品酒店改造
设计终究是一个不断学习的过程,WAQI作为一家学习型设计事务所,通常在设计的过程中,会分析甚至于拆建一些案例,
不定期分享一些心得。请扫描并关注公众号,更多精彩,与您共享。。。
马上分享WAQI:
微信
QQ空间
新浪微博
上一个
下一个