首页
Home
WAQI做些什么
Services
WAQI的作品
Projects
WAQI是谁
About us
WAQI学院
College
联系WAQI
Contact us
logo
在办公室里锻炼身体|旧房改造
发布于:2020-08-14 18:26 浏览:
设计师改造自己的办公室,这间170平方米的公司办公室拥有60名员工,这些员工通常在客户的办公室办公,以便随时维护客户的计算机系统。每当他们等待新项目或新客户的时候才会留在自己的办公室里。因此,新的办公室不需要设计独立的办公桌。因为所有员工都需要在电脑面前工作,所以可移动性便成为Inteltion公司的特性。
为什么一个IT公司需要设计办公室?此次改造的目的是实现员工与客户之间的会面交流,进行新员工的面试,以及促进公司内部交流。这就是Inteltion公司寻求设计师设计的主要目的。
项目信息
设计公司:Onion Design Associates
项目类型:建筑设计、旧楼改造、景观规划设计
位置:曼谷
▽ 室内设计
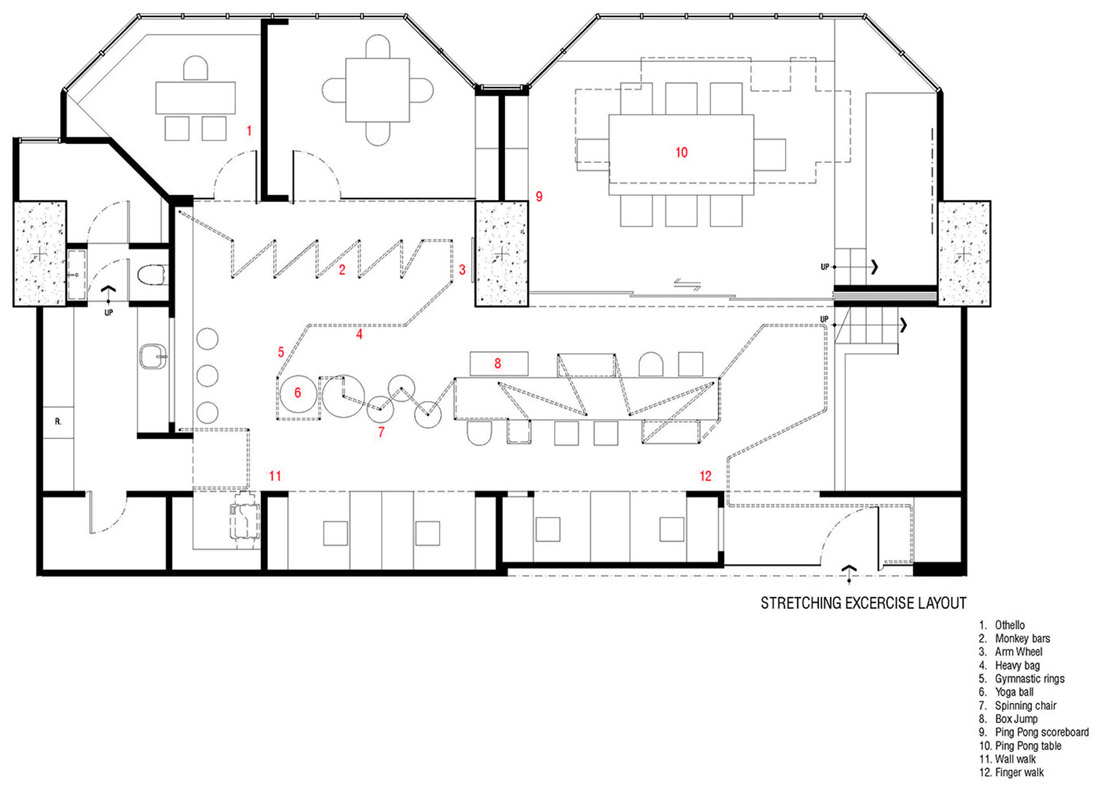
设计师需要考虑到办公室现存的种种问题。保持同一种姿态持续工作是非常不健康的,因此设计师建议将室内改造成有利于员工的环境。项目初始,设计师在曼谷观察了很多拉伸运动。对设计师来说,普通的拉伸运动比一些特制的运动器械更加受人青睐,而这些辅助的拉伸工具,需要尽可能简单并且有趣。
办公室的拉伸器械由Inteltion公司安排以从难到简的顺序排列,并分别被命名为“手指运动”,“手臂轮转”,“旋转椅”和最难的“单杠”运动。办公室空间的主要特征表现为一个连续的铁管。它以把手的形式出现在办公室入口,办公室中央的座椅和桌子结构,以及办公室后面的健身杆。设计师利用现存的水管和电管作为办公室天花板的的装饰,并将这些新旧不一的管道漆成白色。
▽ 细节设计
Inteltion办公室希望在办公室的任何地方,包括使用球形橱柜拉手来健身。这些把手被刻意设计在较高的地方以便促进员工的拉伸运动。会议桌可以随时转变成乒乓球台,而乒乓球就装饰在会议桌顶部的吊灯上。相邻墙壁的乒乓球装饰可以作为比赛的计分器。疲惫时,员工还可以在移动文件柜上的空间里小憩片刻,这个空间被装点成满是枕头的舒适氛围。
▽ 平面图
编后语:设计师对于办公室改造,更多的是根据顾客的需求,其次才将办公室改造为可能让员工们能够在闲暇时期随意来一场健身运动的地方,死板的办公室空间就这样变得灵活起来。更多关于旧楼改造、旧房改造、室内设计的案例,请点击下面的拓展阅读进行跳转阅读。
来源网站:www.archdaily.com
翻译整理:WAQI
延伸阅读
中山产业园改造
景逸庭院式精品酒店改造
昆明教场北路旧房改造项目
WAQI建筑改造案例之蓝豹One·AI智慧谷改造项目
故事未了的江湖客栈|绿境景色花园客栈设计
设计终究是一个不断学习的过程,WAQI作为一家学习型设计事务所,通常在设计的过程中,会分析甚至于拆建一些案例,
不定期分享一些心得。请扫描并关注公众号,更多精彩,与您共享。。。
马上分享WAQI:
微信
QQ空间
新浪微博
上一个
下一个