首页
Home
WAQI做些什么
Services
WAQI的作品
Projects
WAQI是谁
About us
WAQI学院
College
联系WAQI
Contact us
logo
山间的露营度假村 |乡村规划设计
发布于:2020-08-14 18:32 浏览:
度假村在首尔以南约300公里,位于郁郁葱葱的柏树林中,向远处望去可以看到韩国海峡。度假村的设计参考了很多自然元素,例如山地地形、鹅卵石和萤火虫,让客人与周围的自然环境生趣地互动。房屋的位置与间距都经过精心的设计考量,让客人们可以享受到顺天生态湾壮丽的景色。
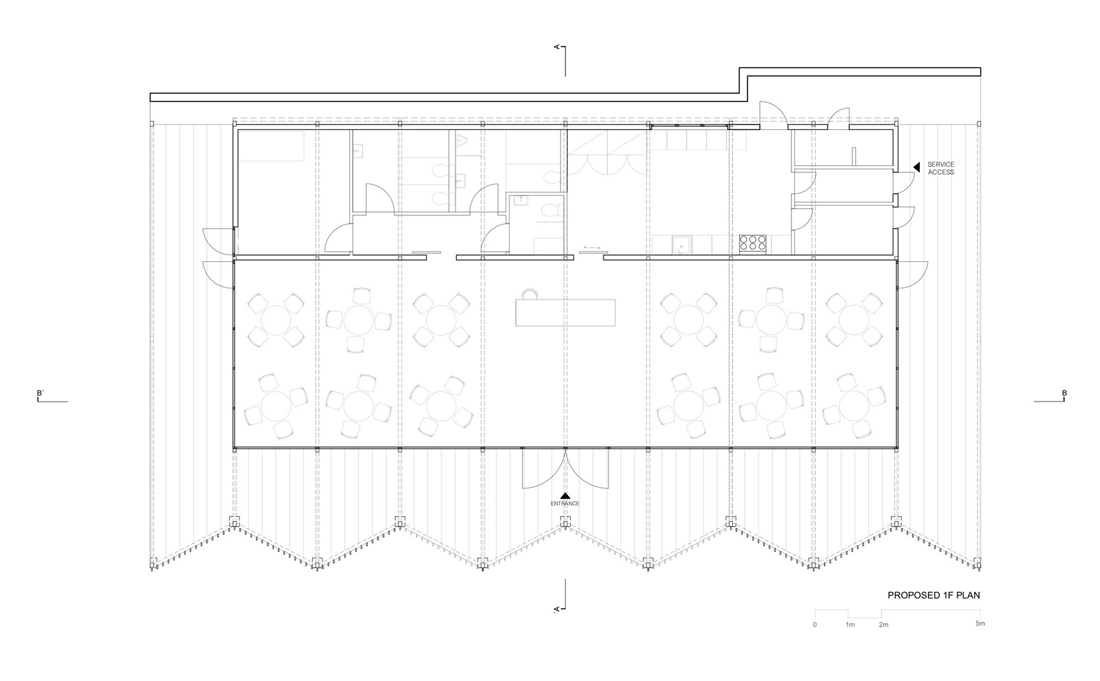
轻质的钢架上覆盖了一层很像帐篷材质的高弹性面料,能够承受这一地区每年显著的气候差异。度假村的房屋以三种不同的露营房为主:“山屋”,“Cutent”和“萤光屋”,每种房屋都有独特的平面布局和配色方案。餐厅是客人们聚集的场所。餐厅与观景台采用优雅别致的白色钢质百叶结构来遮挡过多的阳光。
项目信息
设计公司:Atelier Chang
项目类型:建筑设计、乡村改造设计、乡村规划设计
位置:韩国
▽ 建筑设计构想
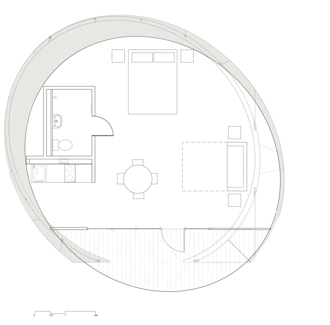
这个全新的“极简奢华”度假村毗邻顺天胜州乡村俱乐部,由16个色彩鲜艳的独立房屋和1个接待处/餐厅组成。每个房屋有约50平方米的起居室、两间卧室、一个厨房和一间独立在外的卫生间。
▽ 建筑外观
▽ 室内设计
▽ 景观设计
▽ 平面图
▽ 立面图
编后语:设计师设计了一个露营式的新型度假村,让客人体验自然,感受自然的同时,还能享受建筑的舒适,感受公共设施的便利,并悠然居住在独立的生活空间里。更多关于乡村规划设计、乡村改造设计、建筑设计的案例,请点击下面的拓展阅读进行跳转阅读。
来源网站:www.archdaily.com
翻译整理:WAQI
拓展阅读
大凉山沙马普尔彝族人文生态村规划设计
新村湖旅游度假项目景观概念设计
穆家峪桃源度假村概念设计
湄潭大健康旅游小镇
汤沟小镇概念性规划
罗婺文化特色小镇
燕山文化新城概念规划
千灯镇安居小区
设计终究是一个不断学习的过程,WAQI作为一家学习型设计事务所,通常在设计的过程中,会分析甚至于拆建一些案例,
不定期分享一些心得。请扫描并关注公众号,更多精彩,与您共享。。。
马上分享WAQI:
微信
QQ空间
新浪微博
上一个
下一个