首页
Home
WAQI做些什么
Services
WAQI的作品
Projects
WAQI是谁
About us
WAQI学院
College
联系WAQI
Contact us
logo
甲板上的公寓|旧房改造
发布于:2020-08-19 09:22 浏览:
二战后遗留在此的旧潜艇基地,经过河流的冲刷,从加仑河港口的水平面慢慢升起。设计师要把基地,以及周围零散的潜艇装备部件改造成公寓。
基于海平面高度的限制,设计师将地下停车场转移到地面中心区域,并将底部两层连通,二层设开放花园,三个公寓建筑体块环绕而设,正立面提供服务设施,空间与街道在视觉上产生对视。
项目信息
设计公司:Mateo Arquitectura
项目类型:建筑设计、旧楼改造、景观规划设计
位置:法国
▽ 设计模型
▽ 建筑外观
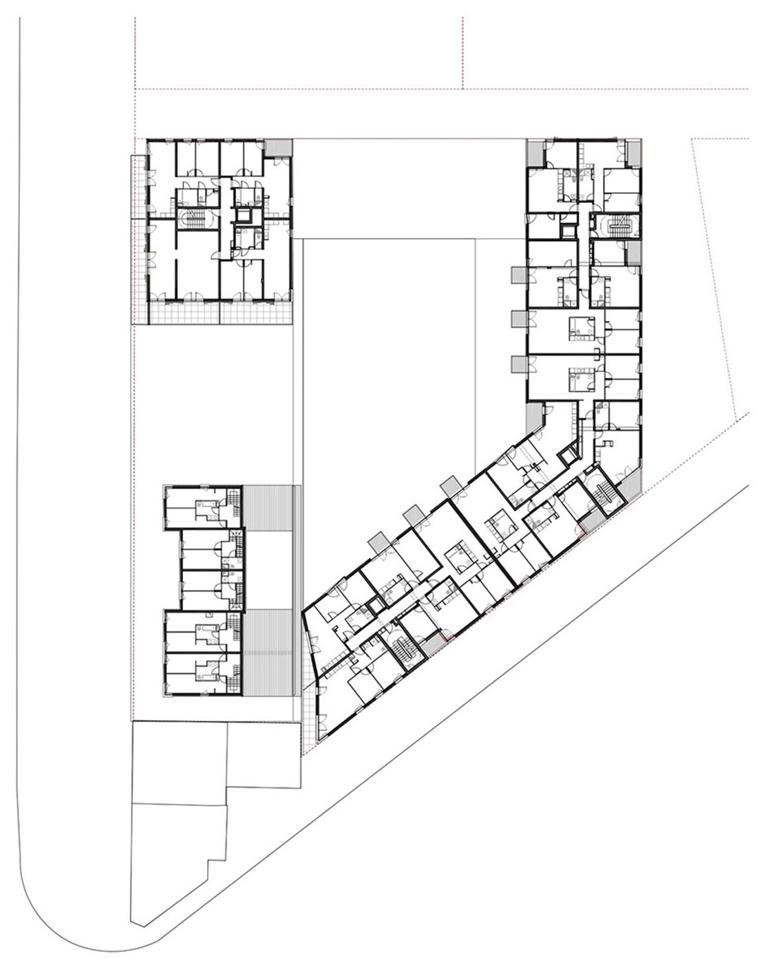
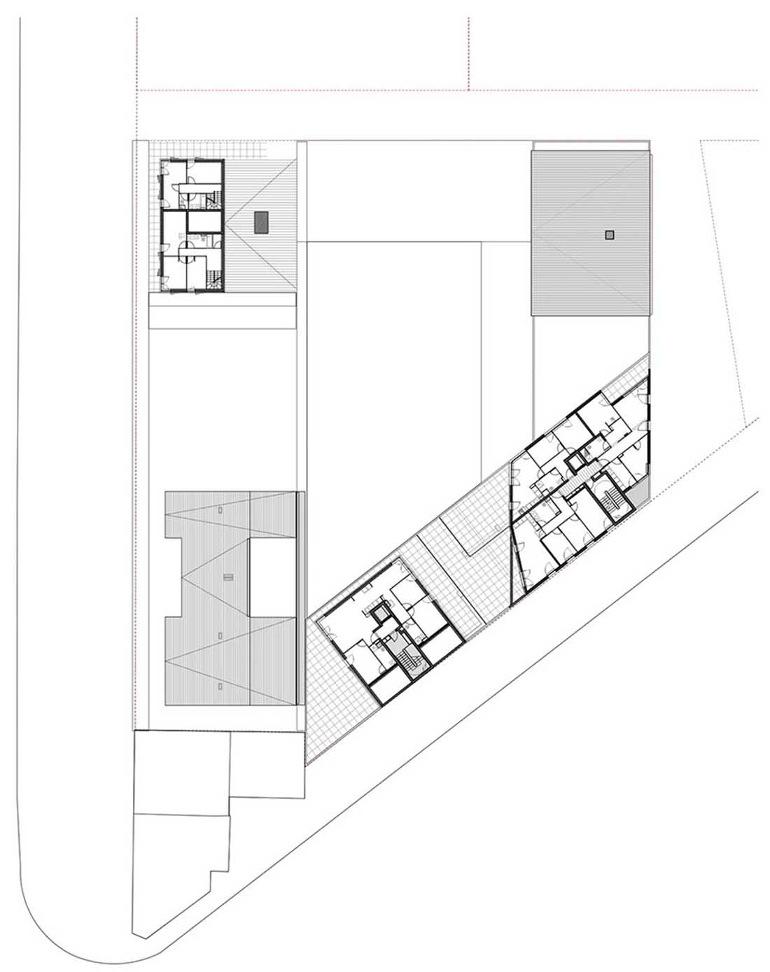
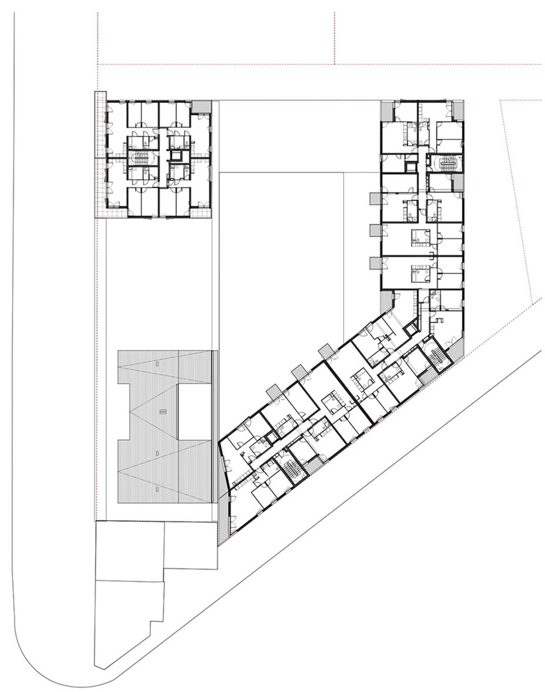
▽ 平面图
▽ 立面图
编后语:设计师在废旧的潜艇基地里面,将旧地块改造为一个充满生活气息的温暖公寓空间。暖色调的木结构建筑外壳与远处的海景相对比,一种宁静的生活气息扑面而来,而设计师设计的庭院也拉近的住户们的社交距离。更多关于旧楼改造、旧房改造、建筑设计的案例,请点击下面的拓展阅读进行跳转阅读。
来源网站:www.archdaily.com
翻译整理:WAQI
延伸阅读
中山产业园改造
景逸庭院式精品酒店改造
昆明教场北路旧房改造项目
WAQI建筑改造案例之蓝豹One·AI智慧谷改造项目
故事未了的江湖客栈|绿境景色花园客栈设计
设计终究是一个不断学习的过程,WAQI作为一家学习型设计事务所,通常在设计的过程中,会分析甚至于拆建一些案例,
不定期分享一些心得。请扫描并关注公众号,更多精彩,与您共享。。。
马上分享WAQI:
微信
QQ空间
新浪微博
上一个
下一个