首页
Home
WAQI做些什么
Services
WAQI的作品
Projects
WAQI是谁
About us
WAQI学院
College
联系WAQI
Contact us
logo
不同立面的多面化改造|旧房改造
发布于:2020-08-24 17:29 浏览:
需要改造的建筑因为年久失修以及漏水等问题破损严重,建筑师希望通过开放新的内部空间,创造集体多功能活动区域。光线和空气进入建筑,将原本厚重的夯土结构和昏暗的房间转变成了一个明亮通透的空间。
项目信息
设计公司:Carles CrosasCCASOG design
项目类型:建筑设计、旧楼改造、景观规划设计
位置:西班牙
▽ 设计构想
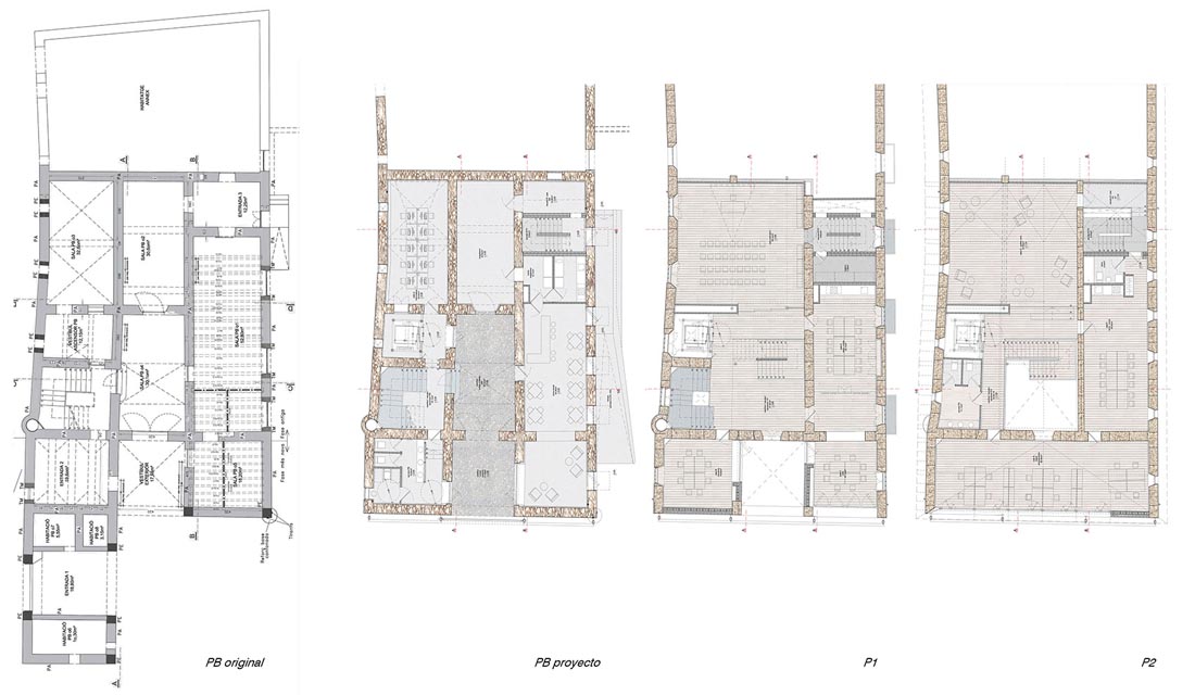
在外部,这座建筑保持了拥有三个不同的立面的传统特征。西立面临街,保留了其不透明性以及原始的材料组成。东立面面向景观以及一楼的新公共空间,巩固了阳台上的显著特征。
南面旧附楼的拆除以及底层的开放式大堂和二楼的门廊空间,展示了建筑在不同时期的双重立面。立面后形成了两个分开的4m宽的平面空间,可以实现更好的遮阳效果,并且让建筑更加节能。
▽ 模型图
建筑师设计了一个新的入口系统和楼梯,使建筑更多功能。豪华的原入口和通往一楼的石阶仍然保留。电梯和位于东翼的新楼梯提供了二次通道,满足无障碍和疏散的需求,并且让建筑能够以多功能房间P1和共享办公空间P2分区运营。通往二楼的主要通道完全保留了原本的样貌,突出了建筑物的中心空间,在通高空间中设有一座新的木制楼梯,被天窗照亮。
▽ 建筑外观
▽ 室内设计
▽ 细节设计
▽ 平面图
▽ 立面图
编后语:因为原本旧建筑的外貌特征,设计师将旧建筑改造为拥有不同里面的多功能设施场所,让建筑保留原貌的同时,通过规划室内空间,将建筑利用起来,让建筑能够发挥余热。更多关于旧楼改造、旧房改造、建筑设计的案例,请点击下面的拓展阅读进行跳转阅读。
来源网站:www.archdaily.com
翻译整理:WAQI
延伸阅读
中山产业园改造
景逸庭院式精品酒店改造
昆明教场北路旧房改造项目
WAQI建筑改造案例之蓝豹One·AI智慧谷改造项目
故事未了的江湖客栈|绿境景色花园客栈设计
设计终究是一个不断学习的过程,WAQI作为一家学习型设计事务所,通常在设计的过程中,会分析甚至于拆建一些案例,
不定期分享一些心得。请扫描并关注公众号,更多精彩,与您共享。。。
马上分享WAQI:
微信
QQ空间
新浪微博
上一个
下一个