首页
Home
WAQI做些什么
Services
WAQI的作品
Projects
WAQI是谁
About us
WAQI学院
College
联系WAQI
Contact us
logo
城市主义酒店设计|精品酒店设计
发布于:2020-08-25 16:50 浏览:
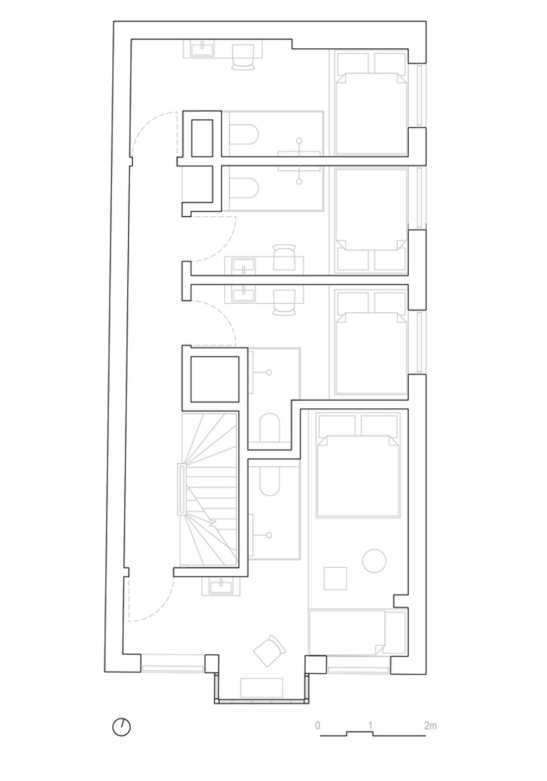
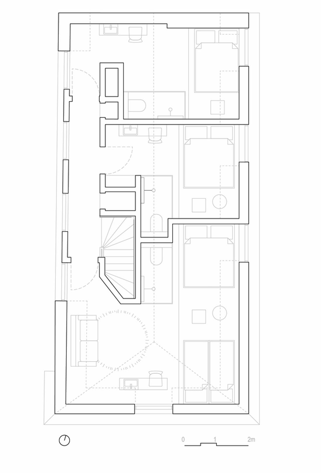
该酒店将荷兰联排别墅的典型走廊改造成活动带,供住户在室内移动,停留和睡觉。全面的修复包括一个新的地下室地板和一个新的带有斜屋顶的第四层。
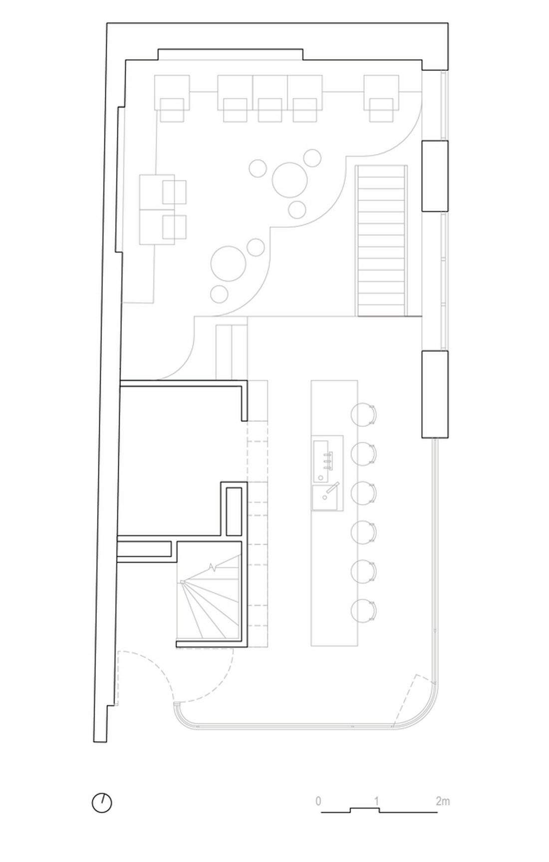
这家酒店由童年时代的朋友一起创立,梦想着自己在繁荣的鹿特丹的独特地位。酒店拥有15间客房和4种不同的大小。它为单身旅行者和家庭提供了空间。一楼连接到鹿特丹最热闹的街道之一,接待处和酒吧被设计为公用厨房,软木中的浮动“云”露台可坐下,并为地下室餐厅带来大量自然光。
项目信息
设计公司:local architecture & urbanism
项目类型:
精品酒店设计
、旧楼改造、度假酒店设计
位置:荷兰
▽ 设计构想
客房在最佳的空间中结合了定制设计的舒适性和便利性。榻榻米风格的软木和竹制壁橱,适合于房间的轻盈通风设计,将经典的市中心建筑变成了宁静的绿洲。从字面上看,房间就像一条舒适的毯子一样环绕着您,在城市中营造出您自己的宁静角落。
▽ 室内设计
▽ 房间设计
▽ 平面图
▽ 立面图
编后语:这是一家很酷,但同时又充满乐趣和色彩的度假酒店。设计师将城市主义设计包含在酒店设计的方方面面,让客人在房间内能够有一个属于自己的小角落,温馨的氛围会围绕着入住的每一位客户。更多关于旧楼改造、旧房改造、建筑设计的案例,请点击下面的拓展阅读进行跳转阅读。
来源网站:www.archdaily.com
翻译整理:WAQI
拓展阅读
故事未了的江湖客栈|绿境景色花园客栈设计
青旅社区---阳朔东院弥香客栈
三亚洲际度假酒店[酒店设计]
景逸庭院式精品酒店改造
设计终究是一个不断学习的过程,WAQI作为一家学习型设计事务所,通常在设计的过程中,会分析甚至于拆建一些案例,
不定期分享一些心得。请扫描并关注公众号,更多精彩,与您共享。。。
马上分享WAQI:
微信
QQ空间
新浪微博
上一个
下一个