首页
Home
WAQI做些什么
Services
WAQI的作品
Projects
WAQI是谁
About us
WAQI学院
College
联系WAQI
Contact us
logo
河岸上的红砖酒店|精品酒店设计
发布于:2020-08-28 17:50 浏览:
当设计师设计酒店以及包括河滨甲板在内的所有甲板的布局时,最关心的是所有客人的视野:如何尽可能地共享最佳视野,而酒店住客仍然享有隐私权。
项目信息
设计公司:onion
项目类型:
精品酒店设计
、度假酒店设计、景观规划设计
位置:泰国
▽ 建筑外观
在总体规划中,设计师将餐厅和酒店这两个建筑分隔开,并让主要的流通通道让每个人进入现场后立即看到河流。随着人们探索每个空间,河中还有更多令人惊讶的元素,例如河边砖砌的堡垒要塞,游泳池旁的一棵巨大菩提树的景象等,还有游泳池和主要水流之间建一堵木墙,作为酒店主要木制楼梯的延伸。
▽ 室内设计
其次,酒店有一棵菩提树,设计师通过尽可能远离其根基的建筑地基加以保护。菩提树是三维空间构成方面的灵感。设置了游泳池的高度和主要循环通道,供客人欣赏菩提树的海拔。
酒店的外观是砖结构,水泥漆成白色。墙壁的不同纹理似乎捕获光线和阴影的方式有所不同。砖块特别小,以6种不同的墙壁和地板图案排列,其颜色为特殊的橙色。
▽ 景观设计
▽ 细节设计
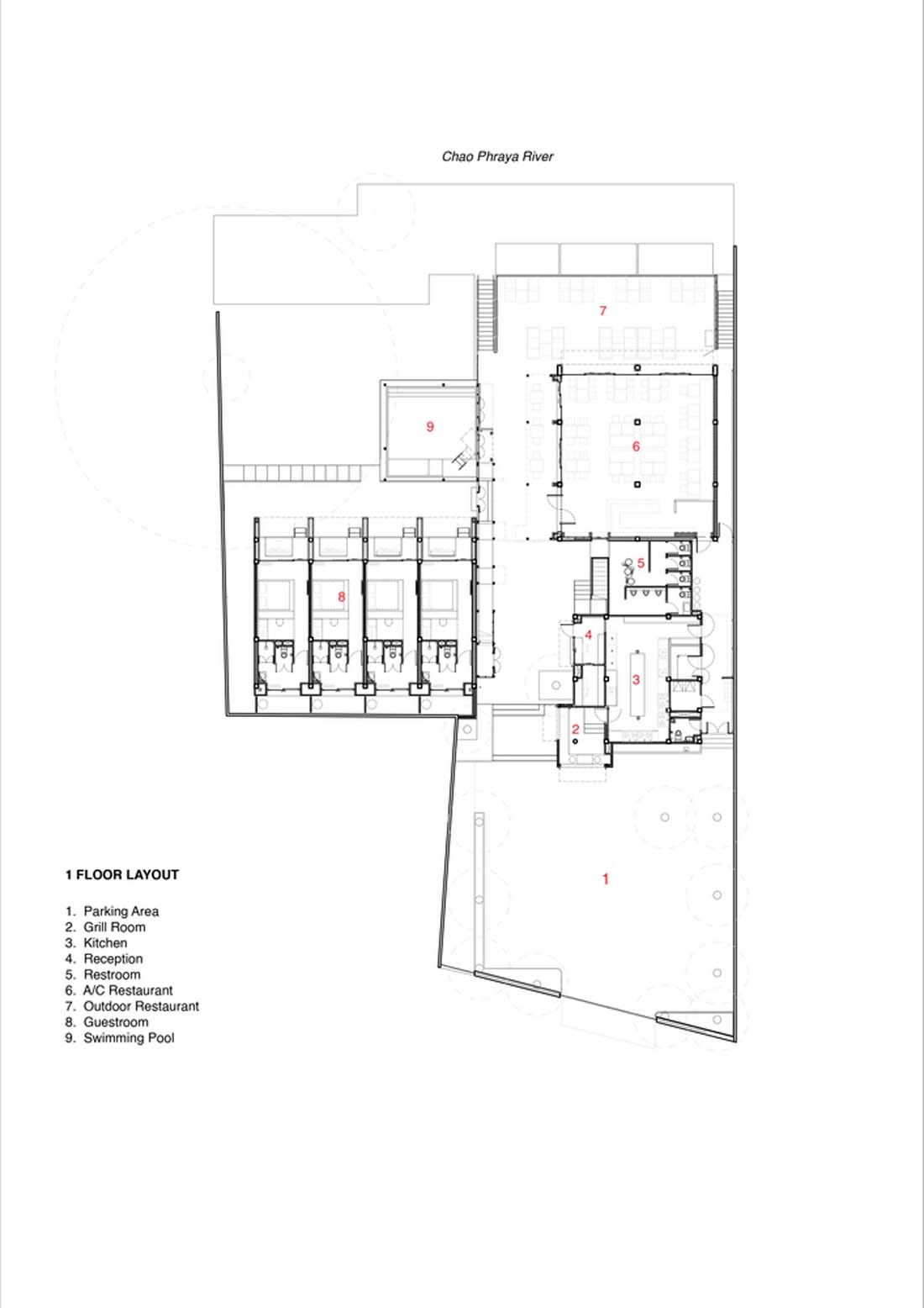
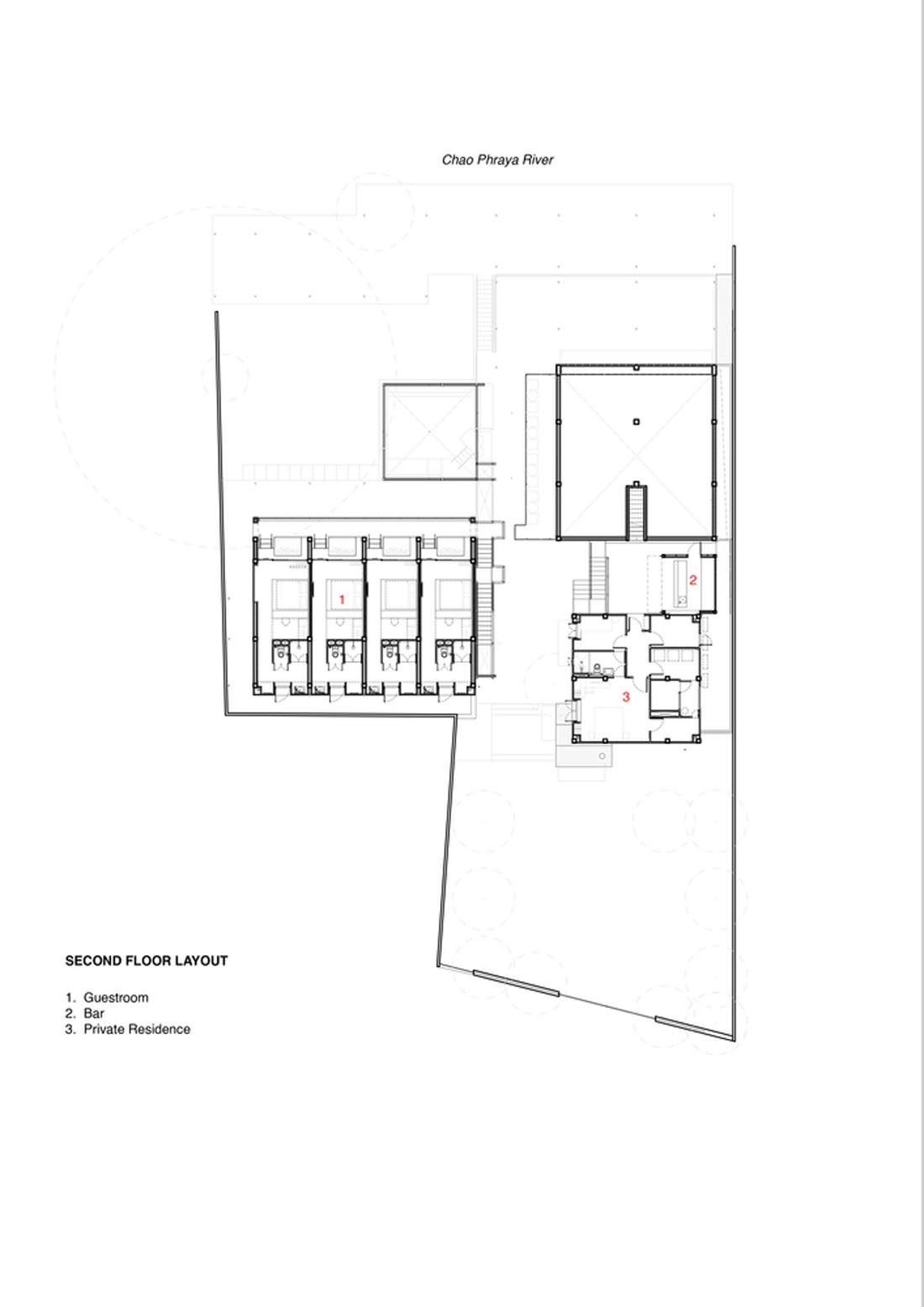
▽ 平面图
编后语:酒店的规模虽然较小,但是就是这小规模的酒店设计,让客人们能够在酒店感受到温暖,温馨和舒适的环境。设计师利用简单的构造细节,让酒店建筑的室内颜色有着鲜明强烈的对比,绿色和黄色也与砖和木头的颜色形成对比,虽然有着视觉冲击性,但是却透露着调皮的温暖。更多关于度假酒店设计、精品酒店设计、建筑设计的案例,请点击下面的拓展阅读进行跳转阅读。
来源网站:www.archdaily.com
翻译整理:WAQI
拓展阅读
故事未了的江湖客栈|绿境景色花园客栈设计
青旅社区---阳朔东院弥香客栈
三亚洲际度假酒店[酒店设计]
景逸庭院式精品酒店改造
设计终究是一个不断学习的过程,WAQI作为一家学习型设计事务所,通常在设计的过程中,会分析甚至于拆建一些案例,
不定期分享一些心得。请扫描并关注公众号,更多精彩,与您共享。。。
马上分享WAQI:
微信
QQ空间
新浪微博
上一个
下一个