首页
Home
WAQI做些什么
Services
WAQI的作品
Projects
WAQI是谁
About us
WAQI学院
College
联系WAQI
Contact us
logo
发掘城市的废弃空间|旧房改造
发布于:2020-08-28 17:30 浏览:
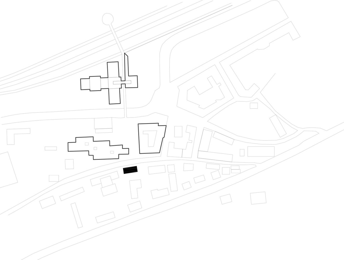
以一种几乎超现实的方式,显眼而细长的深色建筑体正坐落在 Klostergasse 上,就好像它意外地从纯几何学领域突然出现在一个未完成的世界。大尺度的地区行政办公室和省警察总部在其前景中,以及周围的1960年代和1970年代建造的居民楼,更加凸显了这种对比。
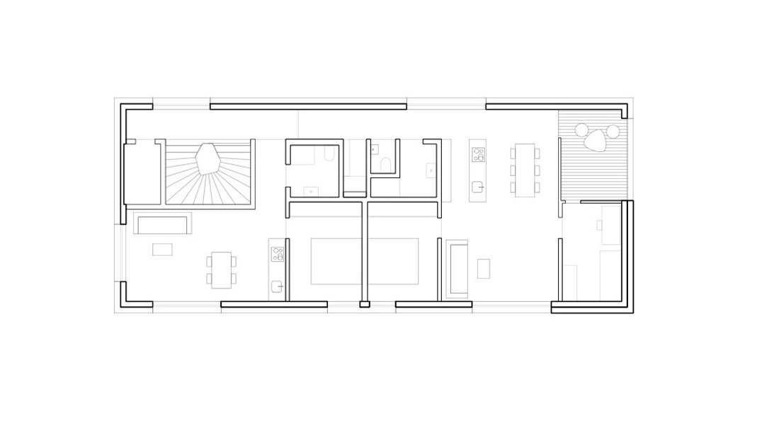
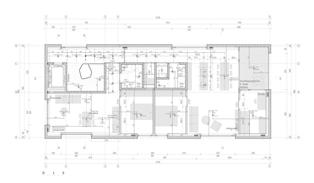
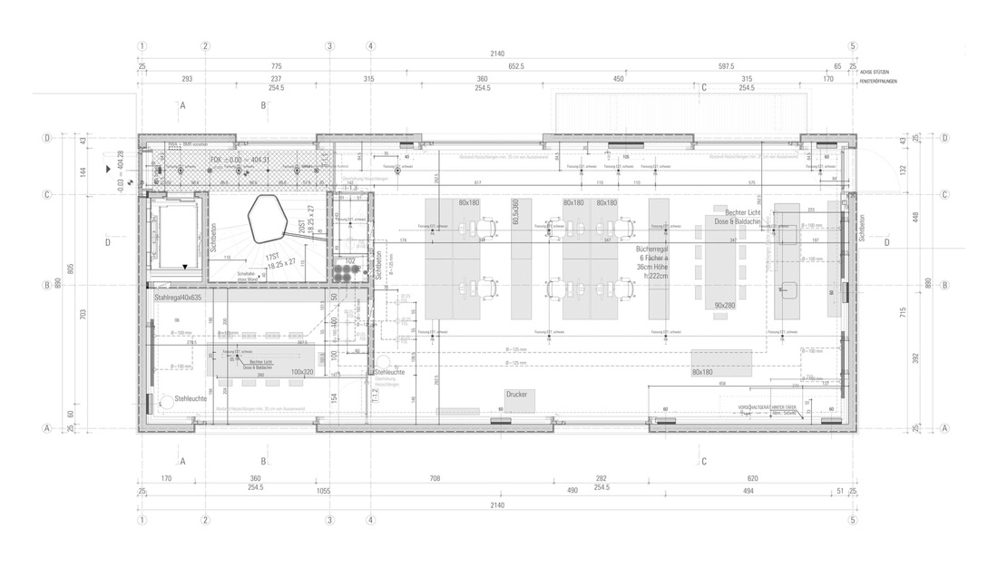
这个细长的建筑体有四层,一层叠着一层。所有楼层里的空间均以精确相等的比例组织起来,而不同的大窗户开口能看到不同的视野风景和不同时间位置的太阳。每个单元都设计成了可以工作和居住的空间。使用的灵活性将赋予这个建筑物以长期价值。
项目信息
设计公司:Bernardo Bader Architekten
项目类型:建筑设计、旧楼改造、景观规划设计
位置:奥地利
▽ 建筑外观
该建筑物完全是由混凝土建成的,地板、天花板、墙壁和屋顶均使用相同的材料。深色混凝土在此项目中展现了其充分的雕塑性和气氛性潜力。精巧的浇筑与保持未经处理的醒目表面,都象征着这种材料的工作过程和原始力量感。
混凝土的空间辅以自然色调的云杉木和未经处理的钢材制作而成的家具。表面结构物及其触感性为个人工作室和生活空间注入他们的独特氛围。这个建筑物每个细节上的氛围感和刺激性,激发出持久的吸引力。
▽ 室内设计
▽ 平面图
▽ 立面图
编后语:设计师将其建筑创作态度附加在这座旧建筑上面,保留着原建筑的混凝土特色外墙,将建筑的每一面都变成特色风景面,这一扇扇特色窗户也赋予了建筑独属于自己的特色。更多关于旧楼改造、旧房改造、建筑设计的案例,请点击下面的拓展阅读进行跳转阅读。
来源网站:www.archdaily.com
翻译整理:WAQI
延伸阅读
中山产业园改造
景逸庭院式精品酒店改造
昆明教场北路旧房改造项目
WAQI建筑改造案例之蓝豹One·AI智慧谷改造项目
故事未了的江湖客栈|绿境景色花园客栈设计
设计终究是一个不断学习的过程,WAQI作为一家学习型设计事务所,通常在设计的过程中,会分析甚至于拆建一些案例,
不定期分享一些心得。请扫描并关注公众号,更多精彩,与您共享。。。
马上分享WAQI:
微信
QQ空间
新浪微博
上一个
下一个