首页
Home
WAQI做些什么
Services
WAQI的作品
Projects
WAQI是谁
About us
WAQI学院
College
联系WAQI
Contact us
logo
在民宿体验丛林生活|精品酒店设计
发布于:2020-09-04 16:09 浏览:
该民宿致力于保留部分被移除的树木,并将积极管理景观以鼓励本地动植物繁盛。该项目的占地面积已被最小化,保留了60%的土地作为可渗透的景观或天然丛林地面。
底楼由单个堆叠的石墙界定,该石墙构筑并支撑着较高的楼层。这种引人注目的建筑特色是由丰富的当地石灰石形成的,也利用了该地区其他开发项目产生的建筑废料。
项目信息
设计公司:Holland Harvey Architects
项目类型:建筑设计、旧楼改造、景观规划设计
位置:墨西哥
▽ 建筑外观
在其架构中,内部和外部之间的传统界限已被重新设计;现在,一楼是翠绿的园景花园的延伸,而嵌入景观的私人泳池让人联想到该地区著名的标志性“ cenotes”。
这些房屋设计为被动通风,两侧均具有可完全打开的外墙。用可持续采购的本地Brise-soléil位于较高楼层,提供了私密性并最大程度地减少了阳光吸收,同时允许自然风来冷却房屋,从而减少了机械冷却的需要。
▽ 室内设计
内部,双重高度的空间和阳台有助于空气的自由流通,并为框出周围丛林的壮丽景色创造了机会。屋顶的帕拉帕(Palapa)提供了360度的林冠全景,并享有热带野生动植物的私密景致。设施齐全的厨房,休息室和用餐区鼓励居民在树林中度过时间:真正的丛林生活。
▽ 景观设计
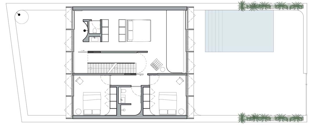
▽ 平面图
编后语:设计师以社区和可持续发展为核心设计民宿。设计师保留了原树木,为原生物种提供栖息地,除此之外,设计师还种植了当地果树,让住户能够在庭院内享受收获的喜悦,体验真正的丛林生活。更多关于景观规划设计、度假酒店设计、
精品酒店设计
的案例,请点击下面的拓展阅读进行跳转阅读。
来源网站:www.archdaily.com
翻译整理:WAQI
拓展阅读
故事未了的江湖客栈|绿境景色花园客栈设计
青旅社区---阳朔东院弥香客栈
三亚洲际度假酒店[酒店设计]
景逸庭院式精品酒店改造
设计终究是一个不断学习的过程,WAQI作为一家学习型设计事务所,通常在设计的过程中,会分析甚至于拆建一些案例,
不定期分享一些心得。请扫描并关注公众号,更多精彩,与您共享。。。
马上分享WAQI:
微信
QQ空间
新浪微博
上一个
下一个