首页
Home
WAQI做些什么
Services
WAQI的作品
Projects
WAQI是谁
About us
WAQI学院
College
联系WAQI
Contact us
logo
会改变居民生活的公寓|生态建筑
发布于:2020-09-04 16:13 浏览:
这是旧的不伦瑞克(Brunswick),它原本是工业设备。从根本上说,公寓是关于人而不是建筑形式的。这里真正令人印象深刻的是人们使用建筑物的方式,互动方式,电梯中彼此微笑和交谈的方式,以及彼此之间的慷慨大方。
在这里已经形成的社区和友情感令人难以置信。公寓里到处都是伟大的邻居和好人。设计师认为,架构是实现这一目标的催化剂,是具有相似价值观的人们聚集在一起建立社区的吸引力。The Commons的设计策略是用更少的钱建造更多的东西:空间和高度,光线和空气。
项目信息
设计公司:Breathe Architecture
项目类型:建筑设计、生态建筑、景观规划设计
位置:澳大利亚
▽ 建筑外观
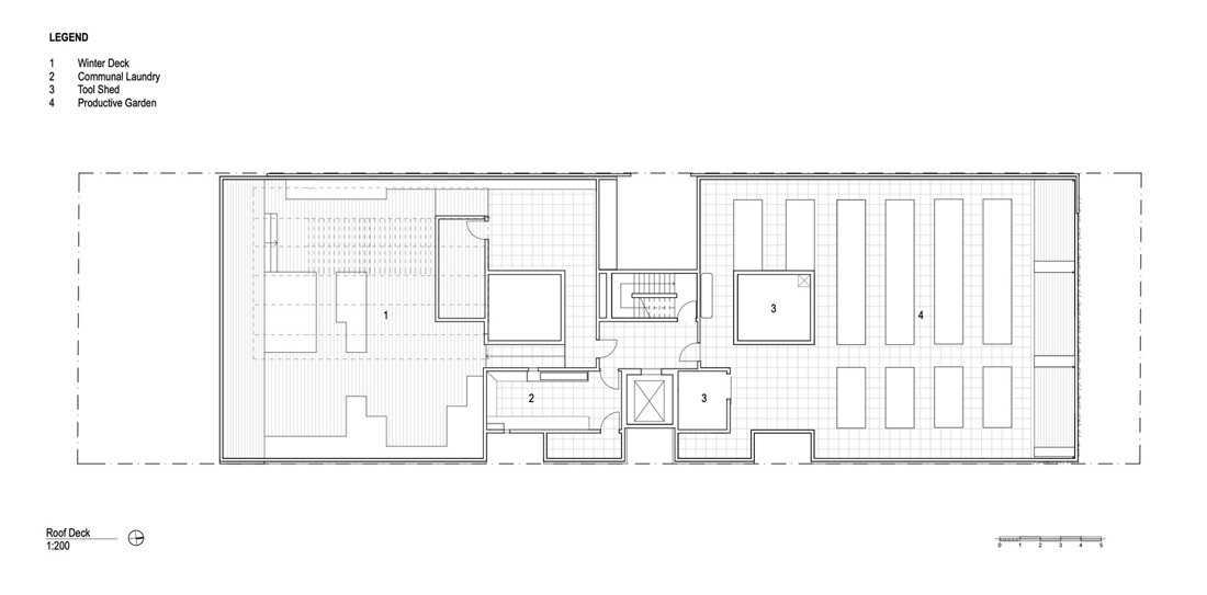
设计师将公寓改造设计得比较简单。重要性优先于形式。宽敞的公寓,铺有打蜡的木地板,混凝土天花板和裸露的铜板服务,柔软的调色板。北部的公寓通过运输链的屏幕向外看,为24棵紫藤树苗提供了居住的框架。屋顶甲板被翠绿的植物所环绕,俯瞰着不伦瑞克的天际线。邻居们在屋顶上交谈,分享有关如何最好地种植农作物的技巧。
▽ 室内设计
▽ 景观设计
公寓宽敞,易于居住且光线充足。在西侧,地面层向后倾斜以扩大压缩的自行车道,灯场和后院都移交给公共区域,而不是在领土上被围起来。这些绿色空间为旧不伦瑞克(Brunswick)的混凝土和沥青城市景观提供了缓解。
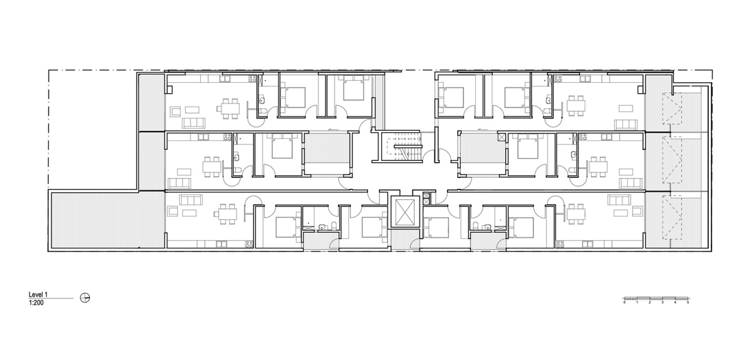
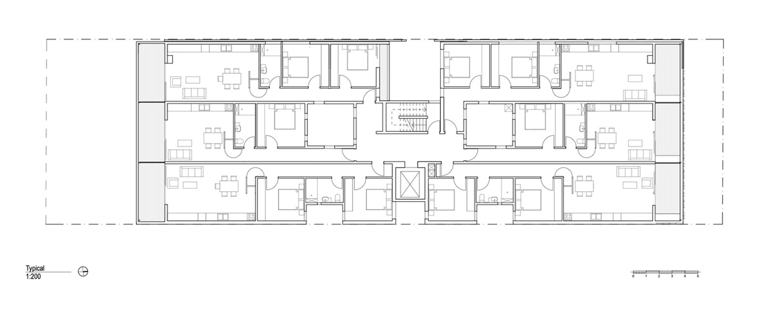
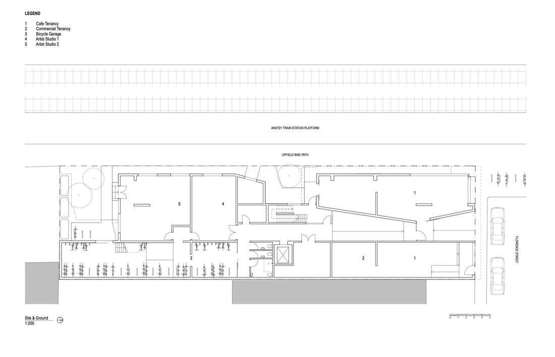
▽ 平面图
▽ 立面图
编后语:这是一栋简单的建筑,设计师只用美丽、自然的材料组装而成。每一个细节都考虑了社会,可持续和住户的经济。在这个公寓居住,会让其居住者进行真正的行为改变,还会鼓励其他人也这样做。更多关于生态建筑、旧房改造、建筑设计的案例,请点击下面的拓展阅读进行跳转阅读。
来源网站:www.archdaily.com
翻译整理:WAQI
延伸阅读
三亚洲际度假酒店[酒店设计]
“消失”的接待中心|田园综合体设计的另一种可能性
大凉山沙马普尔彝族人文生态村规划设计
怀来农产品展示中心
汤沟小镇概念性规划
设计终究是一个不断学习的过程,WAQI作为一家学习型设计事务所,通常在设计的过程中,会分析甚至于拆建一些案例,
不定期分享一些心得。请扫描并关注公众号,更多精彩,与您共享。。。
马上分享WAQI:
微信
QQ空间
新浪微博
上一个
下一个