首页
Home
WAQI做些什么
Services
WAQI的作品
Projects
WAQI是谁
About us
WAQI学院
College
联系WAQI
Contact us
logo
海滩度假酒店设计|度假酒店设计
发布于:2020-09-09 17:21 浏览:
Nantipa a Tico海滩体验酒店位于太平洋海滩的圣特蕾莎(哥斯达黎加)。Nantipa在当地土著乔罗特甘语中代表“蓝色”,也是居住在尼科亚半岛的部落的主要贡品。该酒店的主要设计愿景意在通过结合可持续性方法与地域性的设计策略,重新定义哥斯达黎加“奢华”的理念。
这家精品酒店占地2.3公顷,拥有11间海滨平房(Ninta)和24间家庭式客房(Nanku)。酒店将分两期开发:一期包括7间Ninta平房和8间Nanku客房。大多数客房都能看到全部或部分海景,以及花园和游泳池景观。酒店范围包含生态保护区、海景游泳池和海滨餐厅。
项目信息
设计公司:Garnier Arquitectos
项目类型:度假酒店设计、
精品酒店设计
、景观规划设计
位置:哥斯达黎加
▽ 设计构想
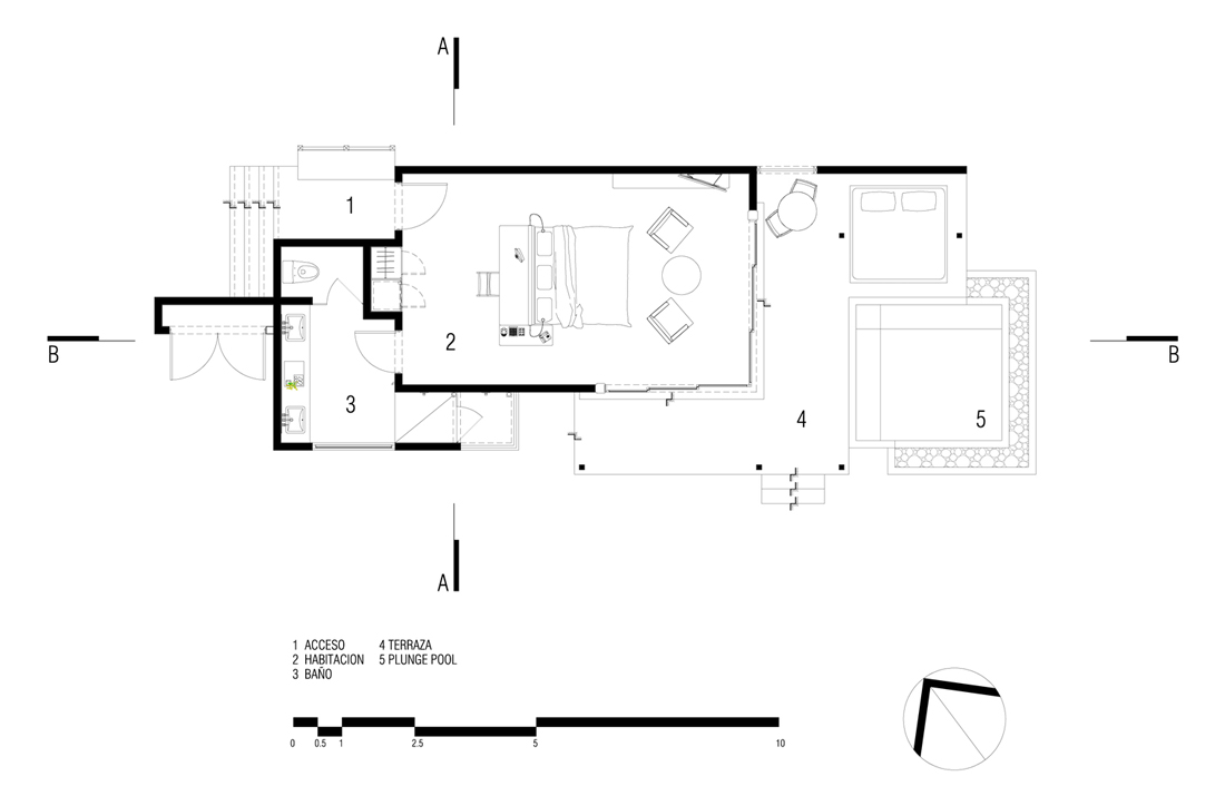
7间Ninta海滨平房的面积约为80平方米(800平方英尺),设有大床、室外露台、3.5米×3.5米(10×10英尺)的游泳池、吊床、宽敞的浴室和室内外淋浴。房间内的落地玻璃门充分利用卧室的角落,在客人和外部景观环境之间提供了一个开放的媒介,与此同时,其中所运用的与场地相协调的天然原材料,也为用户创造了另一种特殊的户外体验,周围的自然和海洋的声音,就是这片场地的天然优势。
8间Nanku客房的面积约65平方米(650平方英尺),分为两个独立的空间:卧室和客厅。卧室配有一张特大床或两张大床,客厅配有一张双人床垫沙发床。这两栋两层建筑共有8个房间,并配有宽敞的露台和阳台,可以看到主游泳池和花园区域。客房周围环绕着的各种景观元素,有助于保护每个单元的隐私。
Manzu餐厅也是酒店海滨景点的一部分,游客们可以在这里观赏海景和日落。这里整个空间的设计都融入了天然原材料,比如棕榈树和树干,仿佛从前的传统土著小屋,而开放式厨房的加入则为传统建筑元素增添了一种现代而独特的氛围。
▽ 俯瞰图
▽ 建筑外观
▽ 室内设计
▽ 景观设计
▽ 平面图
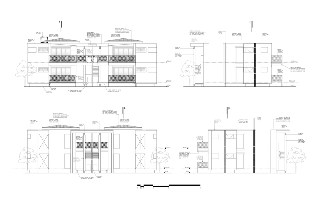
▽ 立面图
编后语:设计师利用当地特色植物,用作建筑材料,再将度假酒店置于海滩上,让酒店内的每一间房间都沐浴着自然,每一间房间都能看到大海与花园,仿佛置身于丛林中,也仿佛置身在海上。更多关于精品酒店设计、度假酒店设计、建筑设计的案例,请点击下面的拓展阅读进行跳转阅读。
来源网站:www.archdaily.com
翻译整理:WAQI
拓展阅读
故事未了的江湖客栈|绿境景色花园客栈设计
青旅社区---阳朔东院弥香客栈
三亚洲际度假酒店[酒店设计]
景逸庭院式精品酒店改造
设计终究是一个不断学习的过程,WAQI作为一家学习型设计事务所,通常在设计的过程中,会分析甚至于拆建一些案例,
不定期分享一些心得。请扫描并关注公众号,更多精彩,与您共享。。。
马上分享WAQI:
微信
QQ空间
新浪微博
上一个
下一个