城市里的钢管丛林住宅设计|生态设计
发布于:2020-09-09 17:13  浏览:

Steel Grove项目场地位于城镇住宅区,住宅相互环绕。从外部空间的构成来看,Steel Grove是对韩国传统住宅的现代诠释。韩国人的主流住房是“公寓”,超过90%的韩国人住在公寓或类似公寓的房子里,这些功能性的生活区域通常没有外部空间,而传统的韩国房屋包含各种各样的外部空间:前院、后院、taenmaru(沿房间延伸的狭窄木廊)和daecheongmaru(主廊)。每个外部空间对不同的房间有不同的功能,其中某些外部空间甚至与栅栏外的街道有联系。
 
Steel Grove有各种各样的外部空间,与传统韩国住宅的特征类似,每一个外部空间都相互关联,对每个房间都有不同的功能作用。当你打开主门,进入一个开放的屋顶空间,这个空间通过中庭连接餐厅,中庭又与跟客厅相连的前花园相连。前花园也与二楼的平台相连。虽然的大部分外部空间位于房子的一侧,并与房子内部一起发挥作用,但是南立面和南花园试图与周围的街道创建沟通与联系。
 
 
 
 
 
 
 
项目信息
设计公司:ar-Architects
项目类型:建筑设计、生态设计、景观规划设计
位置:韩国
 
 
 
 
▽ 设计构想

 
 
在设计面向四车道道路的南立面时,设计师试图在建立邻里联系的同时,给人营造一种隐私感。经过多次研究,“Steel Grove”以不锈钢管道的形式设计,这既营造了一种私密性,又与自然和周边环境相联系。“Steel Grove”由4种不同类型的不锈钢管组成,为了找到最稳定的平衡,它们都是经过了多次样品制作后才生产出来的。
 
“Steel Grove”不仅解决了住宅的功能性问题,还试图与附近的街道建立一种新型的关系。当太阳升起时,“Steel Grove”就会脱颖而出,充当立面的角色;当你进入房间时,直射的太阳光被“Steel Grove”巧妙地散射;当太阳下山时,房间里的光线透过“Steel Grove”,形成与白天不同的立面形式。该立面的变化为街道创造了不同的环境,设计师试图通过这样来诠释房子和周边之间的关系。
 
▽ 建筑外观

 
 
 
▽ 室内设计

 
 
 
 
 
 
 
 
 
 
 

▽ 景观设计

 
 
 
 
 
 
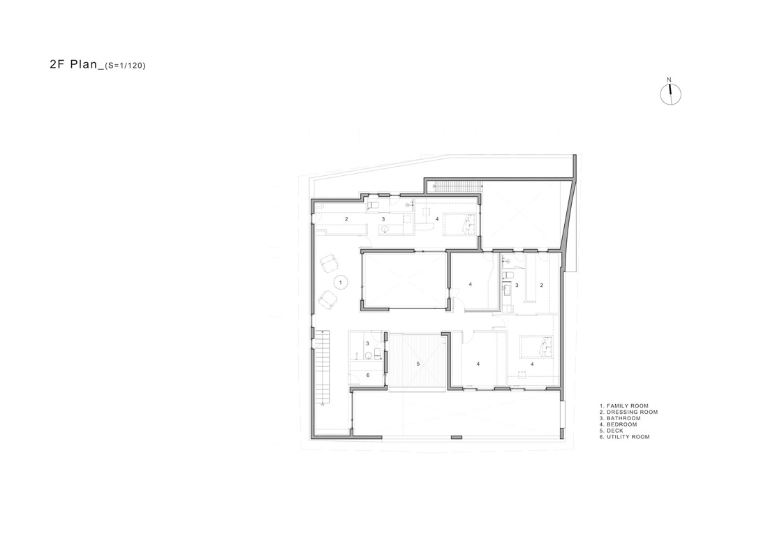
▽ 平面图

 
 
 
 
▽ 立面图

 
 
 
 
 
 
 
 
 
 
 
 
 
 
编后语:设计师根据爱园艺的住户,为住户们创造一个既能提供足够的隐私,又能与周围环境保持某种联系的房子。让住户们在房子内,除了能感受到与传统住宅一样的氛围外,还有现代设计的便利,让房子与周边的街道也能建立联系。更多关于生态建筑、生态设计、建筑设计的案例,请点击下面的拓展阅读进行跳转阅读。
 
 
 
来源网站:www.archdaily.com
翻译整理:WAQI






延伸阅读
三亚洲际度假酒店[酒店设计]
“消失”的接待中心|田园综合体设计的另一种可能性
大凉山沙马普尔彝族人文生态村规划设计
怀来农产品展示中心
汤沟小镇概念性规划




设计终究是一个不断学习的过程,WAQI作为一家学习型设计事务所,通常在设计的过程中,会分析甚至于拆建一些案例,
不定期分享一些心得。请扫描并关注公众号,更多精彩,与您共享。。。