首页
Home
WAQI做些什么
Services
WAQI的作品
Projects
WAQI是谁
About us
WAQI学院
College
联系WAQI
Contact us
logo
度假酒店让老房子重归繁荣|精品酒店设计
发布于:2020-09-15 16:14 浏览:
在中国浙江省建德镇八木田,一座新近装修过的别墅叫松树屋,藏在海拔700米的山丘上。它已从其主人的祖先遗产的基础转变而来,意在珍惜所有者童年时代对前院里松树的美丽月光的记忆。
重建两个旧的泥房并增加三个新房有三个主要挑战。首先,泥棚几乎掉下来了,里面很黑。其次,架构和周围环境中有限的运动流程。第三,新旧之间的平衡。
项目信息
设计公司:中国美术学院景观与建筑设计研究院
项目类型:度假酒店设计、
精品酒店设计
、景观规划设计
位置:中国
▽ 俯瞰图
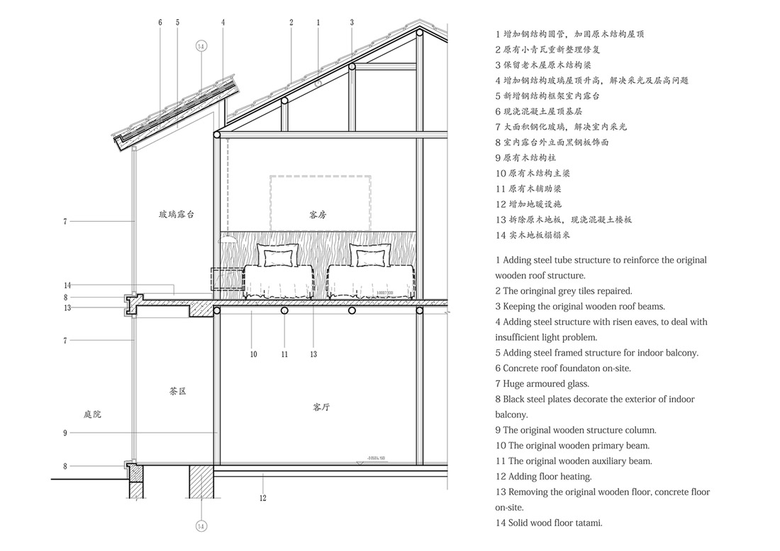
设计团队使用钢框架结构加固薄弱的泥墙,并在中间增加了巨大的落地玻璃窗,并增加了屋檐,以应对结构应力问题和光线不足问题。此外,他们根据实际情况相应地分配新建筑物。
考虑周到地将所有房间入口定位在建筑物的背面,以保护隐私。最后,设计师诚实地保留了原始的墙壁,并简单地采用当地的木材,岩石和以前的器皿来加固和装饰房屋,从而在房屋和自然之间建立了尊重的联系。
▽ 建筑外观
▽ 室内设计
▽ 景观设计
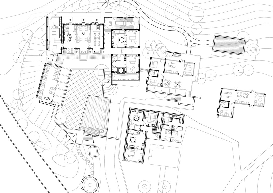
▽ 平面图
▽ 立面图
编后语:设计师保留老房子的沧桑外壳,用生态设计与景观规划设计将老房子改造为一个充满回忆感的酒店,这让老房子重焕生机,每一处都有着回忆与美妙风景。更多关于旧楼改造、度假酒店设计、精品酒店设计、建筑设计的案例,请点击下面的拓展阅读进行跳转阅读。
来源网站:www.archdaily.com
翻译整理:WAQI
拓展阅读
故事未了的江湖客栈|绿境景色花园客栈设计
青旅社区---阳朔东院弥香客栈
三亚洲际度假酒店[酒店设计]
景逸庭院式精品酒店改造
设计终究是一个不断学习的过程,WAQI作为一家学习型设计事务所,通常在设计的过程中,会分析甚至于拆建一些案例,
不定期分享一些心得。请扫描并关注公众号,更多精彩,与您共享。。。
马上分享WAQI:
微信
QQ空间
新浪微博
上一个
下一个