首页
Home
WAQI做些什么
Services
WAQI的作品
Projects
WAQI是谁
About us
WAQI学院
College
联系WAQI
Contact us
logo
宁静的绿洲建筑|生态建筑
发布于:2020-09-15 16:27 浏览:
Naman Retreat Pure Spa是宁静的绿洲,为五星级的Danang Naman Retreat提供了便利。15间令人惊叹的理疗室拥有茂密的露天花园,深浸浴缸和可容纳2人的软垫沙发床。在仍然凉爽的早晨,您可以在同样时尚的健身俱乐部健身,在露天休息室的花园里进行健身,冥想和瑜伽课程。底楼包含开放空间,平台上有放松的平台,周围环绕着宁静的荷花池和空中花园。
项目信息
设计公司:MIA设计工作室
项目类型:建筑设计、生态建筑、景观规划设计
位置:越南
▽ 设计构想
设计师巧妙地利用了自然通风,使建筑物保持凉爽,并为客人提供了清新的体验。通过使用当地植物,每个静修场所都将成为一个疗愈环境,让客人可以在私密的环境中享受豪华的养生。
不同区域的水流彼此顺畅地流淌,美丽的风景创造了通往梦幻般体验的奇妙旅程。外墙由格子图案和垂直景观组成,这些垂直景观将强烈的热带阳光过滤成斑驳的墙壁上令人愉悦的光影。精心布置了各种植物,并成为建筑屏风的一部分。
▽ 建筑外观
▽ 室内设计
▽ 景观设计
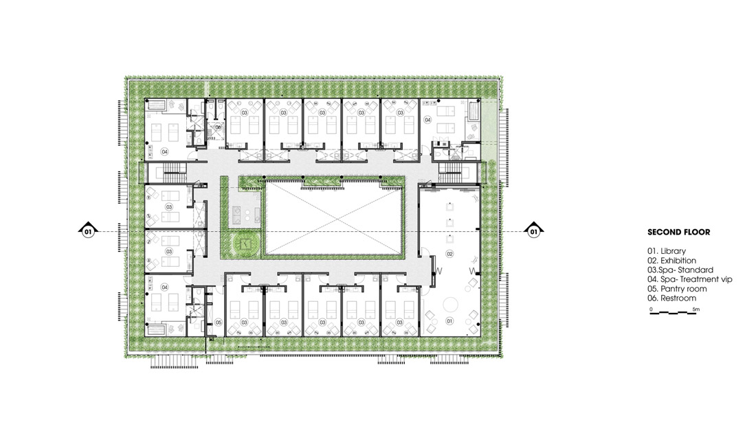
▽ 平面图
▽ 立面图
编后语:设计师将水疗空间与生态建筑结合一起,规划了一个真正的惬意空间,让客人们在建筑内能感受到自然的生机,心灵的安宁,在私密又生机勃勃的空间里享受养生的乐趣。更多关于生态建筑、生态设计、建筑设计的案例,请点击下面的拓展阅读进行跳转阅读。
来源网站:www.archdaily.com
翻译整理:WAQI
延伸阅读
三亚洲际度假酒店[酒店设计]
“消失”的接待中心|田园综合体设计的另一种可能性
大凉山沙马普尔彝族人文生态村规划设计
怀来农产品展示中心
汤沟小镇概念性规划
设计终究是一个不断学习的过程,WAQI作为一家学习型设计事务所,通常在设计的过程中,会分析甚至于拆建一些案例,
不定期分享一些心得。请扫描并关注公众号,更多精彩,与您共享。。。
马上分享WAQI:
微信
QQ空间
新浪微博
上一个
下一个