首页
Home
WAQI做些什么
Services
WAQI的作品
Projects
WAQI是谁
About us
WAQI学院
College
联系WAQI
Contact us
logo
回收材料改造创意街区住宅|旧房改造
发布于:2020-09-18 18:16 浏览:
该项目对伊瓜拉达的两座建造于19世纪末的房屋进行了改造。项目所在的Rec街区原本坐落着一栋小型的纺织工厂和住宅,如今已经转型为一个活跃的创意街区,是艺术加、文化活动和美食的聚集地。
项目信息
设计公司:Guallart Architects
项目类型:建筑设计、旧楼改造、景观规划设计
位置:巴塞罗那
▽ 设计构想
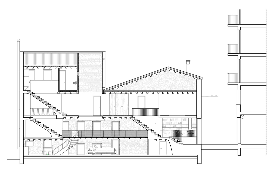
在该项目中,建筑师清空了既有建筑中的楼板、天井、墙壁和立柱,以便腾出居住和办公的空间。因此,工作的基本内容是对原先简单而普通的建筑进行拆除、加固、回收和评估。
住宅的底层设置了一个双层高的空间,包含带有书架的夹层和一个开放式壁炉。二层包含多个儿童房,并围绕着原来的通风天井建造了一个开阔的中央空间。顶层是一个面积较大的开放空间,其铺装材料是由拆除的横梁回收而来。
▽ 建筑外观
在另一座小型商业建筑中,底层和顶层各设有一个工作空间,并且同样采取了回收废料的做法,显著地节约了材料的用量。建筑的立面直观地展现出其在不同建造阶段所使用过的材料。
▽ 室内设计
▽ 平面图
▽ 立面图
编后语:设计师用各种回收材料,将建筑进行内外的改造,让建筑在创意街区也不会很突兀,整个建筑也给人一种很干净舒服的感觉,室内的区域划分也是让建筑变得更加的细致,合理化。更多关于旧楼改造、旧房改造、建筑设计的案例,请点击下面的拓展阅读进行跳转阅读。
来源网站:www.gooood.cn
翻译整理:WAQI
延伸阅读
中山产业园改造
景逸庭院式精品酒店改造
昆明教场北路旧房改造项目
WAQI建筑改造案例之蓝豹One·AI智慧谷改造项目
故事未了的江湖客栈|绿境景色花园客栈设计
设计终究是一个不断学习的过程,WAQI作为一家学习型设计事务所,通常在设计的过程中,会分析甚至于拆建一些案例,
不定期分享一些心得。请扫描并关注公众号,更多精彩,与您共享。。。
马上分享WAQI:
微信
QQ空间
新浪微博
上一个
下一个