首页
Home
WAQI做些什么
Services
WAQI的作品
Projects
WAQI是谁
About us
WAQI学院
College
联系WAQI
Contact us
logo
在酒店体验自然的一部分|度假酒店设计
发布于:2020-09-30 15:44 浏览:
我们是自然的一部分,我们希望尊重地球和水作为基本要素。这家酒店源于设计师对Oaxaca海岸的热爱,希望客人成为这种体验的一部分。
酒店周围的丛林已有数千年的历史,这就是为什么在施工期间尊重所有树木的原因,并且允许它们继续生长。San Agustinillo的自然资源使设计师能够设计与自然保持平衡的空间,所有木材均为本地木材,墙壁饰面由泥土和石灰制成。
除此之外,设计师还开发了100%的消耗水回用系统,我们还收集了雨水以利用雨水和可生物降解的优势对地球友好。通过这种方式,进入水循环中,并使其流动而不会产生干扰。
项目信息
设计公司:Atte,Taller LU'UM
项目类型:
精品酒店设计
、度假酒店设计、景观规划设计
位置:墨西哥
▽ 建筑外观
▽ 室内设计
▽ 景观设计
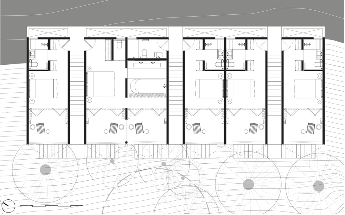
▽ 平面图
▽ 立面图
编后语:设计师给度假酒店的每间套房均设有露台,可欣赏周边丛林的美景。此外,使用净化系统的天然泳池,让该地区的花园保持新鲜,度假酒店的设计让酒店处于完全环保生态的过程中,即便客人居住其中,也能从周边的环境中感受到设计师的不破坏自然的决心。更多关于度假酒店设计、景观规划设计、建筑设计的案例,请点击下面的拓展阅读进行跳转阅读。
来源网站:www.archdaily.com
翻译整理:WAQI
拓展阅读
故事未了的江湖客栈|绿境景色花园客栈设计
青旅社区---阳朔东院弥香客栈
三亚洲际度假酒店[酒店设计]
景逸庭院式精品酒店改造
设计终究是一个不断学习的过程,WAQI作为一家学习型设计事务所,通常在设计的过程中,会分析甚至于拆建一些案例,
不定期分享一些心得。请扫描并关注公众号,更多精彩,与您共享。。。
马上分享WAQI:
微信
QQ空间
新浪微博
上一个
下一个