首页
Home
WAQI做些什么
Services
WAQI的作品
Projects
WAQI是谁
About us
WAQI学院
College
联系WAQI
Contact us
logo
乡野小筑|乡村规划设计
发布于:2020-09-30 15:57 浏览:
建筑物坐拥两地之间,地处两处美景(古罗马教堂和比利牛斯山)之中 、面对两个朝向、横跨两个标高,坐落在坡堤的边缘。
住宅的建造使周边景观更有意境,宛如在溪水从裂缝中喷涌而出,流经斜坡平行交错汇入带有殖民色彩的花园厨房、配水池的起居室和带庭院的卧室,形成纵向的溪流。
项目信息
设计公司:RCR Arquitectes
项目类型:建筑设计、乡村规划设计、景观规划设计
位置:西班牙
▽ 设计构想
▽ 建筑外观
▽ 室内设计
▽ 景观设计
▽ 平面图
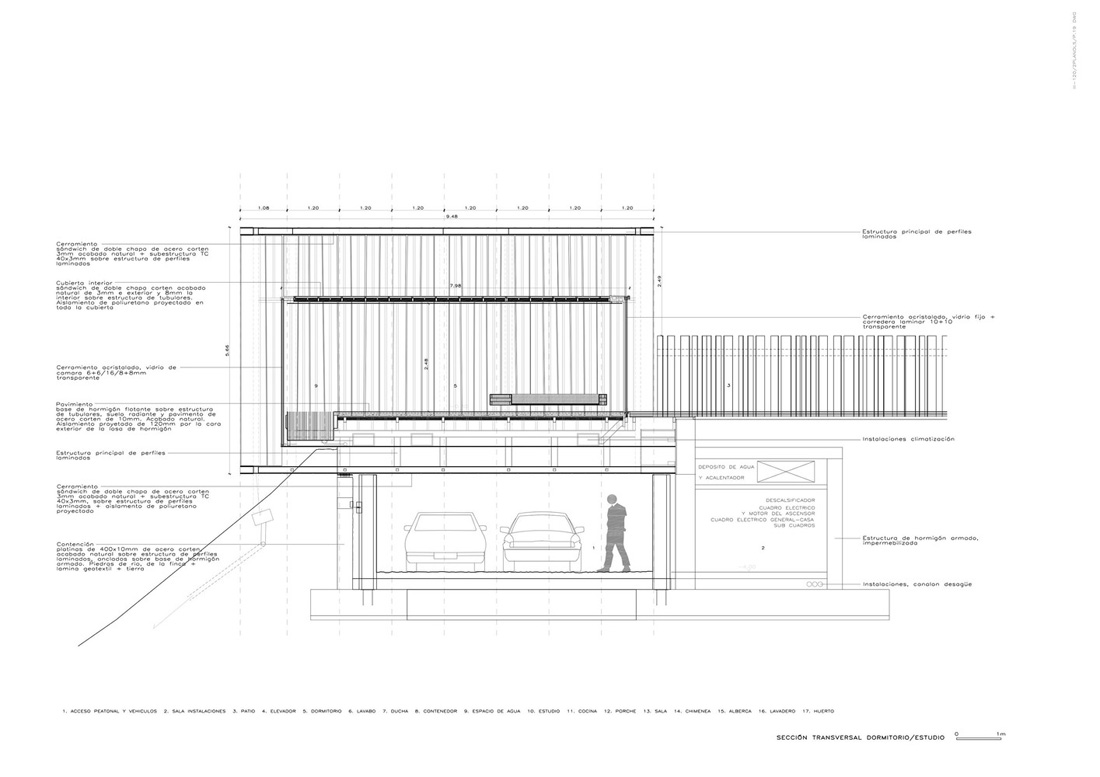
▽ 立面图
编后语:设计师设计的乡间独立住宅,使居住者既能够亲近自然,住宅同时又兼顾独立私密性与社交公共性的完美平衡,整个建筑设计给人一种乡野小筑的感觉。更多关于乡村规划设计、景观规划设计、建筑设计的案例,请点击下面的拓展阅读进行跳转阅读。
来源网站:www.archdaily.com
翻译整理:WAQI
拓展阅读
大凉山沙马普尔彝族人文生态村规划设计
新村湖旅游度假项目景观概念设计
穆家峪桃源度假村概念设计
湄潭大健康旅游小镇
汤沟小镇概念性规划
罗婺文化特色小镇
燕山文化新城概念规划
千灯镇安居小区
设计终究是一个不断学习的过程,WAQI作为一家学习型设计事务所,通常在设计的过程中,会分析甚至于拆建一些案例,
不定期分享一些心得。请扫描并关注公众号,更多精彩,与您共享。。。
马上分享WAQI:
微信
QQ空间
新浪微博
上一个
下一个