首页
Home
WAQI做些什么
Services
WAQI的作品
Projects
WAQI是谁
About us
WAQI学院
College
联系WAQI
Contact us
logo
单身公寓的生态设计|生态建筑
发布于:2020-09-30 16:23 浏览:
这是一个为单身人士创建的公司宿舍项目。每位员工都有自己的爱好和生活方式。设计师将此宿舍作为他们可以在其中建立亲密关系和社区的地方。公寓宿舍位于一个老居民区,设计师将建筑物的大小分为三层,将建筑物的高度降低了六层,以适应周围房屋的大小。
项目信息
设计公司:Takenaka Corporation
项目类型:建筑设计、生态建筑、景观规划设计
位置:日本
▽ 设计构想
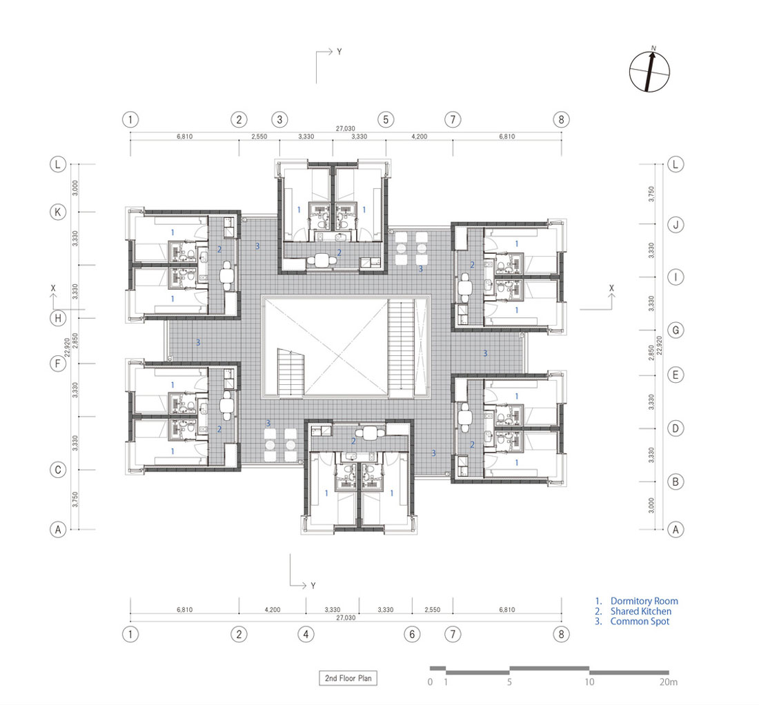
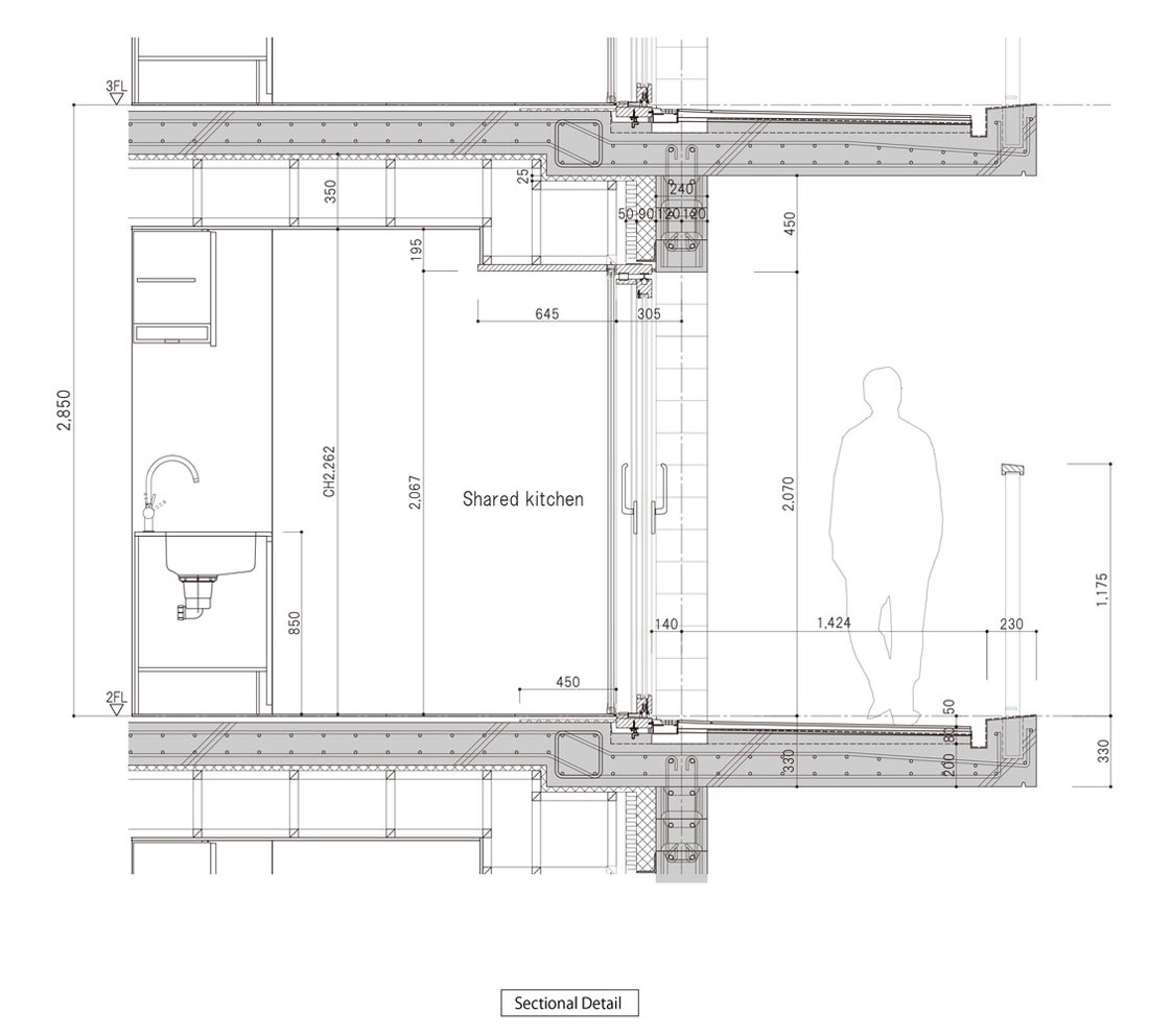
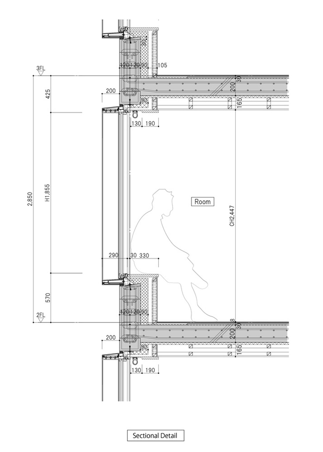
设计师在院子周围布置了建筑物,并在它们之间建立了一个称为“公共点”的开放空间。它将光和风传递到公共空间,并将成为居民第二居室的交流场所。还将单位划分为两个紧凑的私人房间和一个共用厨房,供他们烹饪和用餐。共用厨房可通过大型木质推拉门向公共空间敞开。
他们可以在公共场所与朋友分享在共用厨房里做的菜。共享厨房将与他人建立关系,社区将在宿舍中成长。宿舍有各种空间,从独立的宿舍室到开放的公共空间。
▽ 建筑外观
▽ 室内设计
▽ 景观设计
▽ 平面图
▽ 立面图
编后语:设计师通过设计在公寓宿舍建设的体系结构,让每个居民都会选择一个他们感到舒适并与他人保持各种关系,这不仅仅是一个居住的地方,还是一个居民们可以交流的地方。更多关于生态建筑、生态设计、建筑设计的案例,请点击下面的拓展阅读进行跳转阅读。
来源网站:www.archdaily.com
翻译整理:WAQI
延伸阅读
三亚洲际度假酒店[酒店设计]
“消失”的接待中心|田园综合体设计的另一种可能性
大凉山沙马普尔彝族人文生态村规划设计
怀来农产品展示中心
汤沟小镇概念性规划
设计终究是一个不断学习的过程,WAQI作为一家学习型设计事务所,通常在设计的过程中,会分析甚至于拆建一些案例,
不定期分享一些心得。请扫描并关注公众号,更多精彩,与您共享。。。
马上分享WAQI:
微信
QQ空间
新浪微博
上一个
下一个