首页
Home
WAQI做些什么
Services
WAQI的作品
Projects
WAQI是谁
About us
WAQI学院
College
联系WAQI
Contact us
logo
混凝土结构钢结构的贴合改造|旧房改造
发布于:2020-10-21 17:54 浏览:
一间老旧的酿酒厂被改造成一座住宅。小屋的棚顶已经损坏,设计师照着已有的混凝土结构为基础而展开新的改造设计。
老旧的钢结构之间加入了一件新的钢结构。那混凝土就像一条铅笔画的线一样横在了“新”与“旧”之间。
项目信息
设计公司:Atelier Janda Vanderghote
项目类型:建筑设计、旧楼改造、景观规划设计
位置:比利时
▽ 建筑外观
现有的构件需要和优质的空间产生微妙的交织,还需要牢固可靠的材料连接与原先那粗糙结构的对话。粗糙与精细之间的对比形成了张力,制定了整个空间。
▽ 室内设计
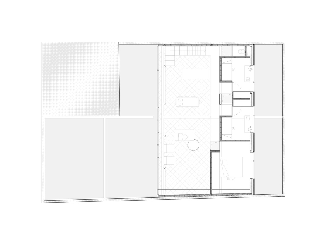
▽ 平面图
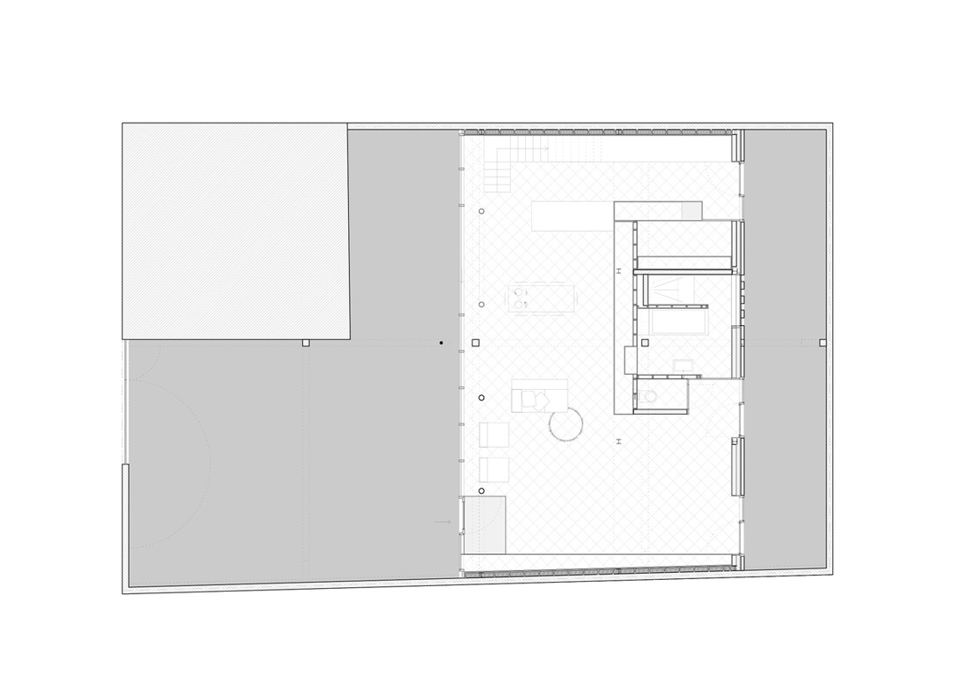
▽ 立面图
编后语:设计师将新的家安置在酿酒厂小屋原有的轮廓内,这使得客厅有了宽阔的户外空间。公共花园的绿地与建筑之间只相隔一块落地玻璃,这也大大的缩短了室内外之间的距离,让住户与自然触手可及。更多关于旧楼改造、旧房改造、建筑设计的案例,请点击下面的拓展阅读进行跳转阅读。
来源网站:www.archdaily.com
翻译整理:WAQI
延伸阅读
中山产业园改造
景逸庭院式精品酒店改造
昆明教场北路旧房改造项目
WAQI建筑改造案例之蓝豹One·AI智慧谷改造项目
故事未了的江湖客栈|绿境景色花园客栈设计
设计终究是一个不断学习的过程,WAQI作为一家学习型设计事务所,通常在设计的过程中,会分析甚至于拆建一些案例,
不定期分享一些心得。请扫描并关注公众号,更多精彩,与您共享。。。
马上分享WAQI:
微信
QQ空间
新浪微博
上一个
下一个