首页
Home
WAQI做些什么
Services
WAQI的作品
Projects
WAQI是谁
About us
WAQI学院
College
联系WAQI
Contact us
logo
不需要重建的分离住宅合并改造|旧房改造
发布于:2020-11-02 18:41 浏览:
该项目位于纽卡斯尔 Cooks Hill 区的帕里街(Parry Street),对原有的联邦风格砖房进行了改造和扩建。改造前,独栋住宅的空间被分为三份,归属于三个独立租户,在被分离的每份空间中,场地独有的优势和可能性难以被感受。改造项目合并了分离的租户空间,使其回归为独户家庭住宅,恢复了住宅的完整性,也为客户带回住宅原有的居住空间品质。
项目信息
设计公司:Curious Practice
项目类型:建筑设计、旧楼改造、景观规划设计
位置:澳大利亚
▽ 设计构想
改造项目没有另外增加占地面积。设计师对于住宅后部的拆除改造,考虑了历史建筑保护和可持续性相关的问题,在原有的挡土墙上方添加了轻盈的木质结构,也重新设计了窗户。
这个南面新的屋顶改造,增加了天花板的高度,并仔细平衡了不同光照条件带来的影响。室外平台的屋顶有露天开口,可以将阳光反射到室内,也能在夏日午后为建筑遮阳。
▽ 建筑外观
▽ 室内设计
▽ 景观设计
屋顶的造型,随着四季变换能带来各种有趣的光影效果。屋顶上的独特开口,还有助于框取风景和引入微风。这个后方临界区域的新设计,加强了房屋与后院的联系,并且使室内室外有更顺畅的过渡衔接。
帕里街的这个改造项目,说明设计可以是一个调整的过程,而不一定需要另外重建。
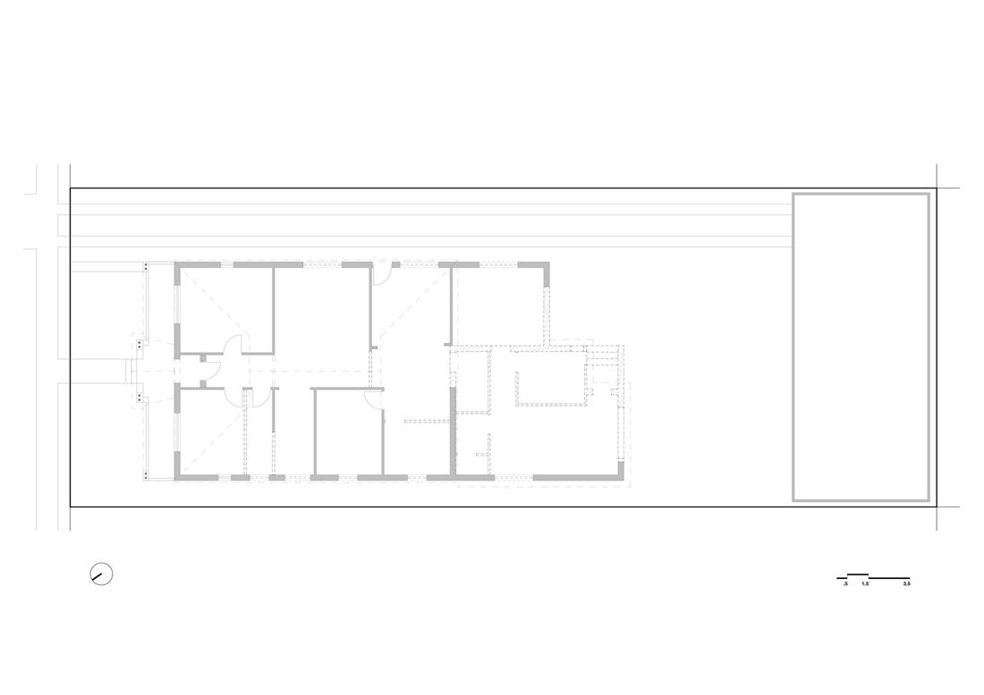
▽ 平面图
编后语:设计师在进行三个独栋住宅合并一个住宅改造时,只对住宅内部进行了微调,改善了空间的布局、和流畅性,让建筑在保留了原来建筑的风格以外,增加了住宅美观性可实用性。更多关于旧楼改造、旧房改造、建筑设计的案例,请点击下面的拓展阅读进行跳转阅读。
来源网站:www.archdaily.com
翻译整理:WAQI
延伸阅读
中山产业园改造
景逸庭院式精品酒店改造
昆明教场北路旧房改造项目
WAQI建筑改造案例之蓝豹One·AI智慧谷改造项目
故事未了的江湖客栈|绿境景色花园客栈设计
设计终究是一个不断学习的过程,WAQI作为一家学习型设计事务所,通常在设计的过程中,会分析甚至于拆建一些案例,
不定期分享一些心得。请扫描并关注公众号,更多精彩,与您共享。。。
马上分享WAQI:
微信
QQ空间
新浪微博
上一个
下一个