首页
Home
WAQI做些什么
Services
WAQI的作品
Projects
WAQI是谁
About us
WAQI学院
College
联系WAQI
Contact us
logo
仓库内的集装箱市场设计|旧房改造
发布于:2020-11-03 16:57 浏览:
MALHA市场的创建是为时尚界提供创新平台,致力于建立一种新的时尚运营方式。创造者、企业家、生产者、供应商和消费者可以在彼此之间建立联系。更具协作性,本地性和独立性,可持续性。
设计师利用现有结构,仓库空间是一个开放式空间并且包含半透明的瓷砖玻璃,这些瓷砖允许自然光进入所有基本组件。
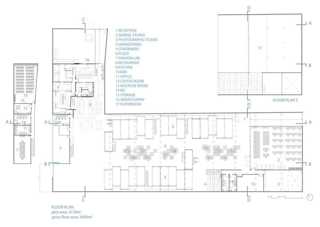
该计划包括为居民提供的小型办公室、摄影工作室、缝纫工作室、陈列室、天然食品餐厅、共用厨房、行政区以及一间多功能室。
项目信息
设计公司:Tavares Duayer Arquitetura
项目类型:建筑设计、旧楼改造、景观规划设计
位置:巴西
▽ 室内设计
设计师的出发点是使用集装箱作为主要的建设性元素并且可以进行快速、干净的建设。设计师在四十二个重新利用的容器之间创建了空的空间,这些空间沿着内墙分布在两个层次上。
一些货盘已经散布在整个空间中,可以用作座位,还设置了小的植物床,再加上沙发,长凳和桌子,营造出一种将房屋氛围与公共空间融为一体的氛围。
▽ 景观设计
▽ 平面图
▽ 立面图
编后语:设计师在进行仓库的改造设计时,不仅仅是对仓库建筑的可持续性的设计,而且还促进建筑内居民的交流,建筑空间也会成为居民学习的重要场所。更多关于旧楼改造、旧房改造、建筑设计的案例,请点击下面的拓展阅读进行跳转阅读。
来源网站:www.archdaily.com
翻译整理:WAQI
延伸阅读
中山产业园改造
景逸庭院式精品酒店改造
昆明教场北路旧房改造项目
WAQI建筑改造案例之蓝豹One·AI智慧谷改造项目
故事未了的江湖客栈|绿境景色花园客栈设计
设计终究是一个不断学习的过程,WAQI作为一家学习型设计事务所,通常在设计的过程中,会分析甚至于拆建一些案例,
不定期分享一些心得。请扫描并关注公众号,更多精彩,与您共享。。。
马上分享WAQI:
微信
QQ空间
新浪微博
上一个
下一个