首页
Home
WAQI做些什么
Services
WAQI的作品
Projects
WAQI是谁
About us
WAQI学院
College
联系WAQI
Contact us
logo
诗一般的田园旅馆生活|旅馆设计
发布于:2020-11-09 16:32 浏览:
该地点位于南蒂罗尔州,在一个田园诗般的云杉林地中,还享有白云岩的美景。该旅馆可通过一条简单的小径进入,该小径作为一条远足小径通向当地称为“Gitschberg”山的高山。冬季滑雪场距离地面不远,可以步行到达。用户与周围的自然环境紧密相连,并享有无数的优势。
设计公司:Architekt Andreas Gruber
项目类型:建筑设计、旅馆设计、景观规划设计
位置:意大利
▽ 建筑外观
设计师为生态旅游概念设计了一个包含三个单元的建筑结构。结构可根据客人的需求量身定制,并让客人在旅馆中感觉自然的美好。扇形创造了私密性,并为客人提供了周围自然的不同景观,其独特的视觉特性同样被赋予了建筑内部。超大的玻璃开孔框框了各个景观,使每个住宅单元都独一无二。
▽ 室内设计
▽ 景观设计
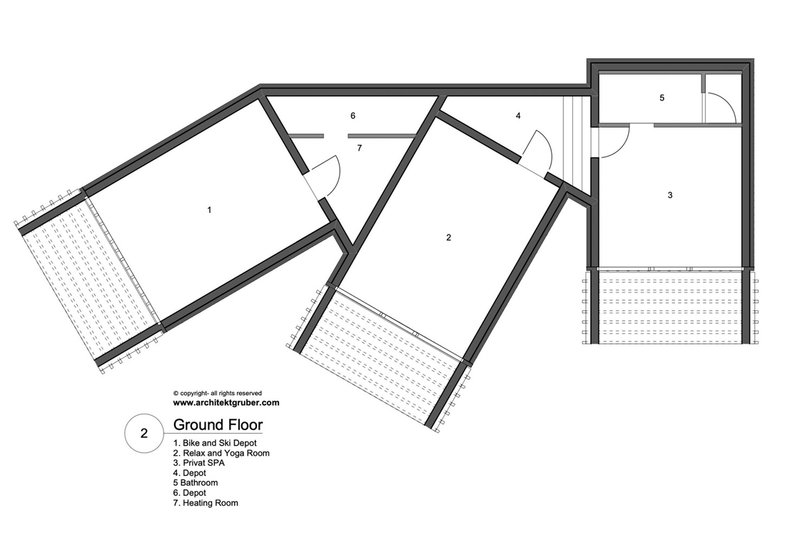
▽ 平面图
▽ 立面图
编后语:设计师在对这个森林旅馆进行设计时,在很大程度上保留自然坡度,对自然尽可能少的干预,让客人在居住时,也能够感受到这种对自然的尊重态度。让客人在身心上都能够敬畏和保护自然。更多关于生态建筑、旅馆设计、建筑设计的案例,请点击下面的拓展阅读进行跳转阅读。
来源网站:www.archdaily.com
翻译整理:WAQI
拓展阅读
故事未了的江湖客栈|绿境景色花园客栈设计
青旅社区---阳朔东院弥香客栈
三亚洲际度假酒店[酒店设计]
景逸庭院式精品酒店改造
设计终究是一个不断学习的过程,WAQI作为一家学习型设计事务所,通常在设计的过程中,会分析甚至于拆建一些案例,
不定期分享一些心得。请扫描并关注公众号,更多精彩,与您共享。。。
马上分享WAQI:
微信
QQ空间
新浪微博
上一个
下一个