首页
Home
WAQI做些什么
Services
WAQI的作品
Projects
WAQI是谁
About us
WAQI学院
College
联系WAQI
Contact us
logo
小家庭式花园住宅|生态设计
发布于:2020-11-09 17:58 浏览:
交互公共空间,椭圆形开孔立面设计,自然光与自然通风,以及周围的绿色环境。花园住宅的核心在于创建一个像是图书馆的公共空间,房子里充满自然光与绿植,人们可以在其中一同工作学习,引发许多互动。房子坐落在越南河内市龙边郡的一个街角,屋主是对年轻夫妇带着两个小孩。
项目信息
设计公司:NH Village Architects
项目类型:建筑设计、生态建筑、景观规划设计
位置:越南
▽ 设计构想
“小家庭”的模式极为常见,他们需要可以在家工作并同时照看孩子的空间。屋子有三层楼,公共空间位于二楼。二楼房间和走廊的门经过设计后可以在相邻间打开互通,这样一来就在这层楼形成了环形流线,让人们可以轻易的四处游走。
▽ 建筑外观
▽ 室内设计
家具和书柜沿着环形流线摆放,在屋子里就像座小图书馆一样,人们可以选择在哪儿学习、工作、或是翻阅喜欢的书籍。家长在桌前工作的同时也可以照顾孩子。通过在二楼留出空口并在上房置入圆形天窗,整座建筑便布满了自然光与来自周围的绿意。3层楼都被空口连接了起来,促进屋内的交流互动。餐厅位于一楼,自然光可以通过空口从天窗照下。
二楼和三楼的卧室朝着绿意盎然的阳台和屋顶花园,所以空间中总是充满新鲜空气。屋主享受照料屋顶的花园,那里也有助于保护房子不受阳光直射。建筑外立面设计了许多椭圆形的洞口,让自然光进入的同时保持了屋子的安全性。傍晚从屋子里发出的亮光和阳台还有天台花园上探出的绿植使得街角更加温暖、生动。
▽ 景观设计
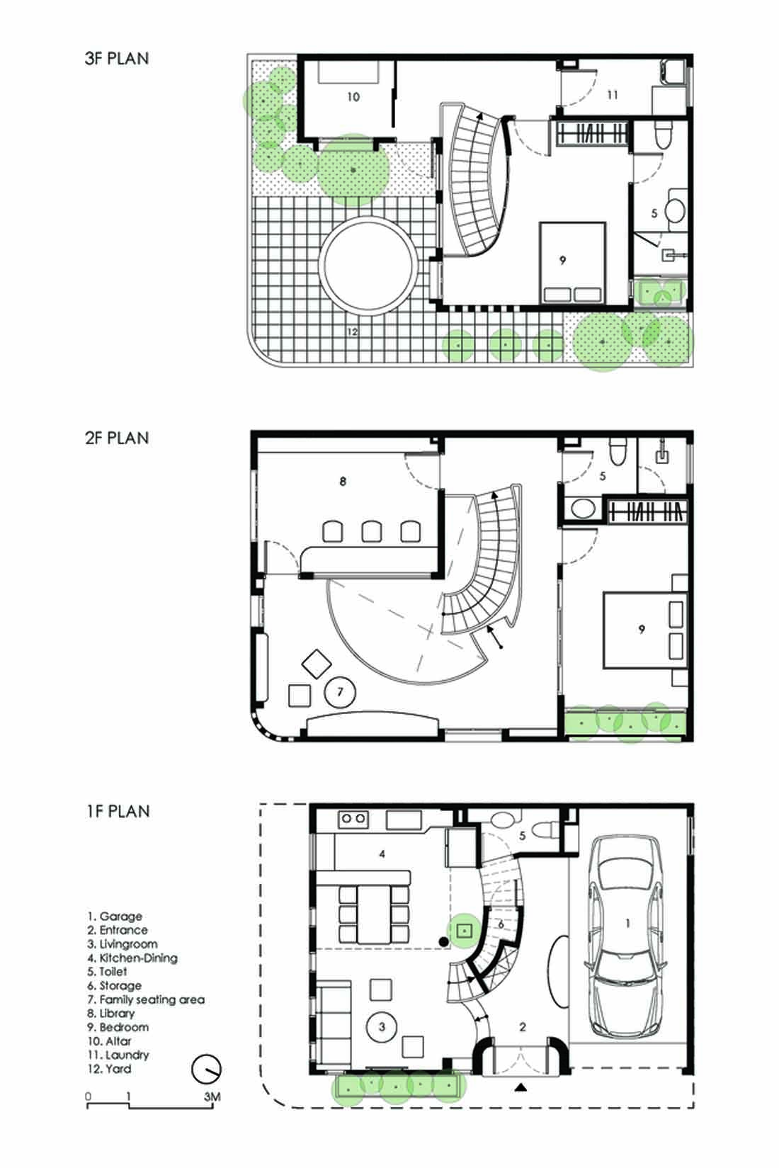
▽ 平面图
▽ 立面图
编后语:设计师根据客户的要求,将生活与工作的空间结合起来,将小家庭模式的花园住宅展现地淋漓尽致,设计师将巧妙的设计用于天花板上,透明的镂空天花板将更多的光线引进住宅,住宅更加地生动、光亮。更多关于生态建筑、生态设计、建筑设计的案例,请点击下面的拓展阅读进行跳转阅读。
来源网站:www.archdaily.com
翻译整理:WAQI
延伸阅读
三亚洲际度假酒店[酒店设计]
“消失”的接待中心|田园综合体设计的另一种可能性
大凉山沙马普尔彝族人文生态村规划设计
怀来农产品展示中心
汤沟小镇概念性规划
设计终究是一个不断学习的过程,WAQI作为一家学习型设计事务所,通常在设计的过程中,会分析甚至于拆建一些案例,
不定期分享一些心得。请扫描并关注公众号,更多精彩,与您共享。。。
马上分享WAQI:
微信
QQ空间
新浪微博
上一个
下一个