首页
Home
WAQI做些什么
Services
WAQI的作品
Projects
WAQI是谁
About us
WAQI学院
College
联系WAQI
Contact us
logo
集装箱创意改造办公室|旧房改造
发布于:2020-11-10 16:45 浏览:
Spectris创新中心靠近波尔图机场,地铁和高速公路的优越地理位置,这套面积约650平方米,其特点是在矩形容积仓库中进行配置,并具有中殿。办公室部门是垂直的,位于旧办公室(北)的02层中,并通往约500平方米(南)的后院露台
项目信息
设计公司:Studium
项目类型:建筑设计、旧楼改造、景观规划设计
位置:葡萄牙
▽ 设计构想
会议空间按比例缩放并占用现有空间:从礼堂开始,作为礼堂的不同空间的生成元素,这些空间与密闭和结构容器相结合,并作为由这些初步支持点支持的高层团队增长的结构要素。
饭厅在后院空间中的摆放恰好暗示了冥想和沉思的时刻,无论是集体还是个人的参与,外部空间都是合适的,我们可以在其中自由呼吸。与健身房和游戏室的连接证明了现代办公空间中可持续性的舒适感和舒适感,以及每个工作站的个性化条件。
▽ 建筑外观
▽ 室内设计
▽ 细节设计
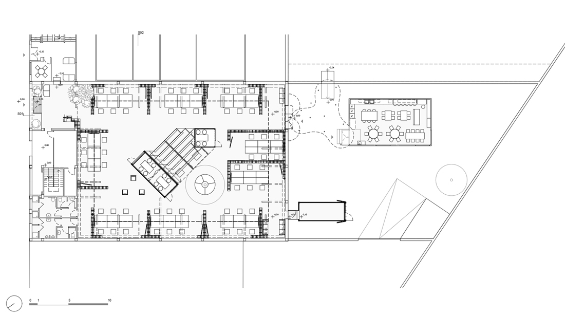
▽ 平面图
▽ 立面图
编后语:设计师在一个仓库空间,置放集装箱设施,让整个空间顿时变得有趣起来,室内也不再是沉闷的设计元素,用集装箱元素代替了混凝土隔墙,也让仓库的办公室室内空间有更多的选择。更多关于旧楼改造、旧房改造、建筑设计的案例,请点击下面的拓展阅读进行跳转阅读。
来源网站:www.archdaily.com
翻译整理:WAQI
延伸阅读
中山产业园改造
景逸庭院式精品酒店改造
昆明教场北路旧房改造项目
WAQI建筑改造案例之蓝豹One·AI智慧谷改造项目
故事未了的江湖客栈|绿境景色花园客栈设计
设计终究是一个不断学习的过程,WAQI作为一家学习型设计事务所,通常在设计的过程中,会分析甚至于拆建一些案例,
不定期分享一些心得。请扫描并关注公众号,更多精彩,与您共享。。。
马上分享WAQI:
微信
QQ空间
新浪微博
上一个
下一个