首页
Home
WAQI做些什么
Services
WAQI的作品
Projects
WAQI是谁
About us
WAQI学院
College
联系WAQI
Contact us
logo
西方文化与日本百年町屋的碰撞|建筑改造设计
发布于:2020-11-18 16:26 浏览:
百年町家老屋为两层楼,是标准的町家木造结构,此次店铺打造依然启用日本蓝瓶的御用空间设计师——長坂常。長坂常将富有京都风情的空间融入Blue bottle的独有个性之中,保留了町屋的原有特色,并新增落地窗,最大限度的采用自然光,打造一个具有开放感的的体验空间。Blue bottle京都由四个主题空间组成,分别为Shop Space,感受四季变化的中庭,发现喜欢咖啡的空间,CaféSpace,店内外座位共有44席。
项目信息
设计公司:Jo Nagasaka / Schemata Architects
项目类型:建筑设计、建筑改造、景观设计
位置:日本,京都
▼町屋临街面
▼町屋前院
▼通往咖啡店的走廊
▼庭院
▼咖啡店外观
▼庭院中的半开放座位
建筑原有的地板高出地面50厘米,是日本传统建筑的特色。改造中地板被拆除,以地面为建筑新的地平。为了在视觉上将室外的鹅卵石地面延伸至室内,建筑室内采用了有同种鹅卵石花纹的水磨石地面。遵循与其他店铺相同的理念及来此日本与美国的文化背景,京都咖啡店柜台内的地板与顾客用餐区持平,以此保证员工与顾客拥有相同高度的视线。水磨石板不仅被用作地板,还在某些区域凸起成为柜台及长凳。
▼咖啡店室内概览
▼一层室内
▼水磨石咖啡吧台
连续的白色地板上减少放置一切不必要的设施,并且清除了建筑结构上多余的装饰,以展现建筑原有的屋顶结构及黏土墙。这间最初由两座独立建筑组成100年老宅如今被改造成若干大小变化的空间,但人们仍能从中看到岁月的痕迹。
▼清除修饰的建筑结构
▼裸露的屋顶结构
▼用餐区,充满岁月痕迹的黏土墙
▼黏土墙细节
这间町屋(machiya)原有的两栋建筑被分别翻新为咖啡厅及商业建筑(MD Building)。建筑二层空间用作办公室,空间内不必要的墙壁全部被拆除并安装上玻璃,以保持上下层之间的视觉联系。
▼零售区
▼内庭院
▼夜晚的咖啡厅
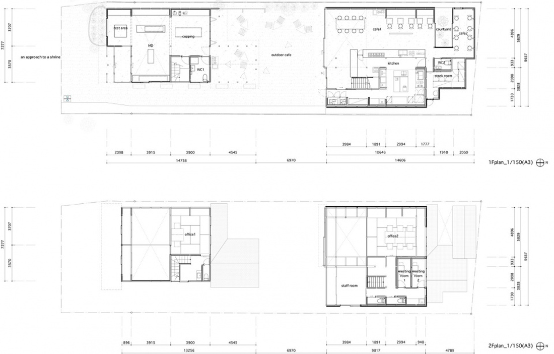
▼平面
▼剖面
编后语:该项目将来自美国西海岸文化的蓝瓶咖啡店融入到位于京都南禅寺附近的传统联排住宅当中。与此同时,设计师专注于延续其他蓝瓶咖啡店的设计理念,即在空间中“创造出平等的关系”。更多关于
精品酒店设计
、旧房改造设计、建筑设计的案例,请点击下面的拓展阅读进行跳转阅读。
来源网站:www.gooood.cn
翻译整理:WAQI
延伸阅读
中山产业园改造
景逸庭院式精品酒店改造
昆明教场北路旧房改造项目
WAQI建筑改造案例之蓝豹One·AI智慧谷改造项目
故事未了的江湖客栈|绿境景色花园客栈设计
设计终究是一个不断学习的过程,WAQI作为一家学习型设计事务所,通常在设计的过程中,会分析甚至于拆建一些案例,
不定期分享一些心得。请扫描并关注公众号,更多精彩,与您共享。。。
马上分享WAQI:
微信
QQ空间
新浪微博
上一个
下一个