沼地小屋|度假酒店设计
发布于:2020-11-26 18:08  浏览:

这套豪华的度假酒店位于特兰西瓦尼亚山区的一个村庄中,这些村庄的家庭沿着山谷的道路散布在温和的山丘上。主体建筑为水平分布的地形,部分被倾斜的绿色屋顶和矿物石笼墙覆盖物所掩盖。
 
两种传统的谷仓状结构突出了建筑。所需的内部区域令人印象深刻,尤其是与附近的普通传统家庭相比。设计师选择了形状和材料以将膨胀的建筑融合到特殊的风景中。
 
 
 
 
项目信息
设计公司:BLIPSZ
项目类型:建筑设计、民宿设计、景观规划设计
位置:罗马尼亚
 
 
 
 
▽ 设计构想

 
 
该建筑主要采用天然建筑材料建造,遵循的是可持续的原则,达到了自主(离网)被动房屋标准。
 
底层地板和建筑物末端的大型土方结构均由混凝土制成,房屋结构由大型软木框架构成,并填充有本地模制的粘土砖。平屋顶位于层压木梁上,并覆盖有当地的草木,而倾斜的屋顶则带有木瓦。
 
其他一些使用的材料:无甲醛的OSB 4板,中密度纤维板,稻草,纤维素和纤维木隔热材料,石灰基室内装修和浴室天然防水装修。木屋的热质量由抛光的厚混凝土地板和粘土砖墙填充物构成(也在第一层)。
 
在房屋的外部,房屋的大部分区域没有屋顶悬垂物,因此压实的草捆被多层粘土抹灰覆盖,石笼壁上的石材被保护皮覆盖。较高的楼层有一个黑色松木板壁板和屋顶覆盖物。
 
▽ 建筑外观

 
 
 
 
 
 
得益于储能装置,位于南面球场的光伏板可满足建筑物约90%的能源需求。在寒冷和阴天时,房屋几乎是独立的,只有安全备用电网连接。地板采暖和生活热水由土壤/水热泵运行。用于自动灌溉的雨水被收集到一个隐藏在土层中的大水箱中。该项目的挑战是尝试多种替代技术和材料,以无缝集成客户要求的传统和高科技元素以及可持续的绿色解决方案。
 
▽ 室内设计

 
 
 
 
 
 
 
 
 
 
 
 
 
▽ 景观设计

 
 
 
 
 
 
 
 
 
 
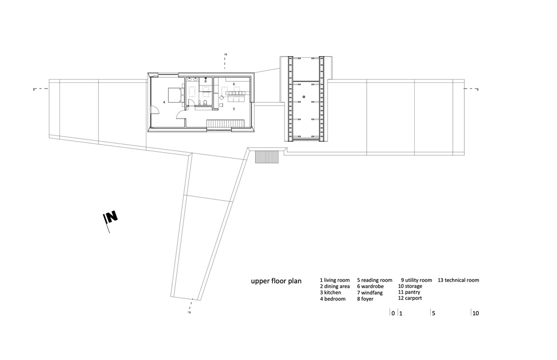
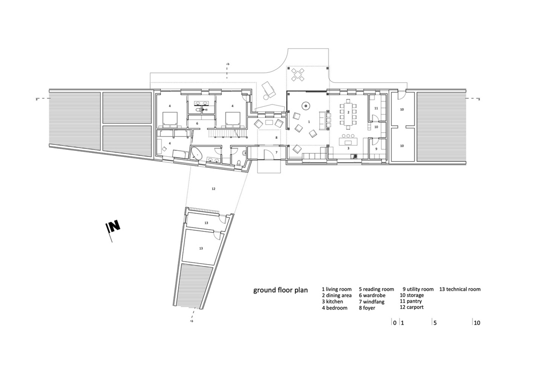
▽ 平面图

 
 
 
▽ 立面图

 
 
 
 
 
 
 
 
 
 
 
编后语:旅馆小屋坐落在河边,融于自然环境的外表以及生态环保的室内设计,让这座小屋添加了几分自然的神秘色彩,让到访的客人能够在度假的空隙,汲取到自然的能量,让生态自然渗透到日常中。更多关于度假酒店设计、精品酒店设计、建筑设计的案例,请点击下面的拓展阅读进行跳转阅读。
 
 
 
来源网站:www.archdaily.com
翻译整理:WAQI







拓展阅读

故事未了的江湖客栈|绿境景色花园客栈设计
青旅社区---阳朔东院弥香客栈
三亚洲际度假酒店[酒店设计]
景逸庭院式精品酒店改造
设计终究是一个不断学习的过程,WAQI作为一家学习型设计事务所,通常在设计的过程中,会分析甚至于拆建一些案例,
不定期分享一些心得。请扫描并关注公众号,更多精彩,与您共享。。。