低成本的乡村住宅改造|旧房改造
发布于:2020-11-26 17:59  浏览:

从外面看,这个房子就像巴斯克地区的任何农舍一样,是一栋庞大而朴实的建筑。“当我们第一次打开它的大门时,我们期望遇到通常称为’Ezkatz’的阴暗潮湿的中央空间。屋顶塌陷并拉扯着上层使房屋变成了一片树林,其主要的房间已成为一片空地。”客户这么说着。
 
这个住宅在许多方面代表了客户对空间,景观,生活方式和自由感的追求。此外,它强调了优先考虑的是现有的,免费的和尚未出现的。此外,与我们看到的许多单一目的和理念的建筑不同,这是一个充满创意的项目!
 
 
 
 
项目信息
设计公司:Collectif Encore
项目类型:建筑设计、旧楼改造、景观规划设计
位置:法国
 
 
 
 
▽ 改造前

 
 
 
 
 
设计师保留了屋顶的开口,并将门变成了安装在立面上的滑动式窗户,因此打开后,门便“消失”了。 与许多打算在每个项目中重现日落的建筑师不同,设计师相信将日光引入到建筑中就足够了。这样一来,房子会每时、每天、每季都在不断变化。
 
客户想要的东西是免费的:生态服务。冬季,太阳直接加热70厘米厚的石墙,空气/水热泵将地板加热。墙壁将房子变成火炉。由于没有CMV系统(我们中有些人已经忘记了空气可以自然流通而不借助任何发动机或电力),因此,未绝缘的墙壁的惯性使房屋能够完全安静地呼吸。
 
▽ 建筑外观

 
 
 
当设计师开始该项目时,需要解决客户的主要问题之一是:“如何以每平方米500欧元的价格翻新700平方米的农场?”
 
首要规则:尽可能少改动,创造50%的室外空间。于是,设计师构思了一种可以在整个房屋内创建不同的微气候的生物气候设计。
 
南部露台内部和外部之间的庇护,无风,双高度缓冲空间。冬季太阳低,阳光射入使空间变暖;而夏季时,太阳升高,屋顶保护我们免受炙烤,植被提供了自然的新鲜感。
 
屋顶开口使楼上的卧室可以欣赏比利牛斯( Pyrénées )山脉的景致,并可以使植物得到自然的浇灌,同时也为一楼的卧室创造了可以观山景的优势。
 
▽ 室内设计

 
 
 
 
 
 
 
 
 
 
 
 
 
 
 
 
 

谷仓位于房子的后面,原来的谷仓被留作技术和工作空间,因此它既没有绝缘也没有加热。西部露台在谷仓上方,旧干草棚是用煤渣砌成的,因此非常容易地拆卸下来。设计师做成了一个80平方米的露台,成为观赏日落的最佳地点。
 
设计师需要在设计中考虑一个家庭成员需要乘坐轮椅的事。但是,并没有安装电梯,而是寻求了一种经济却可行的木制坡道解决方案。
 
▽ 景观设计

 
 
 
 
 
 
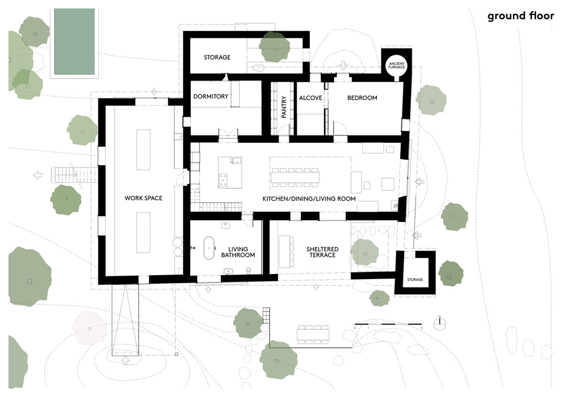
▽ 平面图

 
 
 
▽ 立面图

 
 
 
 
编后语:只有当景观和居民成为房屋的一部分时,房屋才能像生物一样活着,在这里,它不是一次被发明,而是让其居民(人类,昆虫,树木,鸟类,花朵等)每天发明它。住房是幸福的房屋,因为它能够分享幸福——这就是建筑使生活比建筑本身更美好的方式。更多关于旧楼改造、旧房改造、建筑设计的案例,请点击下面的拓展阅读进行跳转阅读。
 
 
 
来源网站:www.archdaily.com
翻译整理:WAQI





延伸阅读
中山产业园改造
景逸庭院式精品酒店改造
昆明教场北路旧房改造项目
WAQI建筑改造案例之蓝豹One·AI智慧谷改造项目
故事未了的江湖客栈|绿境景色花园客栈设计


设计终究是一个不断学习的过程,WAQI作为一家学习型设计事务所,通常在设计的过程中,会分析甚至于拆建一些案例,
不定期分享一些心得。请扫描并关注公众号,更多精彩,与您共享。。。