首页
Home
WAQI做些什么
Services
WAQI的作品
Projects
WAQI是谁
About us
WAQI学院
College
联系WAQI
Contact us
logo
谷仓改造而成的农村住宅|旧房改造
发布于:2020-11-27 18:01 浏览:
建筑朝向西北,而起居空间和庭院朝向东北。新开的门和玻璃开窗的大部分都在东北立面上,使得光线和热量可以渗透到起居空间中。400mm厚的保温墙由砂岩和空心砖构成,无论夏季还是冬季都能起到保温的作用。 坚固的可操作通风板和夹层的天窗形成了夏季被动的空气流通,冬季小的木材火炉起到加热作用。
项目信息
设计公司:Cumulus Studio
项目类型:建筑设计、旧楼改造、景观规划设计
位置:澳大利亚
▽ 设计构想
原始的谷仓是用砂岩和转建成,室内外表面都用石灰抹灰。将砖和石混合的做法表明,建筑在当时是使用当地现成的材料建造而成的。地面使用红砖,隔墙使用钢加固的木板,屋顶是木瓦覆盖的木结构(只在室内可以看到)。
设计师加入了塔斯马尼亚橡木制成的漂浮的木地板,新的镀锌波状钢屋顶,并为原来的窗加上了玻璃。在室内,设计师将石膏墙的数量降到最低(总共只有3面墙),转而选择了塔斯马尼亚橡木板和浴室的瓷砖。空间由木隔断而不是墙;我们使用了塔斯马尼亚橡木板,厨房的瓷砖以及夹层卧室的白色隔断。
▽ 建筑外观
▽ 室内设计
▽ 景观设计
加热和降温策略实际上非常低技化。夏季,厚厚的砂岩墙可以阻挡热量,较深的开窗可以防止烈日,夜晚通过打开天窗和通风板净化室内空气。夏季,庭院灯的落叶悬铃树为建筑提供了阴凉,冬天则可以让光线通过。
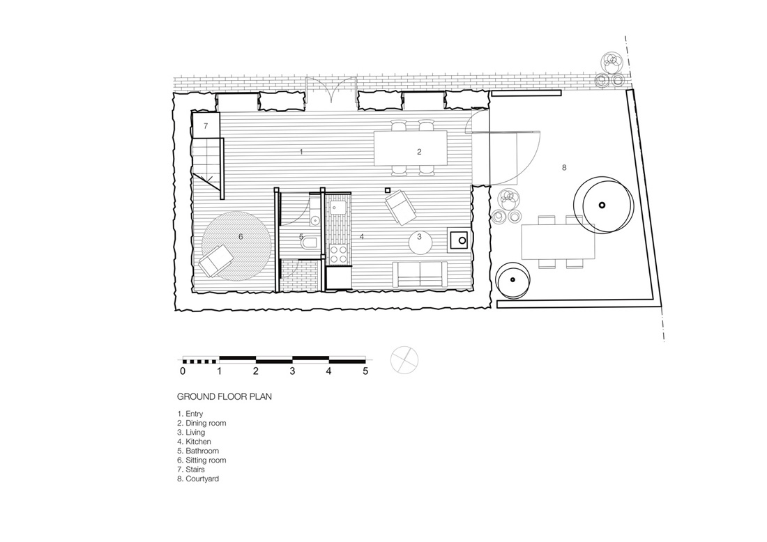
▽ 平面图
▽ 立面图
编后语:在谷仓完成它的建筑使命之后,设计师将其转变成一间可供居住的生态农村住宅,将谷仓建筑的外观与骨架保留下来,细致地设计和区分区域,让住宅变得更加地舒适,同时也省下了一大笔的费用。更多关于旧楼改造、旧房改造、建筑设计的案例,请点击下面的拓展阅读进行跳转阅读。
来源网站:www.archdaily.com
翻译整理:WAQI
延伸阅读
中山产业园改造
景逸庭院式精品酒店改造
昆明教场北路旧房改造项目
WAQI建筑改造案例之蓝豹One·AI智慧谷改造项目
故事未了的江湖客栈|绿境景色花园客栈设计
设计终究是一个不断学习的过程,WAQI作为一家学习型设计事务所,通常在设计的过程中,会分析甚至于拆建一些案例,
不定期分享一些心得。请扫描并关注公众号,更多精彩,与您共享。。。
马上分享WAQI:
微信
QQ空间
新浪微博
上一个
下一个