首页
Home
WAQI做些什么
Services
WAQI的作品
Projects
WAQI是谁
About us
WAQI学院
College
联系WAQI
Contact us
logo
钢铁旧建筑的现代化设计|旧房改造
发布于:2020-11-30 16:36 浏览:
如今,比利时城市面临的典型挑战是,在不影响所有经济或制造业活动的情况下,使其19世纪和20世纪初的城市结构更加宜居和可持续。这些地区多数以工业和住房,高土地占用,开放空间硬化和土壤污染为特征。
如今,大多数行业已远离这些地区,随着时间的流逝,基础设施已分配给小型私人所有者,tmSN房子以一种根本的方式这样做。
项目信息
设计公司:BLAF Architecten
项目类型:建筑设计、旧楼改造、景观规划设计
位置:比利时
▽ 建筑外观
像蜗牛壳一样,新的木构架结构被安装在这些树桩中,从而为房屋提供了内部空间。科斯科和木结构房屋之间的中间空间在内部和外部之间建立了新的关系,有助于在地块上组织程序,并使科斯科的原砖从内部可见。
创建的开放空间用于水管理和绿化。它们有助于抵抗城市高温压力并增加生物多样性。
▽ 室内设计
▽ 景观设计
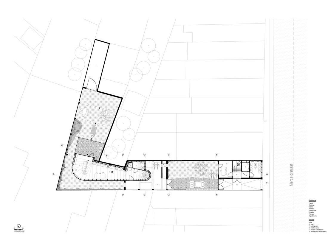
▽ 平面图
▽ 立面图
编后语:设计师在进行场地勘察后,合并了旧建筑里最有价值的部分,使它们的空间利用变得更有效,场地变得更加地宽阔,一栋宜居的旧建筑改造,就变得更有风味了。更多关于旧楼改造、旧房改造、建筑设计的案例,请点击下面的拓展阅读进行跳转阅读。
来源网站:www.archdaily.com
翻译整理:WAQI
延伸阅读
中山产业园改造
景逸庭院式精品酒店改造
昆明教场北路旧房改造项目
WAQI建筑改造案例之蓝豹One·AI智慧谷改造项目
故事未了的江湖客栈|绿境景色花园客栈设计
设计终究是一个不断学习的过程,WAQI作为一家学习型设计事务所,通常在设计的过程中,会分析甚至于拆建一些案例,
不定期分享一些心得。请扫描并关注公众号,更多精彩,与您共享。。。
马上分享WAQI:
微信
QQ空间
新浪微博
上一个
下一个