首页
Home
WAQI做些什么
Services
WAQI的作品
Projects
WAQI是谁
About us
WAQI学院
College
联系WAQI
Contact us
logo
砖与木材讲述百年村落的故事|精品酒店设计
发布于:2020-12-01 11:25 浏览:
大利村是在贵州黔东南地区一个有着600年历史的侗寨,它基本上保持了传统文化的原样。古老的木制建筑、河流和井,以及梯田,都反映了旧生活方式的和谐。”井上民宿” 是由 ATLAS 工作室设计的一家全新精品酒店,旨在将自身定位在村庄的简单而简朴的生活方式中。项目的挑战在于找到方法,更新传统的建筑方法与当代设施和演变的设计,同时不失去大利村传统根源的完整性。
项目信息
设计公司:ATLAS
项目类型:建筑设计,
精品酒店设计
位置:贵州
井上民宿座落在村子中很显眼的半山腰上、一座古井的正上方,面向村落的中心-鼓楼坪,拥有非常辽阔的视野,同时三层楼的量体也对整体村落风貌有一定程度的影响力,因此这次的增改建中,设计师谨慎地在传统民居与新的旅社机能当中取得平衡,在保有室内良好视野的同时,也维持立面上村落原有的构造节奏。
▼建筑外观
▼沿着碎石路到达建筑
▼从入口进入公共空间
在贵州黔东南地区,传统的木结构建筑已基本得到保护,现代性仍然设法通过各种方式悄悄进入。其中最常见的是使用混凝土地基。首层水泥框架结构上再搭建传统穿斗木构造是很常见的当代折衷形式,井上民宿这个改造项目也不例外,设计师面临的关键挑战是找到一种新的建筑语言,可以更好地融合传统木结构与下面更现代的混凝土框架之间的差异,在梁柱之间寻找传统与现代结合的可能性。
▼丰富的传统元素
▼从公共空间看向窗外
面对物理环境,传统西南民居透过架高的竿栏与火塘、烟熏等方法去除冬日的湿冷体感,设计师进一步尝试透过现代的方式将原有的单层拼板墙改造成具隔音防振与保温隔热等现代需求的多层墙体,并透过立面上外凸的飘窗与风板来捕捉平行于山脉的谷风,营造被动式通风,有助于夏季室内外的空气对流,缓解室内的闷热感。
材料上,除了大量使用杉木之外,建筑师也大胆尝试了当地带有烧结黑斑的红砖作为民宿一层空间的主要饰面材料,透过细心的安排,这个常见于猪舍墙体的砖材尽可能的展显出了材料的本质与秩序,打造出属于大利村的公共空间氛围。
▼开敞通风的卧室空间
▼浴室与卫生间
▼细部
▼夜景
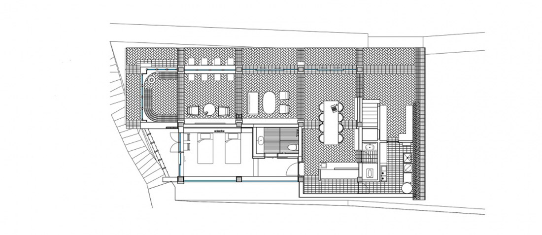
▼首层平面图
▼立面图
▼剖面图
编后语:期待井上民宿能够成为村内民宿的典范之一,藉由村民集体的环境意识,让大利村朝着可持续发展的旅游模式前进。井上民宿将成为一座通往未来的桥梁,带动旅游业,带来改变,将旧与现代、传统与现代融合在一起。 并在村里形成集体环保意识,植根于美学和物质文化,使大利村找到一条尊重和重视过去的前进道路。更多关于精品酒店设计、景观规划设计、建筑设计的案例,请点击下面的拓展阅读进行跳转阅读。
来源网站:www.gooood.cn
翻译整理:WAQI
拓展阅读
故事未了的江湖客栈|绿境景色花园客栈设计
青旅社区---阳朔东院弥香客栈
三亚洲际度假酒店[酒店设计]
景逸庭院式精品酒店改造
设计终究是一个不断学习的过程,WAQI作为一家学习型设计事务所,通常在设计的过程中,会分析甚至于拆建一些案例,
不定期分享一些心得。请扫描并关注公众号,更多精彩,与您共享。。。
马上分享WAQI:
微信
QQ空间
新浪微博
上一个
下一个