首页
Home
WAQI做些什么
Services
WAQI的作品
Projects
WAQI是谁
About us
WAQI学院
College
联系WAQI
Contact us
logo
苹果农场的住宅|农场设计
发布于:2021-01-08 19:31 浏览:
Rossum村成立于893年。位于荷兰中部马斯河和瓦尔河之间的河脊上,该地区以水和肥沃的土壤为特征,形成了一个丰富的水果种植区。苹果农场等水果农场的类型是起源于此的典型建筑风格。
农场住宅建于1862年的苹果农场的左半部分。大楼正面有一座庄严的豪宅。针对它建立了一个更适度的存储和稳定区域。该建筑物处于受保护状态,非常过时且尘土飞扬的内部空间正得到解决。
项目信息
设计公司:HILBERINKBOSCH Architecten
项目类型:建筑设计、生态农场、景观规划设计
位置:荷兰
▽ 建筑外观
由于高窗户的存在,某些地方的气氛明亮而友好。最大限度地利用这种气氛是设计的起点,该设计可通过空隙和宽大的玻璃前面板以通风过渡的方式最佳地引导日光及其周围。
大型楼梯元件和独立式卡式盒元件的定制为房间增添了现代感和动感。为了产生更多的光线并优化路线,后立面的砖砌开口被打开并装有玻璃前面板。立面上存在的元素是设计的基础。建筑物历史的痕迹成为新层的一部分。
▽ 室内设计
▽ 景观设计
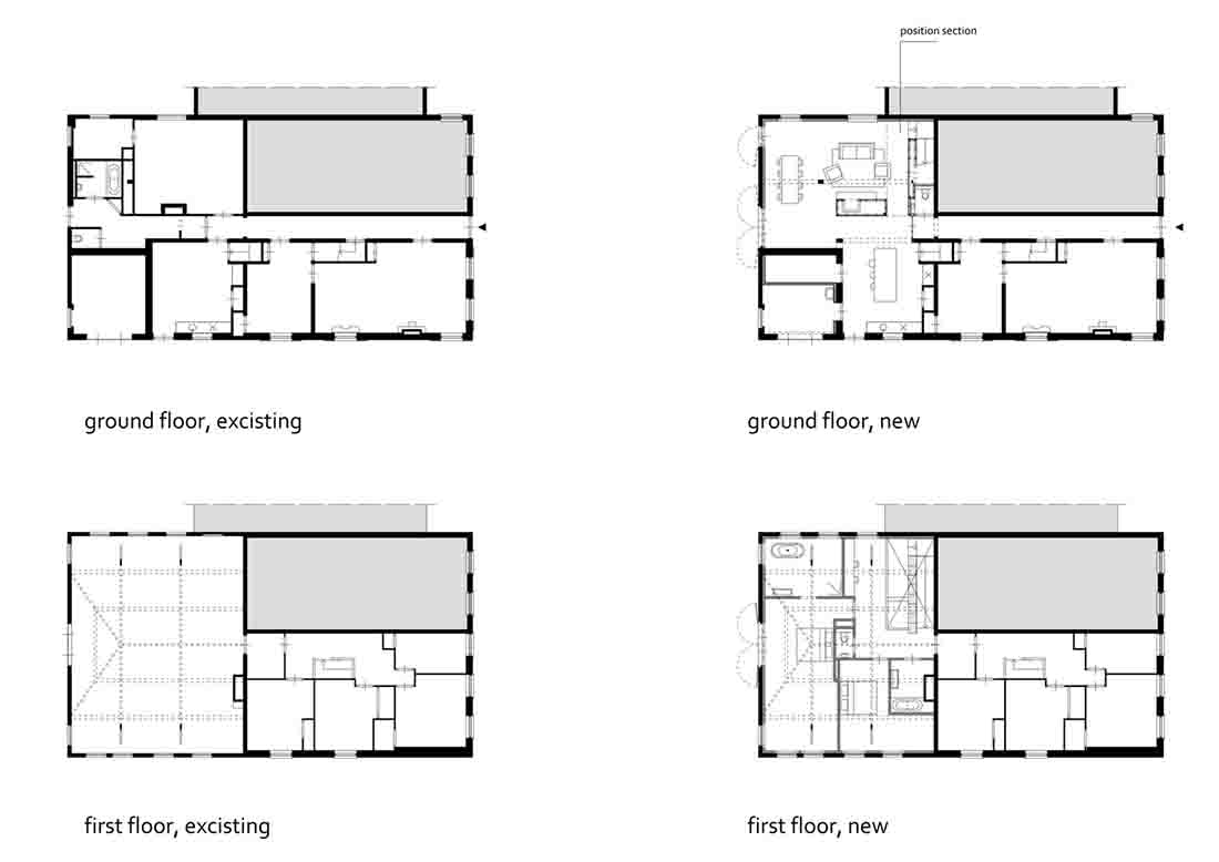
▽ 平面图
▽ 立面图
编后语:设计师在农场建筑的左侧的新立面保留建筑历史。将新砌好的门再次打开。让日光通过阁楼地板上的玻璃栏杆,以最佳方式进入室内,让室内明亮且充满厚重的历史感。更多关于旧楼改造、农场设计、建筑设计的案例,请点击下面的拓展阅读进行跳转阅读。
来源网站:www.archdaily.com
翻译整理:WAQI
设计终究是一个不断学习的过程,WAQI作为一家学习型设计事务所,通常在设计的过程中,会分析甚至于拆建一些案例,
不定期分享一些心得。请扫描并关注公众号,更多精彩,与您共享。。。
马上分享WAQI:
微信
QQ空间
新浪微博
上一个
下一个