首页
Home
WAQI做些什么
Services
WAQI的作品
Projects
WAQI是谁
About us
WAQI学院
College
联系WAQI
Contact us
logo
瑕疵美的建筑设计|生态建筑
发布于:2021-01-08 19:41 浏览:
这个生态建筑设计描述了一种基于瑕疵之美的审美观。办公室位于Colonia Tabacalera的心脏地带,其建筑的历史可以追溯到现代主义运动在墨西哥的到来。它强调了那些不完善之处,这些不足之处告诉我们与过去居住在该空间中的用户相对应的故事。
项目信息
设计公司:Wakasabi
项目类型:建筑设计、生态建筑、景观规划设计
位置:墨西哥
▽ 室内设计
设计师相信,每一个污渍,墙壁或物体上的每个裂缝都会形成一个时间轴,在这里,人们居住和离开那个地方的每一代人都可以看到足迹的痕迹。因此,设计师将工作区定义为画布的准备;一个地方,每一代都有油漆,地板和涂料层;这是关于移除而不是放置,重新发现墙壁以留下裸露的材料,并且,当窗户上俯瞰城市最有代表性的大街之一的光线进入时,它可以突出显示不同颜色的不完美和混合浮雕和纹理。另一方面,添加的元素遵循相同的思路,即看起来和看起来尽可能自然,以构成并补充我们自己的画布;裸露的树林,纹理混凝土和粘土格子。
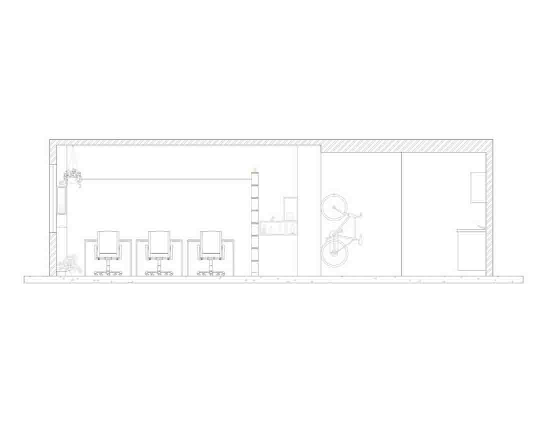
▽ 平面图
▽ 立面图
编后语:在这个生态设计中,设计师突出了物体上的宝贵铜绿,在其中建筑、设计上暗示了在时间造成的缺陷中的完美之处,在墙壁上形成并代表不同世代的时间层。让住户能够在建筑里体验不同的时间层面,以及各种时间层面融合一起的瑕疵美。更多关于生态设计、生态建筑、旧房改造、建筑设计的案例,请点击下面的拓展阅读进行跳转阅读。
来源网站:www.archdaily.com
翻译整理:WAQI
设计终究是一个不断学习的过程,WAQI作为一家学习型设计事务所,通常在设计的过程中,会分析甚至于拆建一些案例,
不定期分享一些心得。请扫描并关注公众号,更多精彩,与您共享。。。
马上分享WAQI:
微信
QQ空间
新浪微博
上一个
下一个