首页
Home
WAQI做些什么
Services
WAQI的作品
Projects
WAQI是谁
About us
WAQI学院
College
联系WAQI
Contact us
logo
让微风吹入住宅|生态设计
发布于:2021-01-15 16:02 浏览:
可持续设计解决方案和建筑物理分析已应用于该项目的被动设计,以在确保室内环境质量的同时优化能源效率。
就热舒适性而言,空气在中庭处垂直穿过整个建筑,并连续不断地穿过通风砖块和开口,从而增加了建筑物围护结构的隔热能力,并增加了缓冲空间的相对湿度。这也有助于将内部热环境自然地维持在舒适的水平,从而减少了整天使用风扇和空调的时间。
至于视觉舒适度,尽管平均窗户与墙壁的比例低于10%,但通过有效利用天窗的功能,室内的起居室和工作区在白天仍可获取自然光。因此,不需要日光用电。
项目信息
设计公司:C.A.T Design and Build
项目类型:建筑设计、生态设计、景观规划设计
位置:越南
▽ 建筑外观
空气质量和绿化区域作为多层过滤系统布置在前院和后院,以减少房屋外部的有害灰尘和烟雾。这些“绿色过滤器”也位于厨房和卫生间中,以防止气味散布到其他室内空间。结果,确保室内空气清洁和安全,以确保使用者的健康。
▽ 室内设计
设计师不仅关注被动和主动设计,还关注建筑材料和结构的局部性和环境友好性。因此,该项目选择并使用了局部孔洞粘土砖作为墙体,并使用了具有局部集料的现场钢筋混凝土作为结构构件。
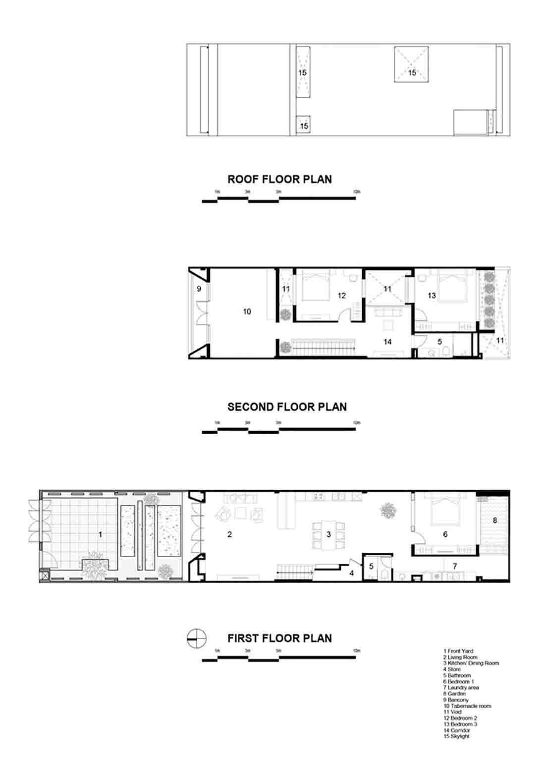
▽ 平面图
▽ 立面图
编后语:在进行生态建筑的设计改造时,设计师就把舒适的生活环境和住宅内成员的幸福放在首位。在这个项目里面着重于屋顶和中庭的设计,以克服场地定位和位置的缺点,让缺点转换为优点。更多关于生态设计、生态建筑、建筑设计的案例,请点击下面的拓展阅读进行跳转阅读。
来源网站:www.archdaily.com
翻译整理:WAQI
设计终究是一个不断学习的过程,WAQI作为一家学习型设计事务所,通常在设计的过程中,会分析甚至于拆建一些案例,
不定期分享一些心得。请扫描并关注公众号,更多精彩,与您共享。。。
马上分享WAQI:
微信
QQ空间
新浪微博
上一个
下一个