首页
Home
WAQI做些什么
Services
WAQI的作品
Projects
WAQI是谁
About us
WAQI学院
College
联系WAQI
Contact us
logo
最糟糕的地方也能改造生态化建筑|旧房改造
发布于:2021-01-15 16:16 浏览:
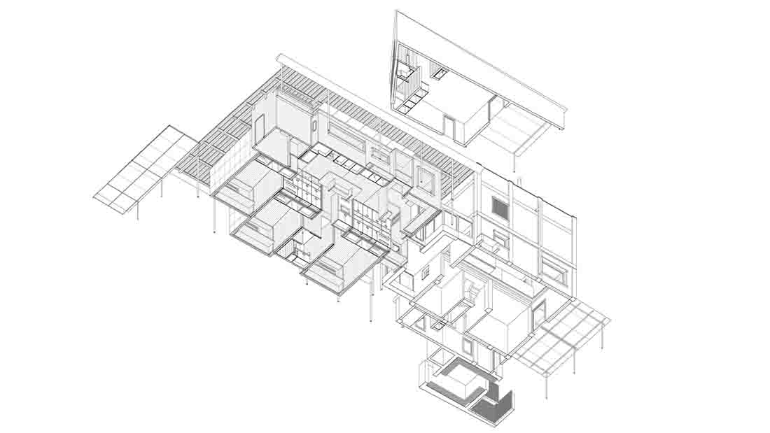
这个地方的价值不是现有的主要房屋。尽管其结构相当良好,但使它适合居住的是其自建的花园结构。这些室外避难所是这个地方的真正品质。它们是无法设计的。它们可能无法复制,它们非常脆弱,以至于似乎无法修复它们。设计师需要找到的是一种升级这些结构的方法,并在其中增加一些可居住的空气。设计师的方法不是触摸我们想要保留的内容,而是将其绘制出来。
项目信息
设计公司:Aixopluc
项目类型:建筑设计、旧楼改造、景观规划设计
位置:西班牙
▽ 设计构想
因此,既不保持现有的质量不变,也没有完全拆除它。取而代之的是,设计师在该地块最糟糕的区域放置了更多可居住的空气,该区域通常被主房屋遮挡。扩展是现有门廊的家族。通过维护旧建筑,获得了三个自治的栖息地,将根据季节和几十年来不断变化的需求使用它们。
▽ 建筑外观
▽ 室内设计
▽ 景观设计
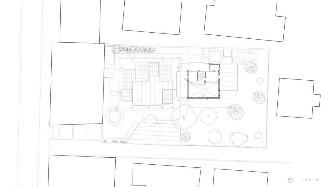
▽ 平面图
▽ 立面图
编后语:设计师经过多方面的勘察,让场地内最糟糕的部分摇身一变成为场地中耀眼的存在,让每一处地方都能发挥最大的优点与作用,让旧建筑不会缺失原建筑韵味的情况下,更加生态环保。更多关于旧楼改造、旧房改造、建筑设计的案例,请点击下面的拓展阅读进行跳转阅读。
来源网站:www.archdaily.com
翻译整理:WAQI
设计终究是一个不断学习的过程,WAQI作为一家学习型设计事务所,通常在设计的过程中,会分析甚至于拆建一些案例,
不定期分享一些心得。请扫描并关注公众号,更多精彩,与您共享。。。
马上分享WAQI:
微信
QQ空间
新浪微博
上一个
下一个