首页
Home
WAQI做些什么
Services
WAQI的作品
Projects
WAQI是谁
About us
WAQI学院
College
联系WAQI
Contact us
logo
用原始的设计打造舒适住房|旧房改造
发布于:2021-01-25 16:59 浏览:
作为设计师,设计房屋是爱的劳动,爱带来的所有变化。重新设计、评估可能的解决方案,成本计算和实现愿景。业主购买该物业后,预算不足,随后的第一阶段的建筑设计,设计师将建筑物恢复为原始设计,较低的楼层包含了现有的结构和功能,例如瓷砖,开孔和纹理,而顶层公寓则是现代风格,由软硬材料的对比,明暗的阴影,固体和空隙的对比定义。
项目信息
设计公司:Chris Briffa Architects
项目类型:建筑设计、旧楼改造、景观规划设计
位置:马耳他
▽ 建筑外观
一楼带有拱形入口,是主要接待处兼画廊,而拱形地下室则用原型制作车间。随着高层的建造,在院子里放置了一个用钢制和有线玻璃笼子围起来的升降机,当您登高时构筑了美景。第一层包含工作室,第二层充当缓冲区。在办公室和家庭之间,可以满足正式和非正式的需求
新的扩建部分位于两个预制的混凝土梁上,这些梁将顶层公寓的全部重量转移到聚会的侧壁上,从而使房屋摆脱了任何额外的负担。他们的加入是转型的核心,但随之而来的却是各种各样的问题。除了成本,它们特别难以运输和安装在受限的地点,周围是历史建筑和狭窄的街道。考虑到它们的窄肋形状,在结构比例和外部皮肤方面也不容易设计。
▽ 室内设计
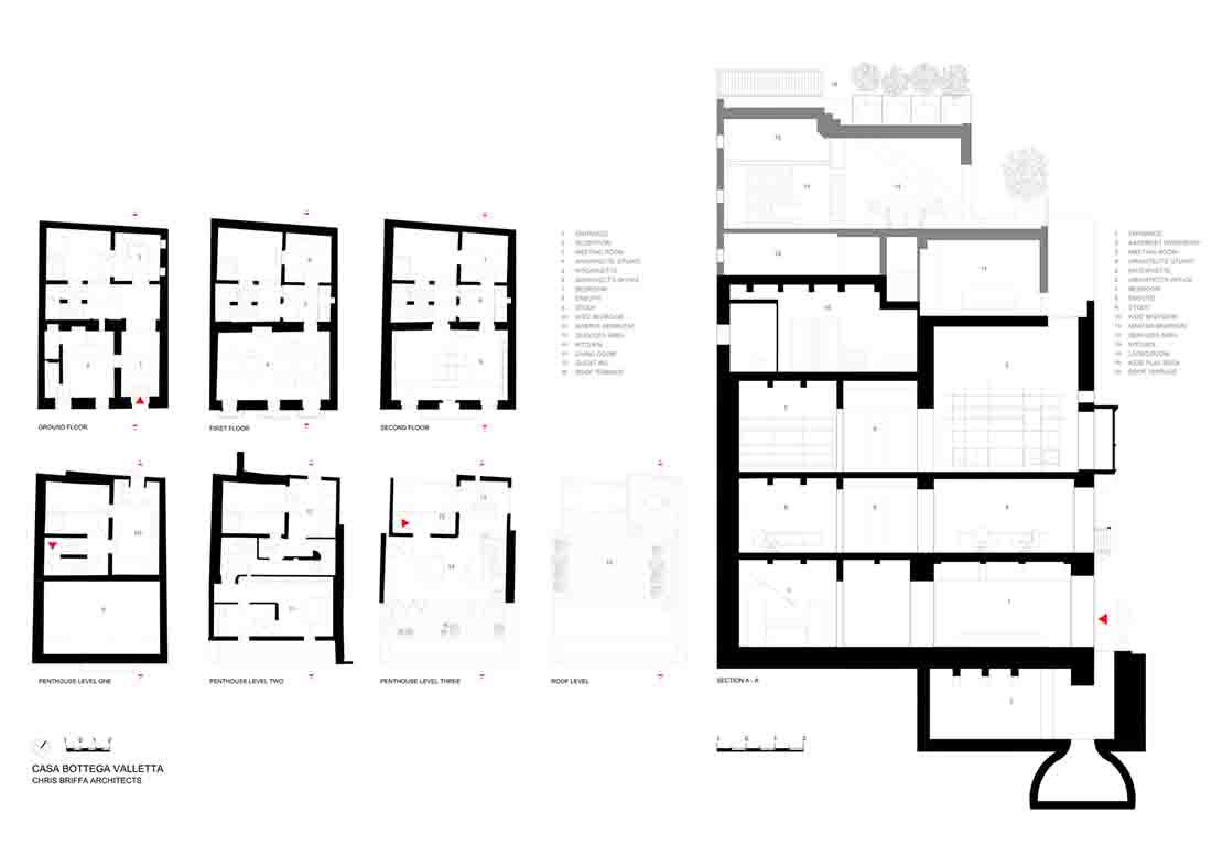
▽ 平面图
编后语:通过原始的设计,保留建筑的“原汁原味”,让建筑从内而外散发出历史的魅力,这座现代化的建筑,住户能够在低预算的情况下,也能享受到高水准的建筑改造设计。更多关于旧楼改造、旧房改造、建筑设计的案例,请点击下面的拓展阅读进行跳转阅读。
来源网站:www.archdaily.com
翻译整理:WAQI
设计终究是一个不断学习的过程,WAQI作为一家学习型设计事务所,通常在设计的过程中,会分析甚至于拆建一些案例,
不定期分享一些心得。请扫描并关注公众号,更多精彩,与您共享。。。
马上分享WAQI:
微信
QQ空间
新浪微博
上一个
下一个