首页
Home
WAQI做些什么
Services
WAQI的作品
Projects
WAQI是谁
About us
WAQI学院
College
联系WAQI
Contact us
logo
趣味盎然的园艺空间|生态农场
发布于:2021-01-26 16:24 浏览:
该项目是一项新举措,旨在面向伦敦各地的儿童和成年人,教授如何种植、准备和烹饪美味且营养的食物,同时为当地居民提供启发灵感的社区空间和多产的菜园。这所学校是一个专门的食物教育中心,由“学习,教育,艺术与伙伴关系联盟”和“主厨在学校”,一个致力于通过培训、指导和提供支持改变食物、饮食文化和学校食物教育的慈善机构联合经营。
哈克尼食品学校将作为一处便利设施,对全区的所有小学开放。这所学校也将扩大其覆盖面,为愿意在菜园中做志愿者的当地居民提供机会。作为伦敦的高密度内城区之一,哈克尼区的私人花园和共享社区花园十分稀缺。哈克尼学校的志愿者招募在社区获得了空前的反响,其中不乏青少年和耄耋老人。即使面临着保持物理距离带来的挑战,投身园艺仍被视为社交隔离时期一种安全、健康的锻炼方式和保持愉悦心情的途径。
项目信息
设计公司:Surman Weston
项目类型:建筑设计、生态农场、景观规划设计
位置:英国
▽ 建筑外观
该方案包括一个室内厨房和周围的菜园,位于曼德维尔小学街角处一块显眼但并未被充分利用的场地上。在预算紧张的情况下,该方案采用耐用、简洁且有趣的设计,并通过改造现有建筑来减少施工过程中的碳排放。
项目的核心是教学厨房,它被安置在一间闲置的看守人小屋内。红砖房内的所有东西都被清空,整个二层被拆除,从而创造出一个明亮宽敞、两层通高的开放空间。从经验中学习是该项目的核心理念,因此,所有建筑元素都被暴露在外,从结构梁到隔热层再到屋顶的椽子,以此帮助每位使用者去理解该建筑是如何被组合在一起的。旧房子的许多原始饰面和特征也被保留了下来,包括粗糙的灰泥砌块墙,以及旧的浴室瓷砖,它们讲述着这座建筑从前的故事。
▽ 室内设计
不同的材料与纹理通过油漆统一起来,对比鲜明的红色水泥地板赋予空间色彩和温暖感。教学厨房操作区的设计将实用性和使用趣味性最大化。厨房可满足30名学生同时上课,这不是件容易的事,尤其是在现有建筑占地面积仅59平方米的紧凑情况下。厨房成功的关键在于是否能让五岁的孩子和个子最高的成年人都舒适地使用它。
建筑师在新的装饰性厨房菜园和街道之间引入一道板条木门,形成二者间的视觉连通并作为直接进入共享菜园的入口。厨房菜园既是一处多产的种植空间,也是一处学习和娱乐空间,可以进行户外授课,或举办派对和宴会。这里有大型花坛、阳光露台、篝火坑和燃木披萨窑炉。为了让各年龄段的孩子和成年人都能参与到该项目中来,砖砌花坛的高度在一定范围内有所区别,可以作为备用座位在户外课程及露天用餐时使用。
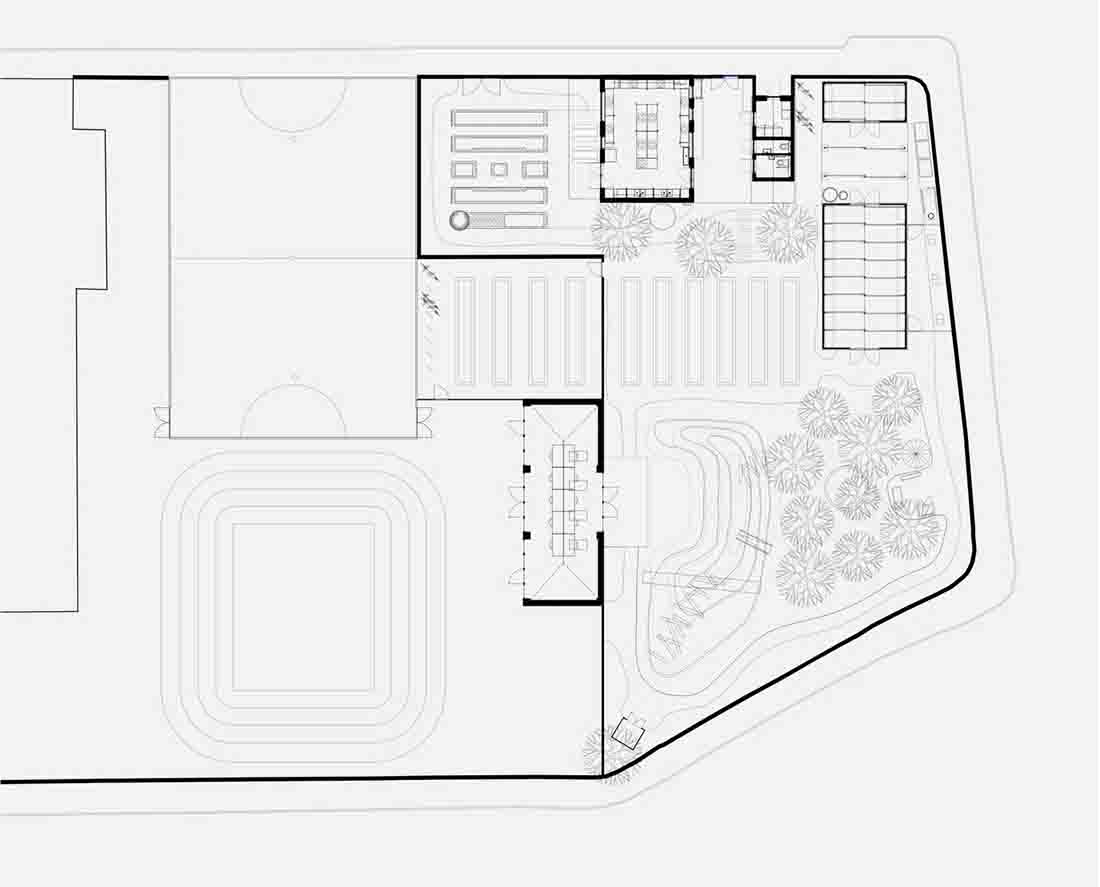
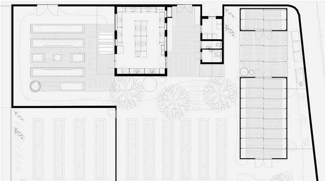
▽ 平面图
▽ 立面图
编后语:设计师的建筑、农场设计方案融合了易于重复的设计细节,形成一个简洁、低成本的设计解决方案,具有未来被应用在更多场地上的潜力。同时,也是一个孩子们健康、安全的获取知识的新途径。更多关于生态农场、农场设计、景观规划设计、建筑设计的案例,请点击下面的拓展阅读进行跳转阅读。
来源网站:www.archdaily.com
翻译整理:WAQI
设计终究是一个不断学习的过程,WAQI作为一家学习型设计事务所,通常在设计的过程中,会分析甚至于拆建一些案例,
不定期分享一些心得。请扫描并关注公众号,更多精彩,与您共享。。。
马上分享WAQI:
微信
QQ空间
新浪微博
上一个
下一个