红房子与小营地的结合|营地设计
发布于:2021-01-29 17:33  浏览:

KiTa Parkstrasse的财产位于斯图加特东部的Berg文化公园附近。四人保育园的新两层楼建筑是绿色走廊的一部分,绿色建筑的走廊上有历史悠久的树木。建筑物的位置,建筑物尺寸,建筑物和材料是根据房屋的特殊特性而定的:当地建筑物规范指定建筑物深度为12米。它的位置和方向是施工线和从西向东倾斜的地形的结果。现有地下掩体的基础使轻质木材结构成为唯一的选择。
 
 
 
 
项目信息
设计公司:Birk Heilmeyer、Frenzel Gesellschaft von Architekten
项目类型:游戏设计、营地设计、景观规划设计
位置:德国
 
 
 
 
 
 
 
▽ 建筑外观

 
 
 
 
主入口位于北侧,在立面上很容易区分。门厅,也是父母的聚会场所,从北向南延伸,通向花园。从这里可以进入多功能室,一条走廊通向南部的团体区域,北部通向相邻的房间。较高楼层的所有公共休息室前均设有凉廊。两个外部楼梯在建筑结构上显得格外醒目,它们直接从较高楼层通向带有露天游乐区的花园。
 
▽ 室内设计

 
 
 
 
 
 
 
 

立面的设计和屋顶的形状反映出建筑物清晰地划分为一个小组空间和一个辅助房间区域。走廊上方屋顶的天窗增强了这种印象,并为建筑物提供了良好的照明和通风。由于建筑物的内部组织,卫生和通风设备可以限制在附属房间的隔断内。这意味着可以增加公共房间的房间高度,同时减少天花板悬挂的数量。
 
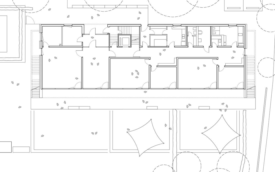
▽ 平面图

 
▽ 立面图

 
 
 
 
 
 
 
编后语:设计师将营地建筑设计为结构性木材建筑。木材结构的重量较轻,可将建筑物竖立在下面的防空洞中。上升建筑由扁平木材组成,外墙受益于带有通风外墙的木结构建筑的所有优点。通过垂直的木质立面的红色,建筑物在周围公园的绿色中脱颖而出。更多关于营地设计、营地规划、游戏设计、建筑设计的案例,请点击下面的拓展阅读进行跳转阅读。
 
 
 
来源网站:www.archdaily.com
翻译整理:WAQI



设计终究是一个不断学习的过程,WAQI作为一家学习型设计事务所,通常在设计的过程中,会分析甚至于拆建一些案例,
不定期分享一些心得。请扫描并关注公众号,更多精彩,与您共享。。。