首页
Home
WAQI做些什么
Services
WAQI的作品
Projects
WAQI是谁
About us
WAQI学院
College
联系WAQI
Contact us
logo
阁楼改造设计|旧房改造
发布于:2021-01-29 18:46 浏览:
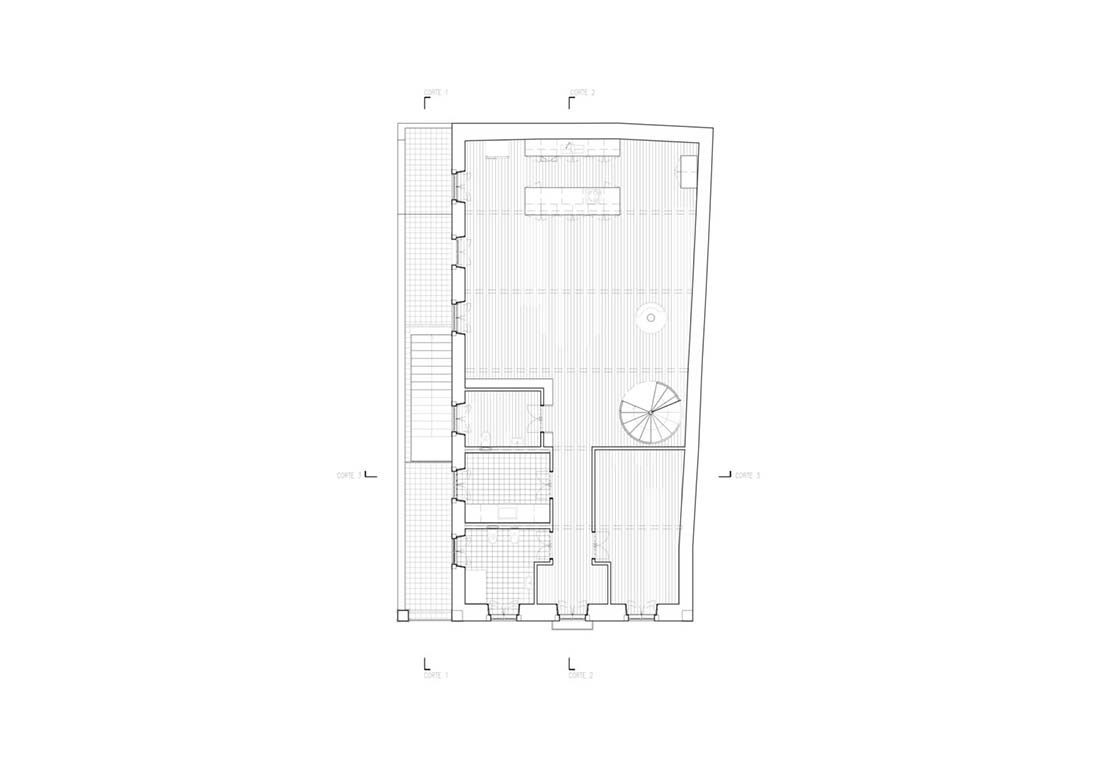
干预是在一栋两层楼的建筑中,其中一楼是以前的葡萄酒仓库,楼上是两间公寓。现有结构的严重破旧状态导致必须彻底拆除内部和屋顶。
在重建过程中,复制了原有的屋顶以及分隔地板,但是它们的结构有所不同–屋顶的木梁可以完全腾出屋顶下方的空间,而混凝土地板分隔楼层。充分利用屋顶上的空隙并移除一楼的分隔墙(除了一些封闭空间,例如一间卧室,洗衣区和两个浴室),这为夹层楼板的铺装提供了足够的空间。直接在屋顶的山脊下方,因此可以全面读取空间。
项目信息
设计公司:RA + TR arquitectos
项目类型:建筑设计、旧楼改造、景观规划设计
位置:葡萄牙
▽ 建筑外观
▽ 室内设计
▽ 平面图
▽ 立面图
编后语:设计师在材料的选择上,确保了干预之前的建筑材料存在的连续性,此外还通过砖砌,木材等材料的质感提供了建筑物的工业历史的特殊氛围。让阁楼建筑也可以变得别有一番风味。更多关于旧楼改造、旧房改造、建筑设计的案例,请点击下面的拓展阅读进行跳转阅读。
来源网站:www.archdaily.com
翻译整理:WAQI
设计终究是一个不断学习的过程,WAQI作为一家学习型设计事务所,通常在设计的过程中,会分析甚至于拆建一些案例,
不定期分享一些心得。请扫描并关注公众号,更多精彩,与您共享。。。
马上分享WAQI:
微信
QQ空间
新浪微博
上一个
下一个