首页
Home
WAQI做些什么
Services
WAQI的作品
Projects
WAQI是谁
About us
WAQI学院
College
联系WAQI
Contact us
logo
可持续性的登山小屋|生态建筑
发布于:2021-02-23 14:28 浏览:
该项目源自一对年轻夫妇希望在切尔维诺山脚下建造一栋可持续小屋的想法。这栋小屋采用了预制的木结构,并以传统的木屋形态为灵感。整栋小屋呈现出W形的外观,以更好地享受室外的天空和瑰丽山峰。这一形态也在无形之中与周围的自然环境建立了一种良好的对话关系。
小屋特殊的立面设计完全遵循内部的空间功能。房间的每一处开窗和社交区域顶部的巨大窗户都朝向南侧,以更好地接收外侧的自然光照。
项目信息
设计公司:LCA Architetti / luca compri architetti
项目类型:建筑设计、生态建筑、景观规划设计
位置:意大利
▽ 设计构想
▽ 建筑外观
小屋的每个房间都与露台相连,部分的联通路径顶部还设有木制防晒网。小屋西北向的立面采用了全封闭式的设计,以更好地抵御外侧的严酷气候。小屋的墙面也相应地配备了由垂直木梁制成的结构骨架,来给小屋提供必要的强度支撑。小屋的东侧设有一个大型凉廊和围绕阁楼搭建的木制结构。
小木屋采用的是由干石外部包裹的砌体基础。木屋的地基除了支撑木屋的三层结构外,还为车库、设备间和滑雪用具储藏室提供了空间。住户可以通过一层北侧的入口进入到这些地下空间。小屋的一层容纳有一间卧室和一个水疗中心。水疗中心内配备了带漩涡的浴缸、休闲室,桑拿浴室和土耳其浴室等。健身区则可以俯瞰外侧的花园和铺有石头的大型日光浴室。
▽ 室内设计
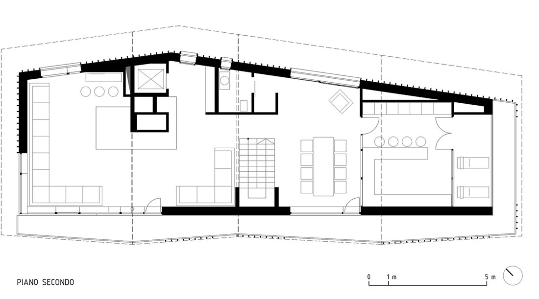
小屋的二层是4间带有独立卫生间的卧室。每间卧室都设有朝南的巨大窗户。小屋的三层是一个观景空间,巨大的天窗使得住户可以尽情享受外侧的瑰丽风光。此外,小屋的起居室、餐厅、厨房和壁炉也都位于第三层空间内。木屋在建造阶段采用了大量的可再生自然材料,以尽可能地减少二氧化碳的生产和排放。
▽ 平面图
▽ 立面图
编后语:这栋山脚的木屋与周围的自然环境形成了良好的对话关系。木屋的体块形态和立面开洞保证了室内的自然采光需求。自然生态材料的使用,也使得小屋与周围环境的关系更近了一步,营造了一个温暖舒适的室内居住氛围。更多关于生态建筑、生态设计、建筑设计的案例,请点击下面的拓展阅读进行跳转阅读。
来源网站:www.archdaily.com
翻译整理:WAQI
设计终究是一个不断学习的过程,WAQI作为一家学习型设计事务所,通常在设计的过程中,会分析甚至于拆建一些案例,
不定期分享一些心得。请扫描并关注公众号,更多精彩,与您共享。。。
马上分享WAQI:
微信
QQ空间
新浪微博
上一个
下一个