首页
Home
WAQI做些什么
Services
WAQI的作品
Projects
WAQI是谁
About us
WAQI学院
College
联系WAQI
Contact us
logo
走高端风的青年旅舍|青年旅舍设计
发布于:2021-02-23 15:10 浏览:
CHAI大楼俯瞰着瓦伦特大桥(ValentréBridge)和洛特河(Lot River),是一座“灯塔”,是沿着河岸延伸的绿色休闲区的新市民心脏。它可以俯瞰这座建于14世纪的坚固桥梁,并一览无遗,并被联合国教科文组织列为世界遗产名录,并与卡奥尔历史悠久的发现徒步旅行联系。
散布在这个古老城镇周围的许多中世纪遗址是其享誉国际的主要原因。CHAI的设计与城镇的历史,遗产以及该地区主要交通枢纽的交汇点相呼应。
项目信息
设计公司:Antonio Virga architecte
项目类型:建筑设计、度假酒店设计、景观规划设计
位置:法国
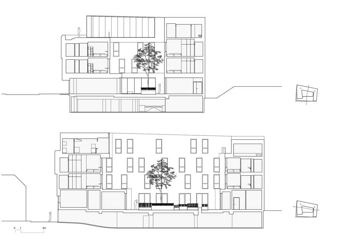
▽ 建筑外观
设计师的干预使得与附近环流轴线的接口重新定位,并充分利用了瓦伦特大桥和洛特河的存在,那里的河岸和历史开辟了独特而复杂的景观。
为了向Cahors镇致敬,CHAI以隐藏在中世纪小镇蜿蜒街道上的25个秘密花园而闻名,CHAI还在其核心处设有绿色空间。这样,CHAI便延续了当地的传统。尽管事实上这个花园并不完全是个秘密花园。实际上,由于底层的透明性,从街道上就可以看到它,它可以邀请您参观这个地方。
▽ 室内设计
▽ 景观设计
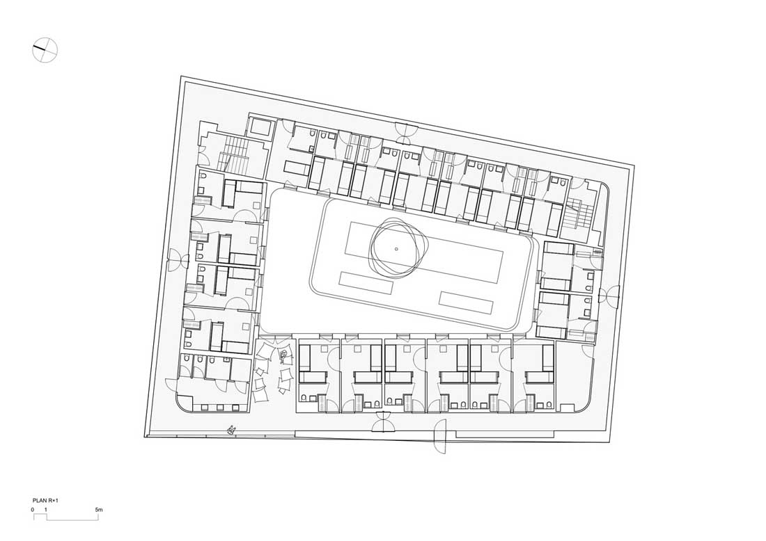
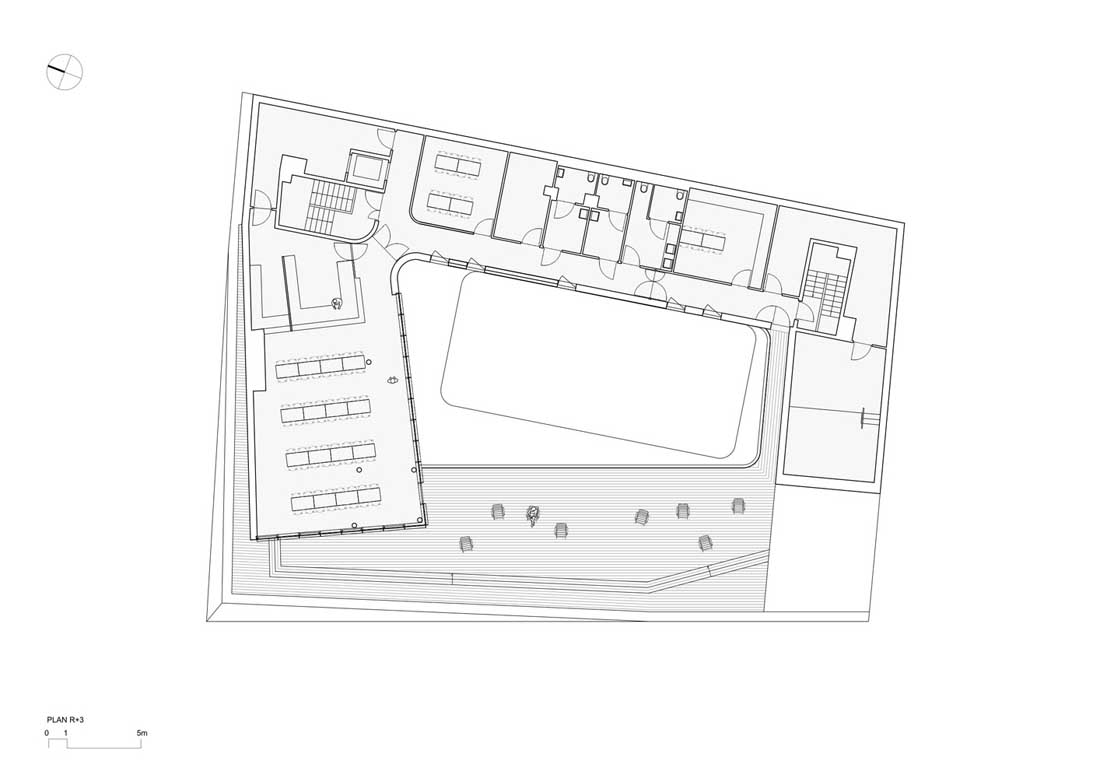
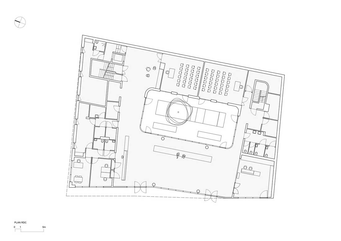
▽ 平面图
▽ 立面图
编后语:设计师将青旅插入由景观设计方案确定的环境中,以确保其与现有建筑遗产的融合。它看起来像是一个简单的石头砌成的体积,与地面分离,其立面在街道上弯曲。这座青旅在古老的街道里以一种全新的姿态进入历史新貌,让高端风与当地建筑历史融为一体。更多关于度假酒店设计、青旅设计、建筑设计的案例,请点击下面的拓展阅读进行跳转阅读。
来源网站:www.archdaily.com
翻译整理:WAQI
设计终究是一个不断学习的过程,WAQI作为一家学习型设计事务所,通常在设计的过程中,会分析甚至于拆建一些案例,
不定期分享一些心得。请扫描并关注公众号,更多精彩,与您共享。。。
马上分享WAQI:
微信
QQ空间
新浪微博
上一个
下一个