首页
Home
WAQI做些什么
Services
WAQI的作品
Projects
WAQI是谁
About us
WAQI学院
College
联系WAQI
Contact us
logo
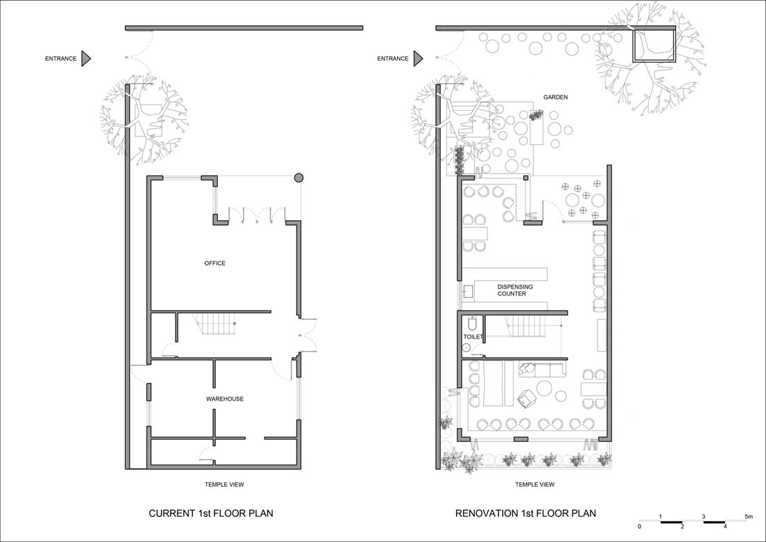
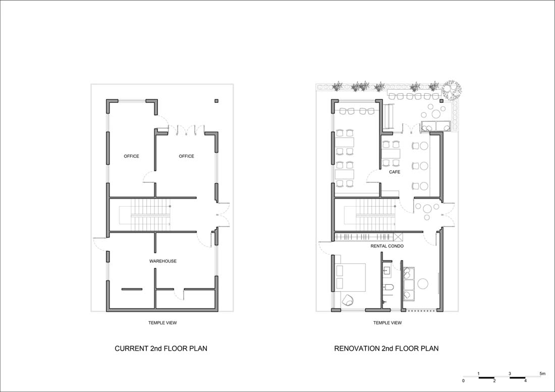
具有怀旧气息的咖啡馆|改造设计
发布于:2021-02-25 15:34 浏览:
59号是一间全新的咖啡店,是从70年代的一栋旧建筑改建而成。与我们通常在拥挤的城市岘港(Na Nang)遇到的其他具有现代风格的咖啡馆不同,The 59咖啡馆隐藏在海防街小巷的尽头。
项目信息
设计公司:Viet D Architects
项目类型:建筑设计、旧房改造、景观规划设计
位置:越南
▽ 建筑外观
随着设计师发现建筑物后面一座华丽的寺庙的美丽,决定将后壁的整个墙壁拆除,从而露出那座古老寺庙的珍贵景致。尽管将旧建筑改造成咖啡店的理想是满足年轻一代的需求,但设计师希望不要破坏这座房子对家庭的记忆。
因此,保留旧材料,例如洗石,瓷砖,然后将它们放置在新材料旁边,这与混凝土和钢材形成了鲜明的对比。通过尽可能细致地完成这一工作,该组建筑成功地创建了许多功能,并赋予了咖啡馆概念以一定的感觉。例如,乍一看,我们可以立即了解到这座庞大的灰色建筑的绝妙之处,但仍带有残留的怀旧气息……
▽ 室内设计
▽ 景观设计
就在大树冠下,The 59带来了巨大的优势。它有助于在咖啡馆前面建立一个绿色区域,该区域与花园相连,并给顾客留下了环保咖啡馆的印象。此外,店主还没有忘记利用他家人的旧物品,例如照相机,暗盒等。它们都放置在咖啡厅的每个小角落,目的是创造一个复古主题,并确保咖啡厅内部空间之间的联系紧密。
▽ 平面图
▽ 立面图
编后语:这家咖啡馆的优势在于,老房子以精致的设计,让旧建筑遵循了复古风格,在小巷尽头的灰色混凝土老房子最终变成了一家热情友好的咖啡店。复古与现代设计的碰撞美感,生态设计让建筑增添光彩。更多关于旧楼改造、旧房改造、建筑设计的案例,请点击下面的拓展阅读进行跳转阅读。
来源网站:www.archdaily.com
翻译整理:WAQI
设计终究是一个不断学习的过程,WAQI作为一家学习型设计事务所,通常在设计的过程中,会分析甚至于拆建一些案例,
不定期分享一些心得。请扫描并关注公众号,更多精彩,与您共享。。。
马上分享WAQI:
微信
QQ空间
新浪微博
上一个
下一个