Gerlos青年旅社 | 青年旅社
发布于:2022-05-22 19:01  浏览:

项目信息
项目类型:景观建筑、建筑设计、青年旅舍、混凝土、金属
位置:奥地利
关键词:景观建筑、建筑设计、青年旅舍 
 
Gerlos青年旅舍位于奥地利阿尔卑斯山海拔1700米的Hochkrimml村。滑雪运动在奥地利社会文化中根深蒂固,也是学校教学的一部分。本项目旨在为学校的滑雪旅行提供更为生态的环境与更为实惠的住宿地点。因此,青年旅舍采用了当地生产的实木建造,并由当地生物质集中供热设备统一供暖,建筑的主要电能来源则是光伏发电。来此住宿的青年们也不是乘坐个人交通工具,而是主要靠长途汽车前来。此外,项目中交叉层压木墙运输过程中剩下的木材还被加工成家具,进一步减少了材料的浪费。
 
 
 
▽ 旅社外部效果图【图1-图5】
 







▽ 旅社内部效果图【图6-图9】
 







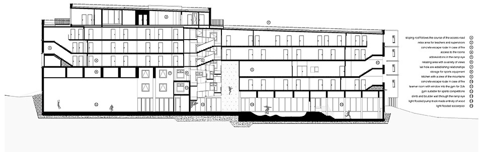
▽ 平面图/剖面图【图10-图12】
 

 
 
来源网站:www.archdaily.com
翻译整理:WAQI-Siwen

设计终究是一个不断学习的过程,WAQI作为一家学习型设计事务所,通常在设计的过程中,会分析甚至于拆建一些案例,
不定期分享一些心得。请扫描并关注公众号,更多精彩,与您共享。。。