京都Guest House合集 | 民宿设计
发布于:2022-05-22 19:15  浏览:

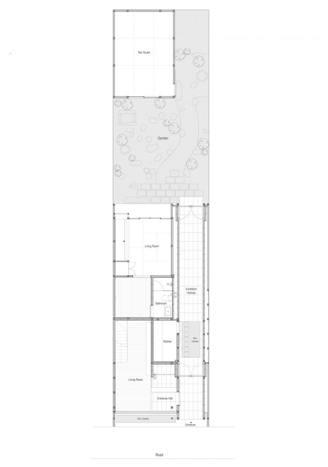
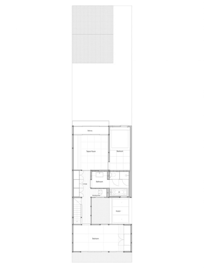
项目选址位于京都乌丸五条,房子本身已有100多年历史,为传统的木结构町屋,主体骨架良好,除了一些杂乱的私人加建。客户意将其改造成一个独特的高端精品民宿。原则上我们尽可能的去保留,同时也需要更新以满足现代的生活需求,自然而然的就产生了一个混血的新旧组合建筑。和一般纯住宿的民宿不同,我们还提供了小博物馆式的文化展示体验空间,所以取名合庭。
 
 
项目信息
设计公司:BLUE ARCHITECTURE STUDIO
项目类型:民宿设计、青山周平、木材、夯土
位置:日本京都
关键词: 民宿设计、青山周平、建筑设计、日本建筑
 
▽鸟瞰图【图1-图3】
 




 
▽建筑入口空间透视【图4-图5】



 
为满足新的需求我们重新梳理了母屋室内空间,在不破坏原结构的基础上,修改了楼梯的走向并做了新楼梯,因为之前的老楼梯非常拥挤陡峭,走起来并不舒适,还在一二层都加入了现代的卫浴空间,以保证体验的舒适性。当然加固结构的代价也必不可少。在利用楼梯下部空间制作储物抽屉时,我们将拆下的老房子木板材重新利用做成抽屉板,体现房子本身的历史情感。
 
▽庭院空间设计【图6-图10】
 









▽建筑内部空间透视【图11-图15】









 
▽ 平面图【图16-图17】



 
 
来源网站:www.archdaily.com
翻译整理:WAQI-Siwen

设计终究是一个不断学习的过程,WAQI作为一家学习型设计事务所,通常在设计的过程中,会分析甚至于拆建一些案例,
不定期分享一些心得。请扫描并关注公众号,更多精彩,与您共享。。。