Pa Prank旅舍位于曼谷最有名的历史城区之一Phraeng Saphasat,周围分布着数个旅游景点。该项目由一栋旧建筑翻新而来,从两间店屋变成了一家旅舍和一间咖啡店。
项目信息
设计公司:IDIN Architects
项目类型:建筑设计、青年旅社、
位置:泰国
关键词: 金属、砖石、玻璃
▽周边环境 【图1】
▽建筑立面 【图2】
▽朝向接到的咖啡馆和庭院【图3】

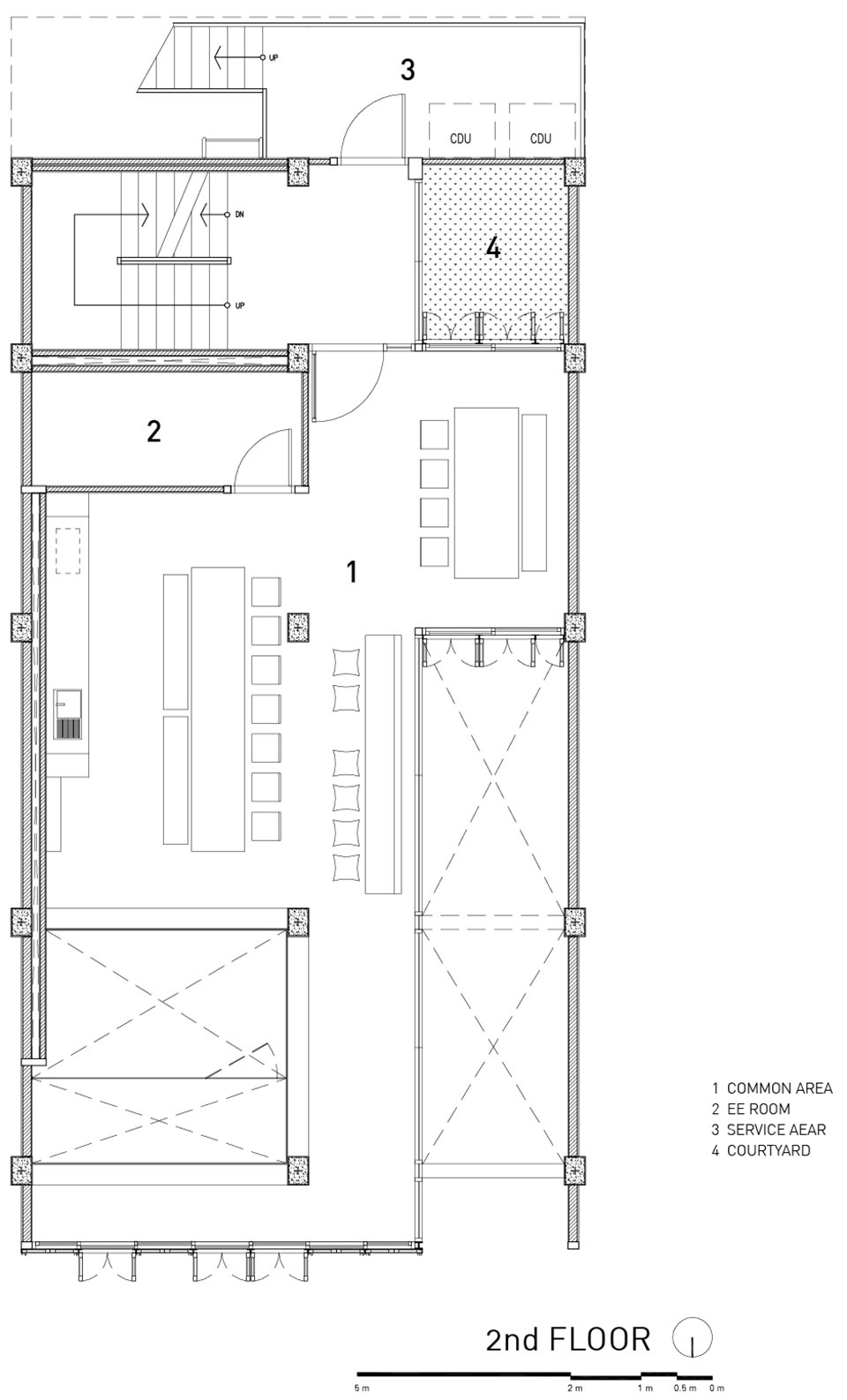
旅舍的功能布局旨在实现最高的便捷度。夹层被用作公共区域,可以从一层的咖啡馆直接进入,同时与活动区和楼上的客房相连。公共区域上方的楼层设有浴室、更衣室和洗衣房,为整个3层和4层留出了充足的客房空间。瑜伽和拳击教室位于顶层,在提供室内外活动场地的同时也带来了优美的历史景观。
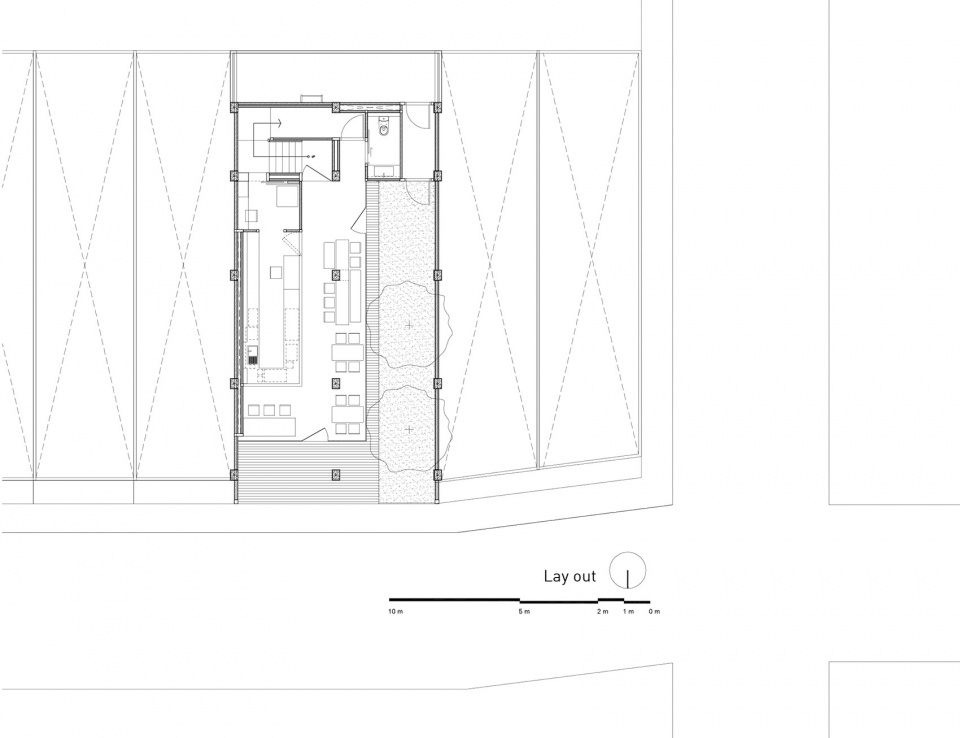
▽场地平面图【图4】

▽建筑空间效果图【图5-图9】
原本的22个既有单位被改造为占地700平方米的旅舍,包含水疗区和一套两居室的私人住宅,总体使用面积为1100平方米。原先的4间店面被拆除,创建了一个新的中心庭院,从而带来更好的通风、宽敞的空间和多元的视野。庭院为社区提供了放松的空间,能够让人们在一种平静休闲的氛围中产生互动。
▽ 设计示意图【图10-图11】
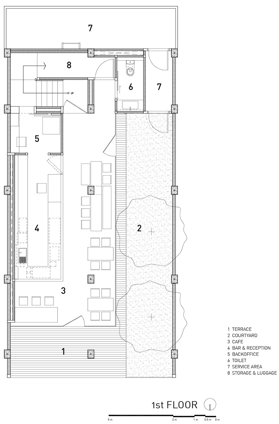
▽ 建筑平面图【图12-图14】
来源网站:www.archdaily.com
翻译整理:WAQI-Siwen
设计终究是一个不断学习的过程,WAQI作为一家学习型设计事务所,通常在设计的过程中,会分析甚至于拆建一些案例,
不定期分享一些心得。请扫描并关注公众号,更多精彩,与您共享。。。