UNPLAN高端青年旅社 | 青年旅舍
发布于:2022-05-22 20:26  浏览:

自 2011 到 2014 的三年间,中国使用的水泥比美国在上个世纪一百年的时间里消耗的都要多。曾经住在自然材料住宅中的人们,现在都迁入了混凝土房屋中,而且这个趋势随着全球化的进程在世界各地都变得更加普遍。事务所被委托设计 3 个旅店,以表现出传统天然材料和现代手法结合后的潜力:区别于传统的审美,设计师想要表现出天然材料的美感,直接将裸露的泥土用作外立面的设计。用非标准化的材料为当地创造了更多的就业机会,也加强了城乡直接的区别性和多元化,促进了经济的公平发展,保护了地球的生态。
 
项目信息
设计公司:Aida Atelier
项目类型:建筑设计、青年旅社
位置:日本,东京
关键词: 建筑设计、青年旅舍、休闲娱乐
 
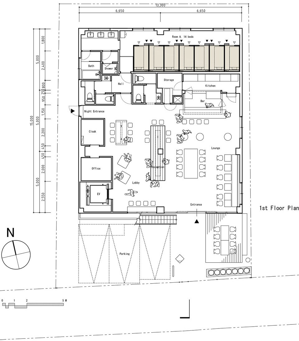
神乐坂UNPLAN青年旅社位于东京市中心,主要接待不同国家的背包客和国内的商务出行人员。旅社中设有78个上下铺位,三间客房,一个开放的大堂及其他辅助设施。
 
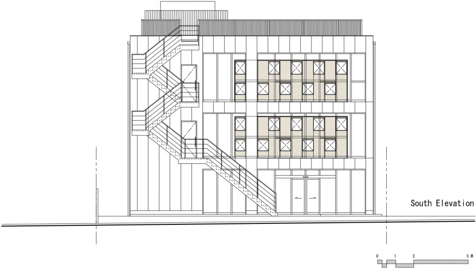
▽建筑外观 【图1-图2】





旅店开发商希望通过将家具元素植入这座外表平庸的三层建筑,使其看上去不是那么无聊。因此,设计师将方块形的双层床设置于房间之中,使其成为了旅社的标志性符号,街道上的行人可以透过巨大的开窗看到这些家具体块并留下深刻印象。这些双层床面积虽小,但可以充分满足旅客对于舒适和隐私的需求。在整个房间中,人们可以享受自然光照并且欣赏窗外的景色;而在每个单元中,旅客可以拉上窗帘,获得一片属于自己的私密天地。每张床的床头都设有保险箱,可以提供直接照明和背景光的灯具以及电源插口。
 
 
▽建筑内部透视图【图3-图13】








通常人们认为可持续性是关于稀缺性的,但自然的性质并不局限于此。这些伟大的材料,竹子、泥土都是大量存在于自然中的,他们在经济和生态方面都有很重大的意义,对人和地球的可持续发展有着重要的作用。这些建筑是一个关于可持续发展、关于生活质量的倡议,让人民重视自然暗藏的巨大资源。
 
▽建筑区位图【图14】

 
竹编和夯土的技术是劳动密集型的,对工匠的技能是一个很大的挑战,同时也让当地社群分享到最大的利润份额。该项目希望通过竹子的柔韧性等内在的特征形成的具有内含的文化品质。同时发扬中国丰富的工艺传统。宝溪的一大传统工艺就是当地的陶瓷船,这个形态变成了建筑外观的灵感来源。
 
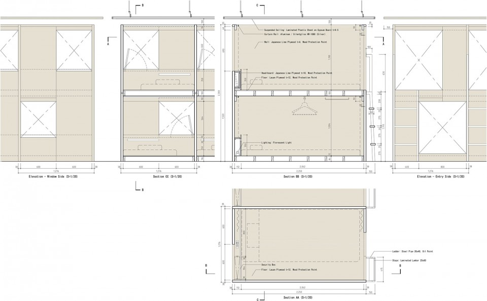
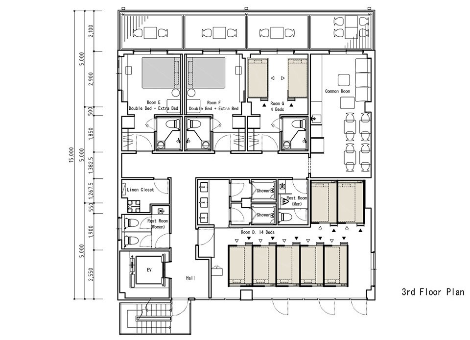
▽平面图/立面图/剖面图【图15-图20】
 
 
 




来源网站:www.archdaily.com
翻译整理:WAQI-Siwen

设计终究是一个不断学习的过程,WAQI作为一家学习型设计事务所,通常在设计的过程中,会分析甚至于拆建一些案例,
不定期分享一些心得。请扫描并关注公众号,更多精彩,与您共享。。。