
「“向阳而生”
垂直农业与生态建筑结合
让接待中心变得立体、丰富、更有内涵
交叉相叠的建筑
让每个方向都能欣赏到不一样的风景」
另一设计回顾:“消失”的接待中心
对于景区的接待中心,WAQI在规划设计时,设计了两种形式的景区接待中心:一种是“向阳而生”的接待中心,另一种是“消失”的接待中心。上一篇我们讲到,田园综合体设计的另一种可能性,让人会眼前一亮的“消失”了的接待中心。今天我们就来讲讲,生态建筑与农业的结合,是如何让建筑变得“向阳而生”的。
▎设计想法
场地有着丰富的杨树,当地的自然景观保存完好,因而景区的接待中心的设计上,本着与周边的居民楼和农田衔接的想法,WAQI将接待中心设计为一个综合型的生态农业建筑。让到访的旅客,在探索中发现更多的新鲜的内容。
架空层的农业展示区、屋顶的屋顶花园、连接各个区域的栈道,整体给游客的感觉是,整个建筑就像是向阳生长的植物一样,朝气有活力。

▲总平面图
把建筑的中庭打开,结合场地内的杨树,打造庭院景观,让建筑的通风、采光更好。二层建筑交错相叠,将建筑局部抬高,使顶层有更开阔的视野。
每一层的露台设计为不同的尺度,这样的设计加强了室内外的沟通,为建筑创造更多的可灵活利用的小场所。



▲建筑设计的想法
▎建筑各层的功能
接待中心建筑主要分为三层:
架空层为农业示范展示区,主要为鱼菜共生养殖区、食用菌工厂、有机蔬菜种植区等等;
1/2夹层为餐饮层,包含候餐区、就餐区、室外就餐区、开放厨房等;
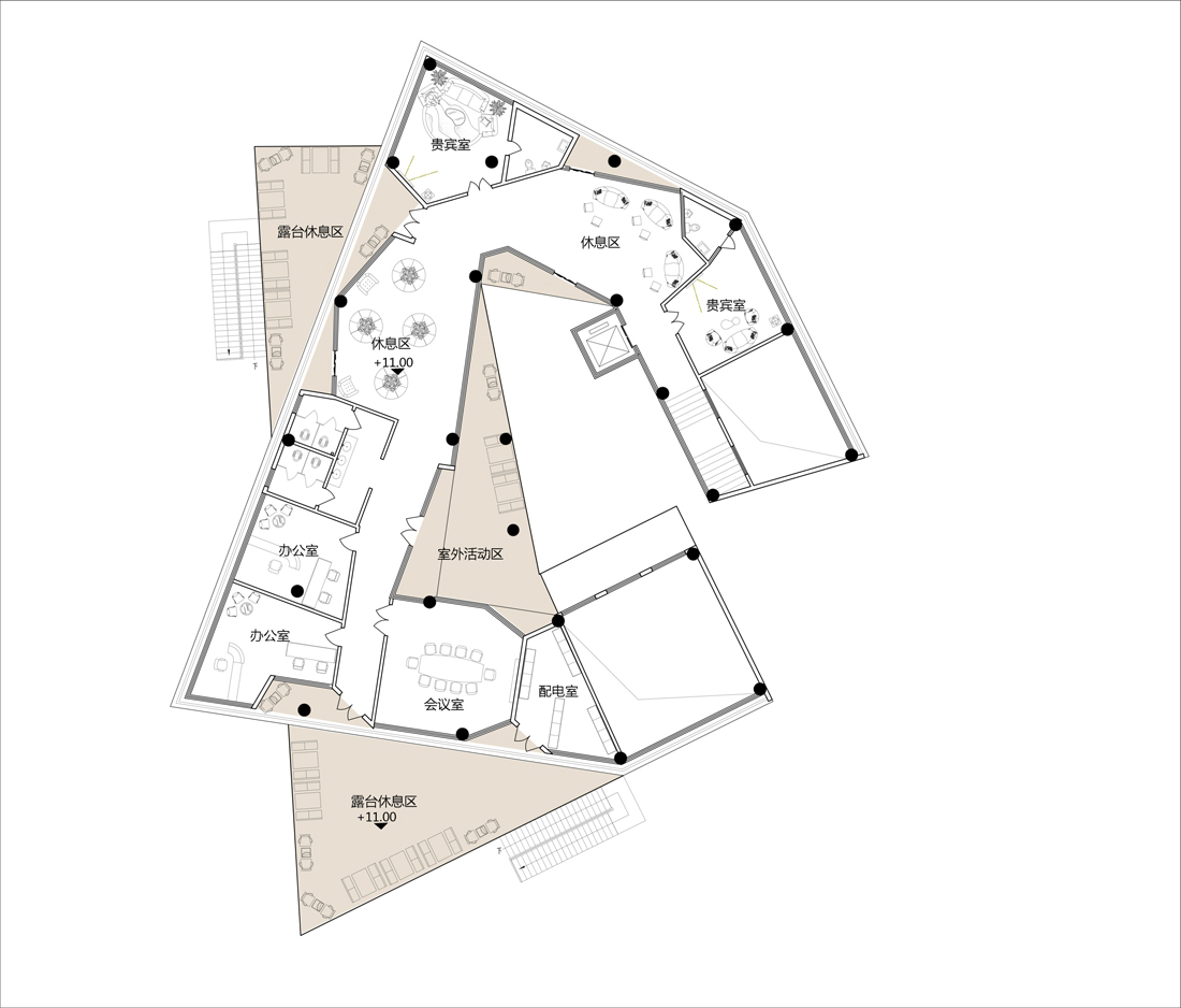
一层则为入口服务展示区,主要设置了接待区、沙盘展示区、洽谈室、产品体验区等;
3/2夹层则为多功能室,包含了放映室、阅读室、户外交流区等等;
二层是贵宾招待区,包括了贵宾室、休息区、办公室、会议室等;
WAQI还把屋顶设计为屋顶花园。屋顶花园除了有绿植、坐凳和活动平台以外,还有一个屋顶菜园,这可以让游客在屋顶菜园里体验另一种形式的户外课堂。



▲建筑各层功能结构示意图


▲剖面图





▲各层平面图
▎设计效果图





▎专项设计分析
作为一个接待中心,浏览流线也是十分的重要。因此,WAQI根据不同的需求,设计了两种功能流线:一种是研学功能流线,另一种则是售楼功能流线。

▲功能流线图

▲中部电梯与疏散楼梯的设置

▲交通线路图
WAQI用栈道,把架空层的农业展示区与宿舍区、种植区连接起来。这不仅增强了整个区域的关联性,还给游客不一样的观景体验。


▲栈道的设计,增强各区域的关联性
建筑的材料主要选择为混凝土和木质材料。材料选择上更贴近自然,环保,也与当地的建筑风格一致。


▲建筑材料的选择
▎建筑设计模型图






▎效果视频解析
文字整理: WAQI
图源: WAQI原创

浏览地址: