大山包音乐酒店[酒店设计]
发布于:2017-09-06 15:21  浏览:


精品,生态,园林,景观,园林绿化,酒店设计,住房景观,住宅景观,旧房改造,景观规划,景观设计

项目名称:大山包音乐酒店       
项目地点:云南邵通      
总占地面积:2500平方米 
设计时间:2014年





 酒店立面

景观设计,精品酒店设计,客栈设计,景观规划,旧房改造,住宅景观,住房景观,酒店设计,园林绿化,景观,园林,生态,精品

景观设计,精品酒店设计,客栈设计,景观规划,旧房改造,住宅景观,住房景观,酒店设计,园林绿化,景观,园林,生态,精品




 意向效果









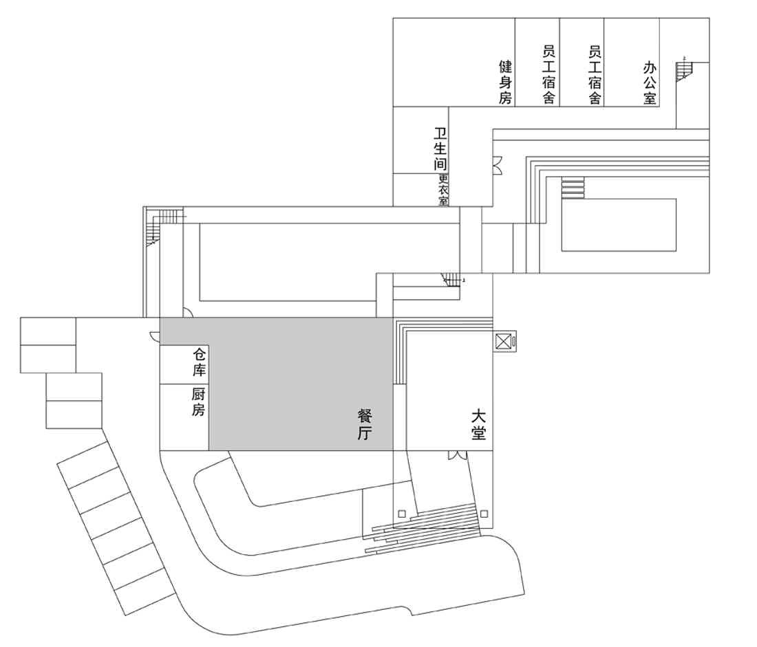
 首层平面图

精品,生态,园林,景观,园林绿化,酒店设计,住房景观,住宅景观,旧房改造,景观规划,景观设计




 二层平面图

精品,生态,园林,景观,园林绿化,酒店设计,住房景观,住宅景观,旧房改造,景观规划,景观设计




 三层平面图

精品,生态,园林,景观,园林绿化,酒店设计,住房景观,住宅景观,旧房改造,景观规划,景观设计



 标准间平面






 挑出的阳台

景观设计,精品酒店设计,客栈设计,景观规划,旧房改造,住宅景观,住房景观,酒店设计,园林绿化,景观,园林,生态,精品




 生态泳池

景观设计,精品酒店设计,客栈设计,景观规划,旧房改造,住宅景观,住房景观,酒店设计,园林绿化,景观,园林,生态,精品


景观设计,精品酒店设计,客栈设计,景观规划,旧房改造,住宅景观,住房景观,酒店设计,园林绿化,景观,园林,生态,精品




 模型效果







景观设计,精品酒店设计,客栈设计,景观规划,旧房改造,住宅景观,住房景观,酒店设计,园林绿化,景观,园林,生态,精品







若您对本文感兴趣,请扫描下方二维码,关注公众号WAQI设计, 查阅更多项目相关信息。
更多精彩,与您共享

浏览地址: