首页
Home
WAQI做些什么
Services
WAQI的作品
Projects
WAQI是谁
About us
WAQI学院
College
联系WAQI
Contact us
logo
用改造拯救建筑遗产|旧房改造
发布于:2020-05-27 16:59 浏览:
Casa Pedro旨在通过修复20世纪初的建筑并在其背面增加一个建筑来营救该城市的建筑遗产,从而在历史与当代之间建立起一种离散而又相互尊重的对话。作为瓜达拉哈拉历史中心的大规模城市复兴计划的一部分,卡萨佩德罗(Casa Pedro)在对该地区的一部分地区进行了改造。
项目信息
设计公司:Diagrama Arquitectos
项目类型:生态设计、旧楼改造、景观规划设计
位置:墨西哥
▽ 设计构想
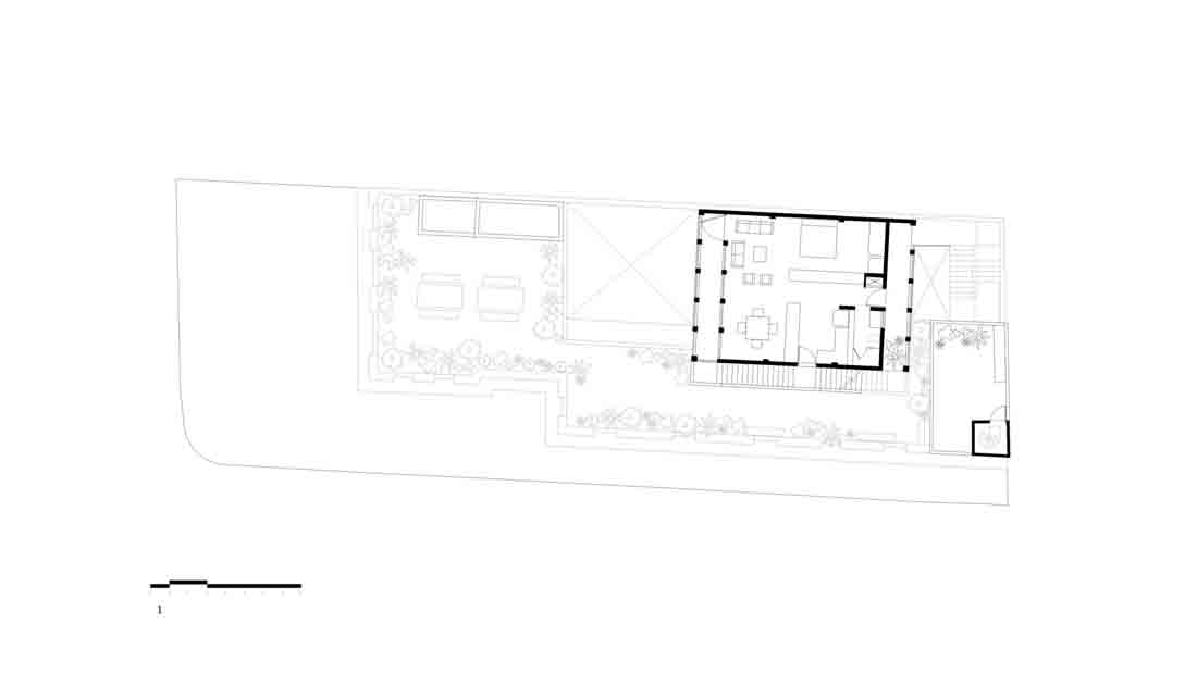
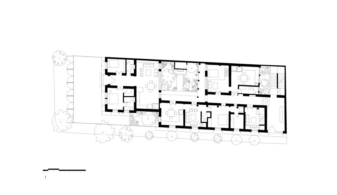
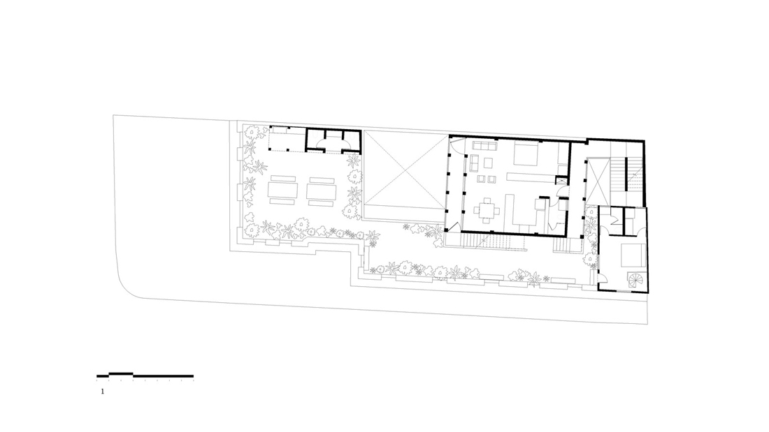
修复工作尊重了原有的划分房屋的门窗,而新建筑则放置在鲜为人知的露台区域,以避免改变建筑物的原始流通和中央露台。
整个房屋中有六个住宅单元,其中四个位于原始建筑物内,两个位于新建筑中。尊重项目的原始分布,确保了遗产住宅中的每个公寓单元都是唯一的。新建筑中的两个单元均用作开放式阁楼。在屋顶上,绿色空间增加了建筑物的共享使用区域。
▽ 建筑外观
▽ 室内设计
▽ 景观设计
▽ 平面图
▽ 立面图
编后语:混凝土建筑的原始颜色,再加上设计师给旧建筑划分出来的露台种植,让历史建筑蒙上一层现代的活泼,让建筑变得更加贴近生活,更有活力。更多关于旧楼改造、旧房改造、建筑设计的案例,请点击下面的拓展阅读进行跳转阅读。
来源网站:www.archdaily.com
翻译整理:WAQI
延伸阅读
中山产业园改造
景逸庭院式精品酒店改造
昆明教场北路旧房改造项目
WAQI建筑改造案例之蓝豹One·AI智慧谷改造项目
故事未了的江湖客栈|绿境景色花园客栈设计
设计终究是一个不断学习的过程,WAQI作为一家学习型设计事务所,通常在设计的过程中,会分析甚至于拆建一些案例,
不定期分享一些心得。请扫描并关注公众号,更多精彩,与您共享。。。
马上分享WAQI:
微信
QQ空间
新浪微博
上一个
下一个