首页
Home
WAQI做些什么
Services
WAQI的作品
Projects
WAQI是谁
About us
WAQI学院
College
联系WAQI
Contact us
logo
食物的配料就在身边|农场规划设计
发布于:2020-05-29 10:09 浏览:
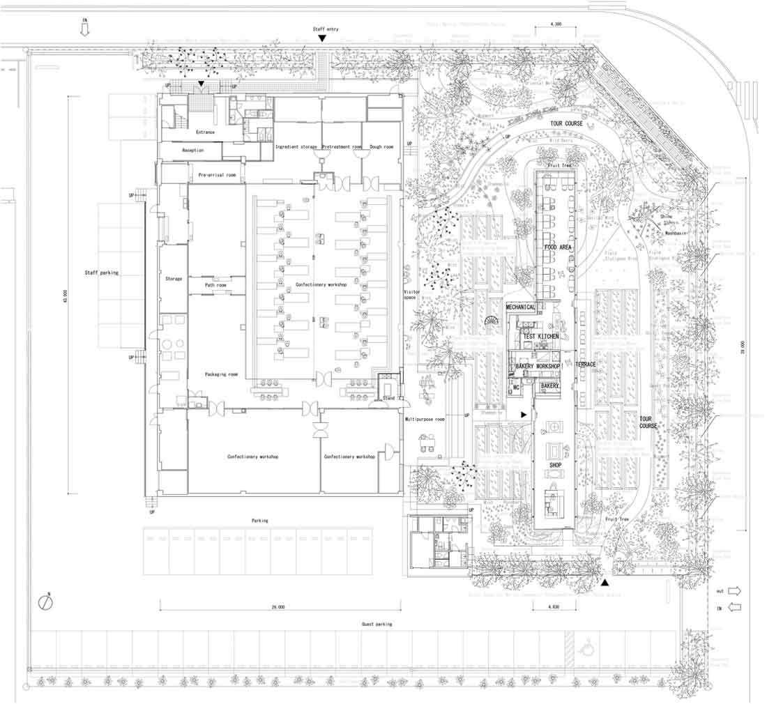
这是富士谷的一家工厂,富士谷是广岛著名的mojiji manju(枫叶形日本甜点)的老牌生产商。该站点位于开垦土地上的工业区,这是一个缺乏人类干预的环境。设计师提出了一个不仅可以充当工厂的功能,而且可以将生产与研究,加工与消费相结合的场所。该概念将融入糖果制作的精神,该糖果制作既重视自然和人们的生活方式,又与社区保持着密切的关系。
项目信息
设计公司:中村宏(Hiroshi Nakamura)和NAP
项目类型:生态农场、生态景观、景观规划设计
位置:日本
▽ 设计构想
设计师不仅要制造糖果和提供工厂参观服务,还希望传达经营理念,配料的可信赖性,并与制作美味佳肴的人们建立亲密关系,因此决定创建“ Hatake Labo(现场实验室)”,即和工厂本身一样大。在农场中,种植了可以承载小豆,小麦,柠檬,杏仁和橄榄等成分的树木和植物,为研究和教育食物和饮食提供了场所。在田野的中心,有长长的迷迭香山脊,我们将其抬高以在下面创建一个空间。测试厨房位于饮食相关研究和新产品开发的中心。在两侧,商店和就餐场所都展示了在测试厨房中制作的糖果和面包。
研究人员和顾客可以从与平常生活不同的角度观察食物,同时享用食物。窗外,收获的农作物在钩在柱子表面的柱子上干燥。这些农作物还可以充当遮挡阳光的窗帘,同时在桌面上投射类似桌布的阴影,季节性农作物过滤的柔和的阳光涌入建筑物。
▽ 建筑外观
▽ 室内设计
▽ 农场植物设计
▽ 平面图
编后语:随着农业与建筑之间的界限融为一体,客人们被农作物所包围并与农作物合二为一,让人们沉浸于天然的农场当中,也让人们能够在切身的感受不同角度食物来源与种植。更多关于生态农场、乡村规划设计、建筑设计的案例,请点击下面的拓展阅读进行跳转阅读。
来源网站:www.archdaily.com
翻译整理:WAQI
拓展阅读
大凉山沙马普尔彝族人文生态村规划设计
新村湖旅游度假项目景观概念设计
穆家峪桃源度假村概念设计
湄潭大健康旅游小镇
汤沟小镇概念性规划
罗婺文化特色小镇
燕山文化新城概念规划
千灯镇安居小区
设计终究是一个不断学习的过程,WAQI作为一家学习型设计事务所,通常在设计的过程中,会分析甚至于拆建一些案例,
不定期分享一些心得。请扫描并关注公众号,更多精彩,与您共享。。。
马上分享WAQI:
微信
QQ空间
新浪微博
上一个
下一个