首页
Home
WAQI做些什么
Services
WAQI的作品
Projects
WAQI是谁
About us
WAQI学院
College
联系WAQI
Contact us
logo
L形屋的生态改造|旧房改造
发布于:2020-07-28 15:34 浏览:
阿纳姆城正北方的树林里一处名为“Buitenplaats Koningsweg”的新社区正在开发中。这个从前的军事区域将被改造成一块文化飞地。这个荷兰语中叫做“De Scharnier”、英文里叫“The Hinge”的建筑坐落在这个社区的中心。建筑体由平面上垂直相交的两部分组成,曾经一侧是军事区域剧场另一侧是饭店,而现在它成为了一位知名艺术家的家,也是作坊、工作室。
项目信息
设计公司:Niels Olivier Architect
项目类型:建筑设计、旧楼改造、景观规划设计
位置:尼德兰
▽ 设计构想
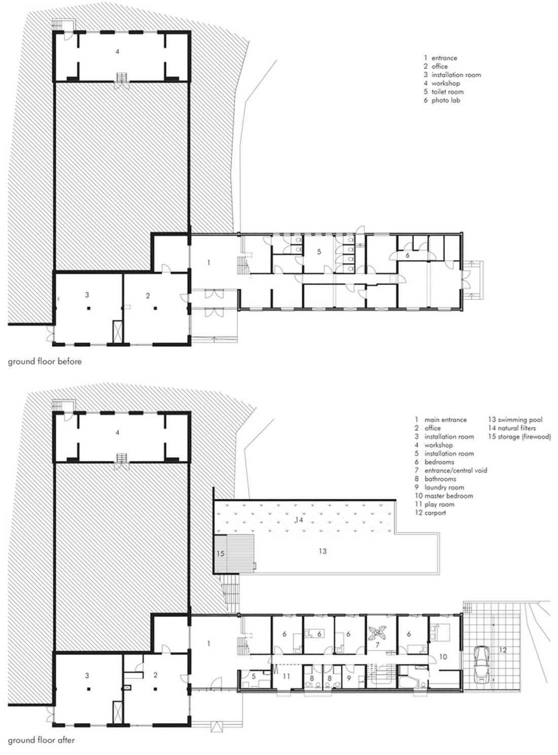
军事区域中的大多数建筑建于二十世纪六七十年代,年久失修,但出于环保,人们决定尽量改造并再利用它们。L形屋不得不翻新外表皮和屋顶,为此我们选择了相互对比的钢材与木材。现在所有的外墙都按荷兰建筑规范做了保温处理。改造中使用到的颜色,包括各种色调的灰色,以及采用有强烈工业气息的材料都是由总体规划指定的。这也意味着所有原有的砖墙都要漆成灰色。整个建筑体由一个节能炉供暖。房顶的太阳能板使房子几乎做到零耗能。游泳池不加热,由植物、砂石等自然滤网净化。
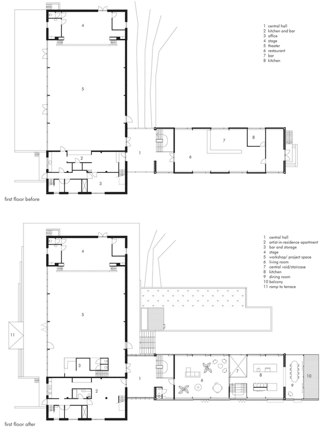
建筑体南侧原本非常不适合作为家庭住宅,它由一系列厕所间、带吧台的饭店厨房和一个用餐区域构成,分为两层。设计师在房屋中间插入了一段空白空间,通过楼梯连接花园和一层的客厅。这个空白空间将一楼之前的巨大饭店区域分隔成两个独立空间:家庭厨房和客厅。卧室和洗手间在底层位于空白空间两侧。然后设计师在房子一端的一层增添了一个餐厅和阳台。支撑屋顶的木质桁架被剥去数层颜料,刷上透明保护漆,展现出木质本身的温暖色调。
▽ 建筑外观
▽ 室内设计
▽ 细节设计
▽ 平面图
▽ 立面图
编后语:设计师将充沛的日光照入室内的同时,也让这一侧六十年代留下的建筑魅力犹存。这种新与旧的生态结合,让建筑生态环保的同时,也有历史的厚重感。更多关于旧楼改造、旧房改造、建筑设计的案例,请点击下面的拓展阅读进行跳转阅读。
来源网站:www.archdaily.com
翻译整理:WAQI
延伸阅读
中山产业园改造
景逸庭院式精品酒店改造
昆明教场北路旧房改造项目
WAQI建筑改造案例之蓝豹One·AI智慧谷改造项目
故事未了的江湖客栈|绿境景色花园客栈设计
设计终究是一个不断学习的过程,WAQI作为一家学习型设计事务所,通常在设计的过程中,会分析甚至于拆建一些案例,
不定期分享一些心得。请扫描并关注公众号,更多精彩,与您共享。。。
马上分享WAQI:
微信
QQ空间
新浪微博
上一个
下一个